Text provided by Architect

In India, one of the earliest forms of schools is a gurukul (guru- teacher, kul- house). To people familiar with this concept, this invokes a powerful image of a learned guru passing on knowledge to disciples under the shade of a large tree. This unbounded, minimal, indirect instruction as a form of transfer of knowledge soon disappeared around the 19th century, with the cells and bells model taking over the majority of institutions. 

The word ‘school’ derives from Greek σχολή (scholē), originally meaning ‘leisure’. Ironically, the current majority of learning environments in the country tip the scales of learning more toward pressure than leisure. Educational pedagogy is changing and the industrial hierarchical transfer of knowledge from teacher to pupil no longer meets the needs and aspirations of 21st-century learners. Pedagogical innovation demands spaces that enable exploration by both teacher and student.

Nellore,Andhra Pradesh,India

Architects : Spacefiction Studio
Area : 83,500 sq. ft.
Year of Completion : 2025
Website : https://www.instagram.com/spacefictionstudio

Exterior view of Rainbow International School by Spacefiction Studio


Exterior view of Rainbow International School by Spacefiction Studio


Exterior view of Rainbow International School by Spacefiction Studio


Entryway of Rainbow International School by Spacefiction Studio


Entryway of Rainbow International School by Spacefiction Studio


Central Passage of Rainbow International School by Spacefiction Studio

Designed as an addition to an existing campus, the three stories tall building spans east to west with longer sides facing north and south, minimising heat gain. The central spine; a large, three floor volume divides the north and the south wing of the school, with bridges spanning across, staggering on multiple levels. This volume has light raining from the top through skylights, hitting the large planters filled with tropical greens that run the length of the school. The south wing itself is staggered, to protect the lower floors from the high south sun. 

The ground floor classrooms open onto shaded north or south courts. The classrooms on the higher floors open east or west, sharing large, double height courtyards. These courtyards are an attempt to take the classroom closer to the gurukul model by eliminating walls, thereby easing the constricted feeling a typical four walls classroom imposes. In order to fully engage in constructivist learning, students need to transition between lecture, group study, presentation, discussion, and individual work time.


Central Passage of Rainbow International School by Spacefiction Studio


Central Passage of Rainbow International School by Spacefiction Studio


Central court of Rainbow International School by Spacefiction Studio


Central court of Rainbow International School by Spacefiction Studio

‘Left over’ spades and learning: To truly shift the educational paradigm, learning spaces have been planned along a network of connected places outside the classroom where learning can flow from one space to the next and a sense of community is fostered. These extra spaces can stimulate thought by shifting common expectations of planned and productive use of space. These “left-over” spaces can lead to valuable, unplanned, and informal connections. They elevate discourse, encourage creativity, and promote collaboration. 

The cold, locally sourced kota stone which is interspersed with granite makes up most of the flooring. The aluminum sliding doors act as a separator between the classroom and the courtyards. The outside courts are finished with local tandoor stone. 


First floor lobby of Rainbow International School by Spacefiction Studio


First floor view of Rainbow International School by Spacefiction Studio


Skylight of Rainbow International School by Spacefiction Studio


Second floor lobby of Rainbow International School by Spacefiction Studio


Second floor corridor view of Rainbow International School by Spacefiction Studio


Second floor view of Rainbow International School by Spacefiction Studio

Despite the advances in technology over the last ten thousand years of human civilization, which have increasingly separated human experience from the uncontrolled aspects of life on this planet, humans continue to desire, and even need, connections to nature. The school re-integrates the learning experience with the patterns and processes of the natural world, through the use of light, wind, trees and volumes. 


Aerial view of Rainbow International School by Spacefiction Studio


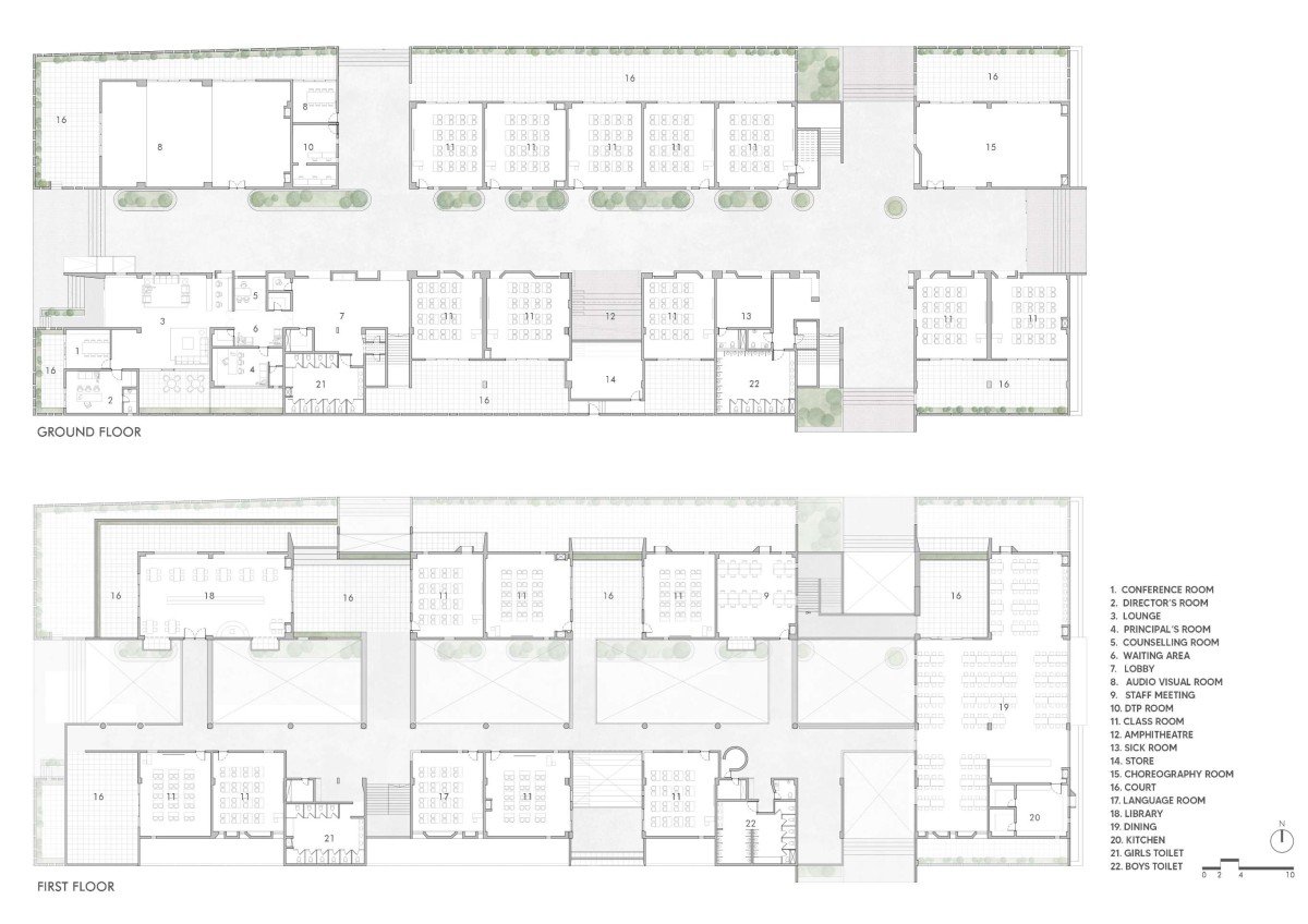
Ground & First Floor Plans of Rainbow International School by Spacefiction Studio


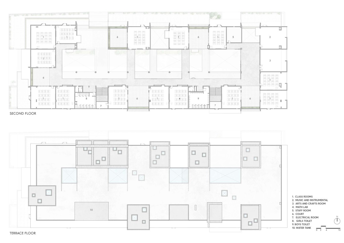
Second Floor & Terrace Plan of Rainbow International School by Spacefiction Studio




Most Visited Articles




Subscribe

Get our latest article and updates delivered straight to your inbox.