Architecture

24-11-2025

Photographer : Pranit Bora

Text provided by Architect

The Luxury of minimalism, Surrounded by More

Set within a canopy of mature trees, The Nook House unfolds as an exemplar of quiet elegance, where thoughtful design meets the essence of affordable luxury. Conceived for a family of three with a pet, the home is rooted in Vastu principles and crafted with care, proving that modest budgets need not preclude spatial richness or a sense of refinement.

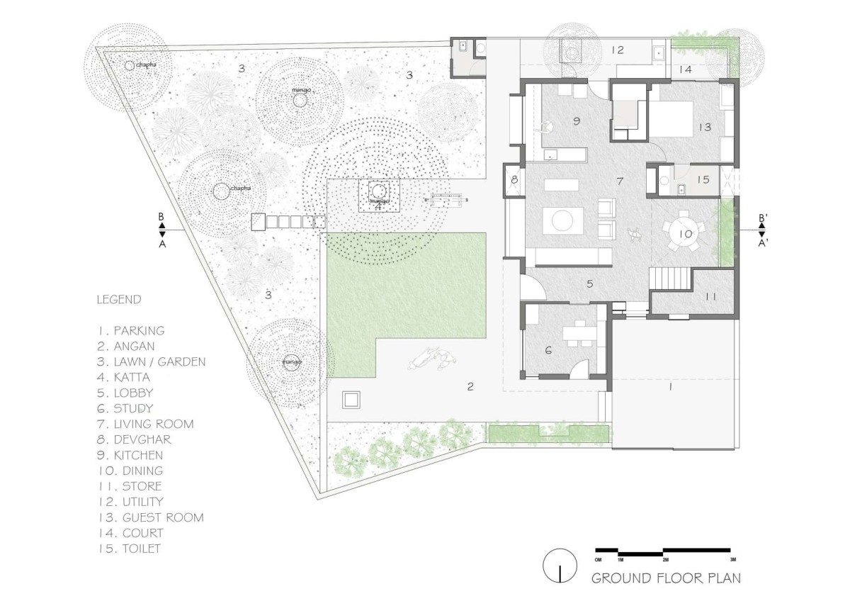
At the heart of the design was a clear, uncompromising decision: every tree on the site would remain untouched. This commitment shaped the home’s orientation along the western edge, releasing the north and east to gardens, breeze corridors, and filtered daylight. Rather than assert itself, the architecture yields to its surroundings and embraces the land and its rhythms.

Occupying a compact 1200 square feet ground floor and a built-up area of 2650 square feet, the house is layered with spatial generosity. A tactile, locally grounded material palette including exposed RCC pardi, Shahabad stone, and reclaimed wood offers quiet richness without excess. Passive cooling strategies, such as a wind-assisted ventilation shaft and shaded voids, reduce dependency on mechanical systems while enhancing comfort.

Programmatically, the home flows from outside in. At ground level, the house is a social and guest space that spills into the landscape, while the upper floor is organized around an informal lounge and terrace that encourage movement and pause. Custom-crafted furniture, native planting, and a restrained interior palette create an atmosphere that is both composed and deeply lived in.

The Nook House reframes luxury as something experiential rather than ornamental. It finds depth in simplicity and richness in restraint, reminding us that a well-considered home, when rooted in context and shaped by nature, can offer a kind of luxury that money alone cannot buy.

Solapur,Maharashtra,India

Architects : Z- Design Studio
Area : 2650 sq. ft.
Year of Completion : 2022
Website : https://www.instagram.com/z_design_studio_/

Exterior view of The Nook House by Z- Design Studio


Entry Foyer of The Nook House by Z- Design Studio


Free standing wall dividing entry and living of The Nook House by Z- Design Studio


Living room of The Nook House by Z- Design Studio


Living room of The Nook House by Z- Design Studio


Living to Dining view of The Nook House by Z- Design Studio


Living to Kitchen view of The Nook House by Z- Design Studio


Dining & Staircase of The Nook House by Z- Design Studio


Staircase from dining area of The Nook House by Z- Design Studio


Staircase view of The Nook House by Z- Design Studio


Upper living room of The Nook House by Z- Design Studio


Bedroom 1 of The Nook House by Z- Design Studio


Bedroom 1 of The Nook House by Z- Design Studio


Bedroom 2 of The Nook House by Z- Design Studio


Bedroom 2 of The Nook House by Z- Design Studio


Bedroom 3 of The Nook House by Z- Design Studio


Balcony of The Nook House by Z- Design Studio


Staircase to Terrace of The Nook House by Z- Design Studio


Night exterior view of The Nook House by Z- Design Studio


Site plan of The Nook House by Z- Design Studio


Ground floor plan of The Nook House by Z- Design Studio


First floor plan of The Nook House by Z- Design Studio


Sections of The Nook House by Z- Design Studio




Most Visited Articles




Subscribe

Get our latest article and updates delivered straight to your inbox.