Architecture

01-12-2025

Photographer : Onebox

Text provided by Architect

THE ARORA— A Contemporary Urban Haven Rooted in Light and Vastu

Nestled within the dense urban fabric of Coimbatore, Arora stands as an embodiment of balance between modern architectural expression and traditional spatial sensibilities. Designed on a west facing plot of 60’ x 119’, this 9,058 sq.ft residence seamlessly integrates light, openness and harmony to create a contemporary home that resonates deeply with the principles of Vastu Shastra.

As its name suggests, Arora - meaning the first light of dawn celebrates sunlight as its guiding design philosophy. The planning ensures that natural light filters through every corner of the home throughout the day, enhancing spatial warmth and comfort. Large openings towards the north and east draw in soft, diffused daylight, minimizing heat gain from the west while maintaining an ambient glow across all living spaces.

The architectural language adopts a refined contemporary aesthetic marked by clean lines, balanced proportions and a tactile palette of concrete, glass, and natural finishes. 

At the heart of Arora lies its spiritual and visual centerpiece, a life-sized Tanjore painting of Lord Murugan. Placed strategically at the center of the residence, this magnificent artwork becomes the soul of the home, radiating a divine presence that unites the spatial and spiritual essence of the design. The painting not only anchors the home visually but also imbues it with an aura of peace and sanctity, subtly guiding the flow of energy within the house in harmony with Vastu principles.

Coimbatore,Tamil Nadu,India

Architects : Dot Square Architects
Area : 9058 sq. ft.
Year of Completion : 2025
Website : https://www.instagram.com/dotsquare_architects/

Exterior view of The Arora by Dot Square Architects


Exterior view of The Arora by Dot Square Architects


Exterior view of The Arora by Dot Square Architects


Foyer of The Arora by Dot Square Architects


Living room of The Arora by Dot Square Architects

The public zones, living, dining, and kitchen follow an open plan layout, allowing uninterrupted flow of movement and light. These areas are designed as interconnected volumes, encouraging family interaction and a sense of community. Skylights and large openings enhance the openness, blurring the boundaries between indoor and outdoor spaces.


Living room of The Arora by Dot Square Architects


Dining of The Arora by Dot Square Architects


Family living of The Arora by Dot Square Architects


Pooja Mandir of The Arora by Dot Square Architects


Staircase of The Arora by Dot Square Architects


First floor view of The Arora by Dot Square Architects

In contrast, the private bedroom spaces are placed in more secluded zones, ensuring calmness and privacy. Oriented carefully to capture the morning sun while avoiding harsh western glare, these intimate retreats are designed for rest and rejuvenation.

Every spatial decision within Arora reflects a deep respect for Vastu, not as a restrictive guideline, but as an integral design philosophy that harmonizes the physical, emotional, and spiritual well being of its inhabitants.


Upper floor living of The Arora by Dot Square Architects


Bedroom 1 of The Arora by Dot Square Architects


Bedroom 2 of The Arora by Dot Square Architects


Bedroom 2 of The Arora by Dot Square Architects


Dusk light exterior view of The Arora by Dot Square Architects

Ultimately, Arora stands as a celebration of light, balance, and divinity, a residence where contemporary design meets timeless tradition, and where every beam of sunlight and every sacred detail contributes to the poetry of living.


Dusk light exterior view of The Arora by Dot Square Architects


Ground Floor Plan of The Arora by Dot Square Architects


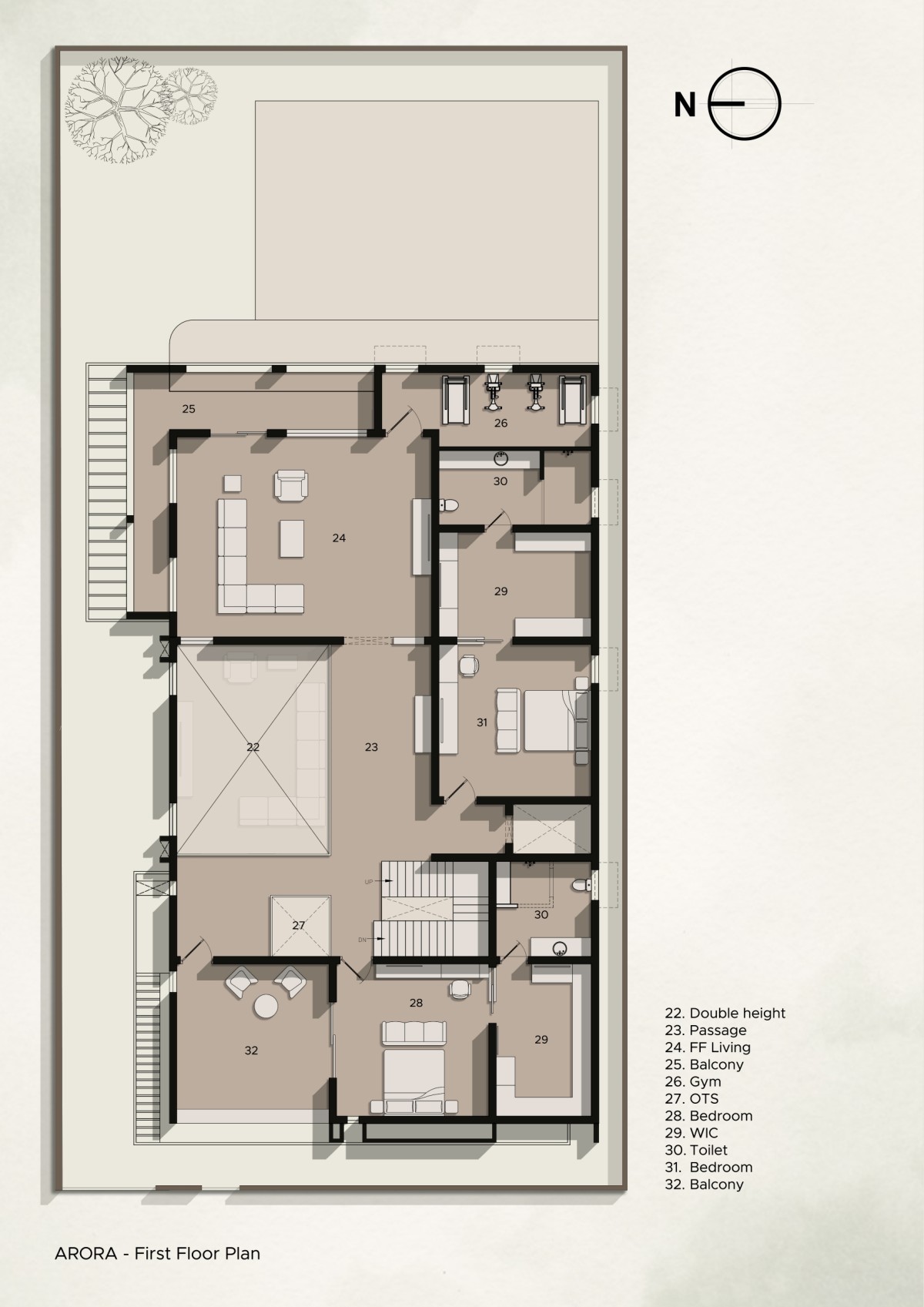
First Floor Plan of The Arora by Dot Square Architects


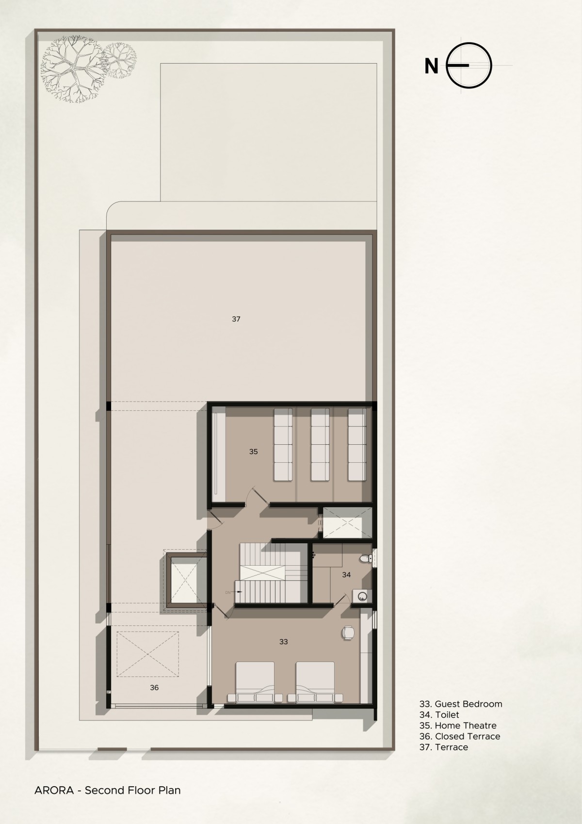
Second Floor Plan of The Arora by Dot Square Architects




Most Visited Articles




Subscribe

Get our latest article and updates delivered straight to your inbox.