Architecture

19-11-2025

Photographer : Hemant Patil

Text provided by Architect

Situated in Karad, Maharashtra, Saavli unfolds as a contemporary residence that harmonizes sculptural form with contextual sensitivity. Designed on a 2,000 sq. ft. plot with a built-up area of 3,000 sq. ft., the home draws its essence from simplicity, geometry, and a deep engagement with its surroundings. The architecture is anchored by a striking cubic volume, punctuated by a bold circular window that not only softens the massing but also invites a gentle play of natural light. This dialogue between pure forms and earthy materiality—expressed through muted terracotta hues and textured finishes—grounds the structure within its landscape. Inside, the residence transitions into a serene, curvilinear world where double-height spaces, fluid circulation, and minimal detailing create an atmosphere of calm retreat. Saavli ultimately emerges as a thoughtful balance of contrast and continuity, embodying both a protective exterior presence and a tranquil interior experience.

The design process of this residence revolves around simplicity, geometry, and contextual harmony. The concept was initiated by exploring pure forms particularly the circle to create a bold yet balanced facade. The circular window acts as the focal point, framing natural light while softening the rigidity of the cubic mass. Material selection emphasizes earthy textures, with a muted terracotta tone blending the building into its environment. The layout is organized around openness and flow: double-height spaces foster grandeur, while carefully placed cutouts and courtyards bring in ventilation and daylight. Interiors are kept minimal, dominated by neutral shades and subtle geometric detailing, ensuring continuity with the exterior language. Functional zones like the living, dining, and bedrooms are designed for comfort, with modern furniture complementing the calm palette. Overall, the process aimed at merging sculptural aesthetics with practical living, resulting in a contemporary home rooted in simplicity and elegance.

The design philosophy for 'Saavli' (a name that evokes the concept of shade or a gentle presence) centers on a profound textural contrast, mirroring the traditional Indian architectural sensibility of a protective outer shell and a tranquil inner world. The project deliberately employs a dualistic design language: an uncompromisingly rough, textured exterior that anchors the structure to the earth and the local context, and a soft, curvilinear interior that offers a serene, almost cocoon-like sanctuary. 

Karad,Maharashtra,India

Architects : Praniil Mulik Company
Area : 3000 sq. ft.
Year of Completion : 2025
Website : https://www.instagram.com/praniil_mulik_company/?hl=en

Exterior view of Saavli by Praniil Mulik Company

The facade is a bold, cubic volume defined by a striking geometric composition. The primary material is a rough, pigmented cement plaster finish, creating a tactile surface that changes subtly with the shifting daylight. The most dominant feature is the large, circular cutout window on the main facade, which acts as a monumental aperture framing the interior and introducing a softness to the otherwise rigid form. This circular element, along with vertical wooden battens or screens (likely for shading and privacy), introduces rhythm and balance. The monolithic nature of the exterior ensures privacy and thermal mass, key considerations for the local climate.


Entrance of Saavli by Praniil Mulik Company


Entrance Porch of Saavli by Praniil Mulik Company


Entrance court of Saavli by Praniil Mulik Company


Living room of Saavli by Praniil Mulik Company

Arches, semi-circles, and curved walls are used extensively (visible in the bedroom headboard wall, living room TV unit backdrop, and hallway ceiling details) to create a flowing, gentle ambiance. This curvilinear language contrasts with the exterior's rectangularity, softening the space and promoting an easy flow of movement.

Surfaces are deliberately smooth, utilizing fine finishes, polished stone floors with minimal seams, and soft-to-touch fabrics. The walls and built-in elements often feature subtle vertical ribbing or geometric patterns (like the abstract circular cutouts on the wardrobe/storage panels) that add depth without visual clutter.

The open-plan living and dining areas are flooded with diffused natural light, controlled by tall sheer curtains. A large L-shaped sectional sofa, a round coffee table, and a plush rug ground the living space, while a double-height volume over the living room/hallway (visible with the overlooking balcony and swing) enhances the feeling of spaciousness and connection between floors.


Living room of Saavli by Praniil Mulik Company


Living room of Saavli by Praniil Mulik Company


Living room of Saavli by Praniil Mulik Company


TV Unit of Saavli by Praniil Mulik Company


Dining of Saavli by Praniil Mulik Company


Kitchen of Saavli by Praniil Mulik Company


Second Floor Living of Saavli by Praniil Mulik Company


Passage of Saavli by Praniil Mulik Company


Chandelier of Saavli by Praniil Mulik Company


Guest Bedroom of Saavli by Praniil Mulik Company

The 3 bedrooms continue the theme of serenity. The master bedroom, in particular, features a unique circular bed platform and a wall behind the bed adorned with soft, curved geometry and a subtle circular mirror detail, reinforcing the concept of a calm, enclosed retreat.

Despite the protective exterior, the interiors maintain a strong connection to nature through large windows and the strategic placement of indoor plants. An upper-floor balcony or terrace features a beautiful curved wall finished with the exterior's rough texture and houses a potted tree and a seating area, offering a private, open-to-sky decompression space.

This project is a study in controlled contrast, delivering a home that is both firmly rooted in its environment and a haven of modern, curvilinear tranquility.


Guest Bedroom of Saavli by Praniil Mulik Company


Master Bedroom of Saavli by Praniil Mulik Company

The most distinct feature is the large circular void set within a monolithic volume. The primary challenge was moving past conventional residential expectations to justify this singular, abstract form functionally ensuring it met the client's needs for light, views, and privacy while maintaining the strong architectural statement.

The design deliberately stands apart from its surroundings. This made the selection of the primary exterior finish critical. The team had to select an earth-toned, highly textured material (likely pigmented stucco or specialized render) that would not only be aesthetically pleasing but also extremely durable and low-maintenance to withstand environmental factors without compromising the uniform aesthetic.

Achieving the perfect proportion for the house's mass and the dramatic double-height interior volume required meticulous space planning to ensure the scale felt grand yet comfortable, rather than imposing or cavernous.

Constructing a perfectly circular opening of that scale in a solid wall is a major technical challenge. This required extremely high-tolerance formwork and specialized structural detailing to ensure the opening retained its shape, transferred loads correctly, and integrated seamlessly with the large, custom-fabricated window frame without leaks or cracks.

Applying the textured earth-tone finish consistently across large, flat, and subtly curved surfaces is difficult. The challenge was preventing color variations (batch differences), avoiding visible cold joints (where new application meets old), and ensuring the texture's depth and consistency across all facets of the building.

The smooth, sweeping curves in the entry porch and exterior courtyard required skilled masons and precise shuttering to maintain the exact radii of the design, which is more complex than standard right-angle construction.

The large, sliding interior panels featuring the precise, continuous circular motif cut-outs presented a major fabrication and installation challenge. The panels needed to be manufactured with CNC precision and then installed on a robust tracking system that ensured they were perfectly aligned visually and mechanically when closed.


Front Elevation of Saavli by Praniil Mulik Company


Ground Floor Plan of Saavli by Praniil Mulik Company


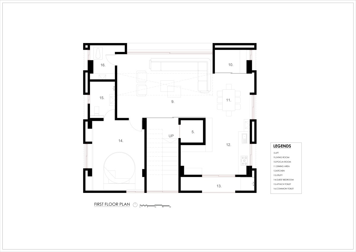
First Floor Plan of Saavli by Praniil Mulik Company


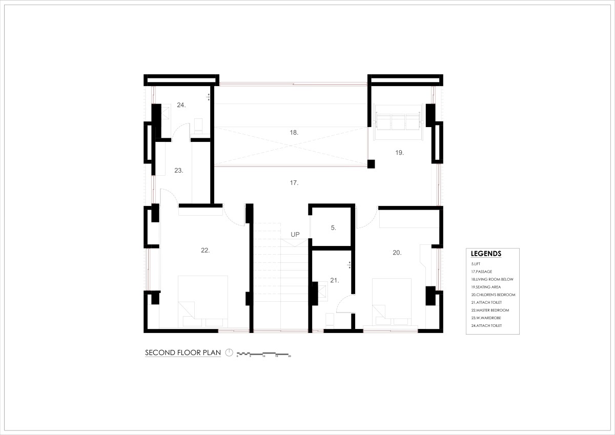
Second Floor Plan of Saavli by Praniil Mulik Company


Terrace Plan of Saavli by Praniil Mulik Company


Section CC of Saavli by Praniil Mulik Company




Most Visited Articles




Subscribe

Get our latest article and updates delivered straight to your inbox.