Gautam singhania school kalyan, A project design by Kaizen Interior Design studio - Mumbai The Interior designer has named this Project as Alma Mater. Alma Mater is envisioned as a community educational space that nurtures learning beyond classrooms. The project focuses on creating an environment that is inclusive, functional, and inspiring for students and educators alike.

The design balances modern minimalism with warmth, using natural light, open layouts, and thoughtful spatial planning to foster creativity, collaboration, and comfort. Each corner of the school is designed to be more than just a physical space—it is meant to be an experience that encourages curiosity, belonging, and growth. What makes Alma Mater special is its social impact—it goes beyond being an institution and becomes a community space that empowers young minds and creates a positive environment for the neighborhood as well.

The school is planned as a 9 floor institution, carefully designed to cater to a large student community while maintaining an intimate and engaging learning atmosphere. The vertical layout allows for optimum use of urban space, with each floor dedicated to specific functions that support academic, extracurricular, and social development.

They have successfully completed Phase 1, which includes the foundational learning spaces, administrative areas, and activity zones. These areas have already begun to transform the way students and teachers interact with their environment, providing an atmosphere that is both practical and inspiring.

Currently, Phase Two is in progress, which will further expand the school’s capacity and enhance specialized facilities to support a holistic education. For this contest, they are proud to present Phase One of Alma Mater and progressive design of Phase 2 as it
reflects the essence of our design vision.

Kalyan,Maharashtra,India

Architects : Kaizen Interior Design Studio
Year of Completion : 2024
Website : https://www.instagram.com/kaizen_interior_design_studio

Atrium of Alma Mater – A School Design Initiative by Kaizen Interior Design Studio


Atrium of Alma Mater – A School Design Initiative by Kaizen Interior Design Studio


Atrium of Alma Mater – A School Design Initiative by Kaizen Interior Design Studio


Conference room of Alma Mater – A School Design Initiative by Kaizen Interior Design Studio


Conference room of Alma Mater – A School Design Initiative by Kaizen Interior Design Studio


Admin room of Alma Mater – A School Design Initiative by Kaizen Interior Design Studio


KG Class of Alma Mater – A School Design Initiative by Kaizen Interior Design Studio


KG Class of Alma Mater – A School Design Initiative by Kaizen Interior Design Studio


KG Class of Alma Mater – A School Design Initiative by Kaizen Interior Design Studio


KG Class of Alma Mater – A School Design Initiative by Kaizen Interior Design Studio


Play area of Alma Mater – A School Design Initiative by Kaizen Interior Design Studio


Play area of Alma Mater – A School Design Initiative by Kaizen Interior Design Studio


Gallery room of Alma Mater – A School Design Initiative by Kaizen Interior Design Studio


Gallery room of Alma Mater – A School Design Initiative by Kaizen Interior Design Studio


Orientation room of Alma Mater – A School Design Initiative by Kaizen Interior Design Studio


Staircase of Alma Mater – A School Design Initiative by Kaizen Interior Design Studio


Corridor of Alma Mater – A School Design Initiative by Kaizen Interior Design Studio


Principal Cabin of Alma Mater – A School Design Initiative by Kaizen Interior Design Studio


Principal Cabin of Alma Mater – A School Design Initiative by Kaizen Interior Design Studio


Principal Cabin of Alma Mater – A School Design Initiative by Kaizen Interior Design Studio


SCSL room of Alma Mater – A School Design Initiative by Kaizen Interior Design Studio


SCSL room of Alma Mater – A School Design Initiative by Kaizen Interior Design Studio


Toilet of Alma Mater – A School Design Initiative by Kaizen Interior Design Studio


Toilet of Alma Mater – A School Design Initiative by Kaizen Interior Design Studio


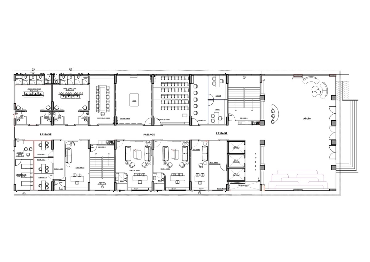
Plan 1 of Alma Mater – A School Design Initiative by Kaizen Interior Design Studio


Plan 2 of Alma Mater – A School Design Initiative by Kaizen Interior Design Studio


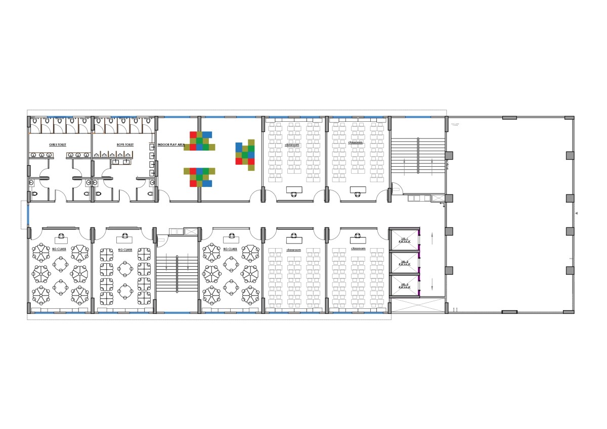
Plan 3 of Alma Mater – A School Design Initiative by Kaizen Interior Design Studio


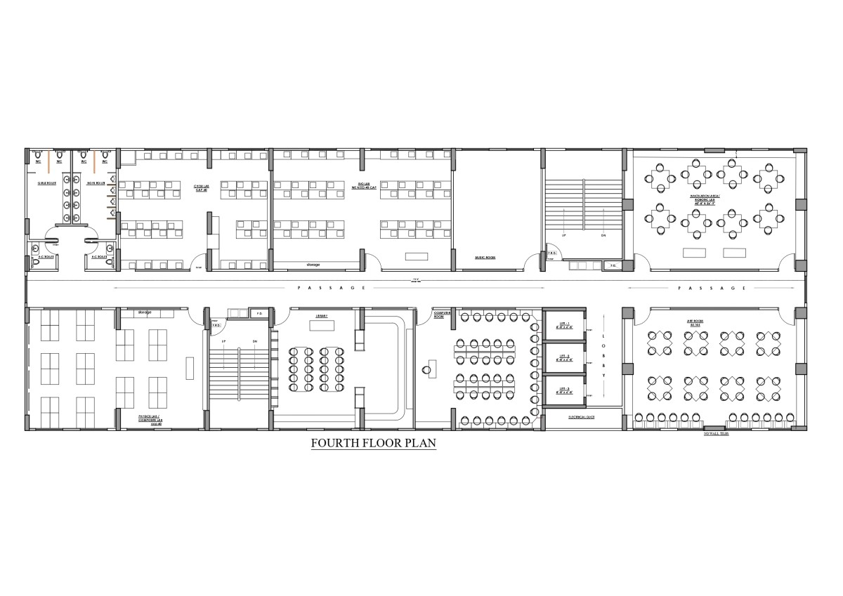
Plan 4 of Alma Mater – A School Design Initiative by Kaizen Interior Design Studio




Most Visited Articles




Subscribe

Get our latest article and updates delivered straight to your inbox.