Text provided by Architect

This project reimagines a contemporary dining space through a sensitive reinterpretation of Indian architectural heritage. The interior language is shaped by a fusion of clean modern lines and nostalgic craft elements, resulting in an environment that feels both rooted and refreshingly current.

The spatial experience is anchored by a series of scalloped arches, inspired by traditional haveli forms, translated here in a minimalist palette. Cane-clad partitions, turned wooden columns, and curated lighting compositions bring warmth and tactility to the setting, softening the strong geometry of the envelope. The material palette celebrates earthy finishes—terracotta screens, natural cane, polished timber, and muted plaster walls—balanced with pops of teal upholstery to create visual vibrancy.

Custom-designed elements form the project’s identity: the patterned reception counter in terracotta modules, fluted bench seating, cane-paneled arches, and suspended cluster lights that create a celebratory ambiance. The tables feature bespoke star-pattern inlays, adding subtle ornamentation without overwhelming the space.

Large arched windows draw in gentle daylight, allowing the interiors to shift fluidly from a calm daytime dining atmosphere to a warmly lit, intimate evening setting. Every design gesture is carefully composed to enhance comfort while honoring traditional craftsmanship.

Overall, the project stands as a contemporary cultural narrative—an elegant balance of craft, texture, and form, offering guests a memorable and immersive dining experience.

Gandhinagar,Gujarat,India

Architects : Studio Dimensions
Area : 2368.06 sq. ft.
Year of Completion : 2025
Website : https://www.instagram.com/studio_dimensions_/?hl=en

Reception & Waiting Area of Amritsar Haveli Restaurant by Studio Dimensions


Reception of Amritsar Haveli Restaurant by Studio Dimensions


Waiting Area of Amritsar Haveli Restaurant by Studio Dimensions


Indoor Dining of Amritsar Haveli Restaurant by Studio Dimensions


Indoor Dining of Amritsar Haveli Restaurant by Studio Dimensions


Indoor Dining of Amritsar Haveli Restaurant by Studio Dimensions


Indoor Dining of Amritsar Haveli Restaurant by Studio Dimensions


Indoor Dining of Amritsar Haveli Restaurant by Studio Dimensions


Indoor Dining of Amritsar Haveli Restaurant by Studio Dimensions


Indoor Dining of Amritsar Haveli Restaurant by Studio Dimensions


Indoor Dining of Amritsar Haveli Restaurant by Studio Dimensions


Indoor Dining of Amritsar Haveli Restaurant by Studio Dimensions


Indoor Dining view with artificial lighting of Amritsar Haveli Restaurant by Studio Dimensions


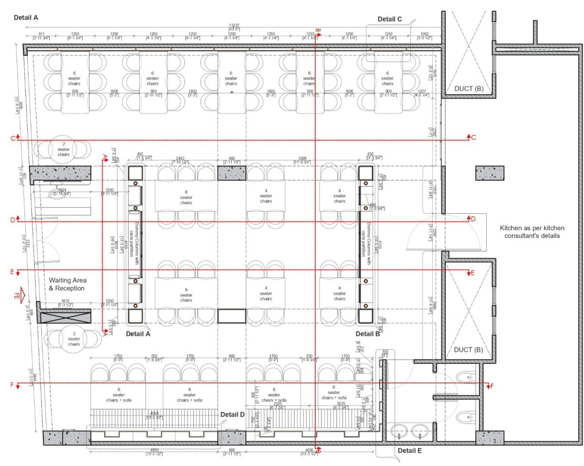
Plan of Amritsar Haveli Restaurant by Studio Dimensions


Section AA & BB of Amritsar Haveli Restaurant by Studio Dimensions


Section CC & DD of Amritsar Haveli Restaurant by Studio Dimensions


Section EE & FF of Amritsar Haveli Restaurant by Studio Dimensions




Most Visited Articles




Subscribe

Get our latest article and updates delivered straight to your inbox.