Architecture

12-09-2025

Photographer : Sohail Wazir

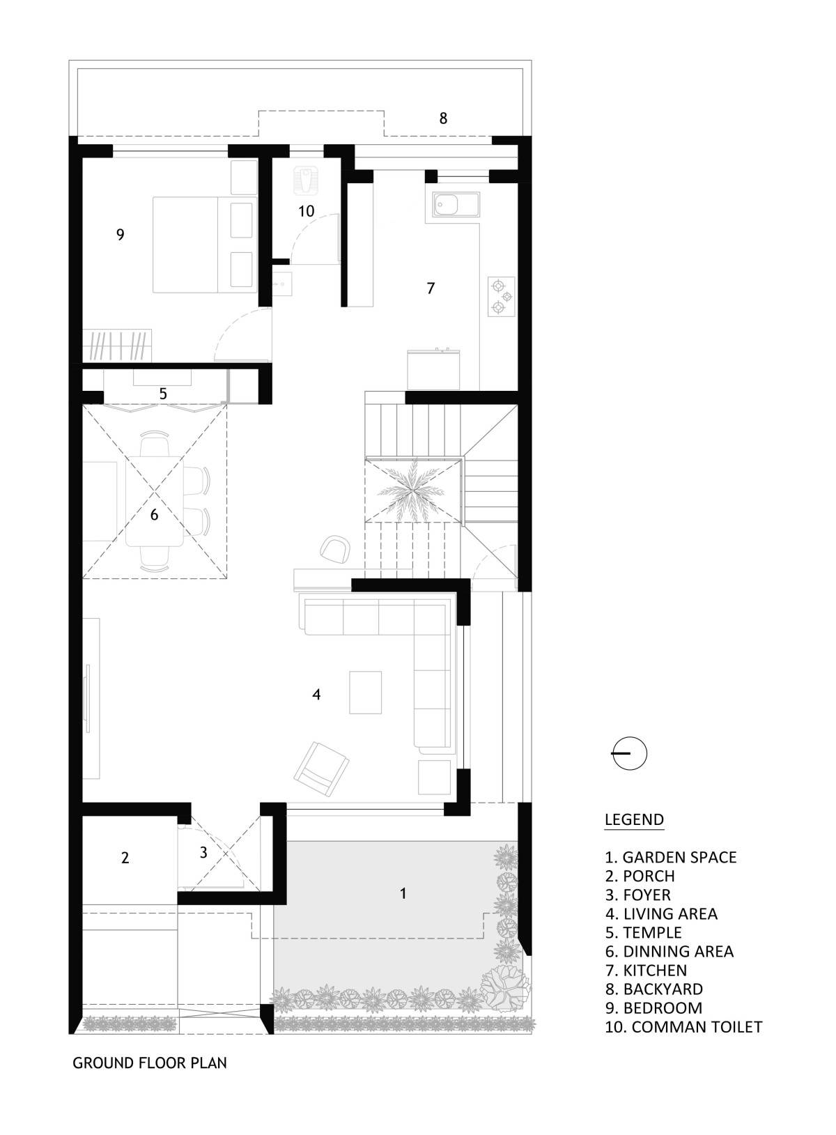
Set within a quiet gated community in Bhuj, the Bhanushali House is designed as a calm, connected home for a multi-generational family. Built on a compact west-facing plot of 163 square yards (8m x 17m), the house embraces its modest footprint with an open layout anchored by a central courtyard—a space that brings in light, connects all levels, and creates a sense of togetherness.

The entrance, located at the northwest corner of the site, leads through a framed gate to a shaded, elevated porch. A tall, north-facing wooden door opens into a double-height foyer, where a large upper window brings in generous daylight. This space sets the tone for the house—open, warm, and filled with natural light.

On the ground floor, living, dining, and kitchen spaces are designed in an open-plan layout. The living room features an L-shaped wooden sofa that looks out to the front garden. But it’s the triple-height courtyard at the center of the house that becomes the real heart of the design. The dining table is placed within this courtyard, turning daily meals into shared moments under soft daylight. A small mandir is also integrated here—offering a quiet corner for prayer that can be enclosed when needed.

Bhuj,Gujarat,India

Architects : Flamingo Architects
Area : 3100 sq. ft.
Year of Completion : 2024
Website : https://www.instagram.com/flamingoarchitects_in/

Exterior view of Bhanushali House by Flamingo Architects


Courtyard & Staircase of Bhanushali House by Flamingo Architects

The courtyard features textured concrete walls with vertical grooves and is topped by a glass roof supported by a light metal pergola structure. As sunlight shifts through the day, the space changes in mood—adding a dynamic, almost meditative rhythm to the interiors. Adjacent to it, a C-shaped metal staircase with wooden handrails rises along the edge, visually linking all three levels.

Materials are chosen to be low-maintenance yet expressive. Kota stone flooring, white ceilings, and terrazzo-clad surfaces keep the palette minimal and bright. A terrazzo floor with white marble inlays highlights the central courtyard and the connecting bridges on the upper floors. A small ledge on the metal partition between the living and dining areas also doubles up as a study table for the children—a detail that quietly supports everyday family life.


Living & Dining of Bhanushali House by Flamingo Architects


Dining of Bhanushali House by Flamingo Architects 05


Dining to Pooja room view of Bhanushali House by Flamingo Architects


Courtyard to Kitchen of Bhanushali House by Flamingo Architects

At the back, the open kitchen, finished in terrazzo stone, connects to a shared toilet and a mother’s bedroom that opens into the backyard garden. This relationship between indoor comfort and small pockets of greenery continues throughout the house.



Skylight of Bhanushali House by Flamingo Architects


Study Ledge of Bhanushali House by Flamingo Architects


Staircase of Bhanushali House by Flamingo Architects


First Floor Bridge of Bhanushali House by Flamingo Architects


Second Floor Bridge of Bhanushali House by Flamingo Architects


Owner's Bedroom of Bhanushali House by Flamingo Architects

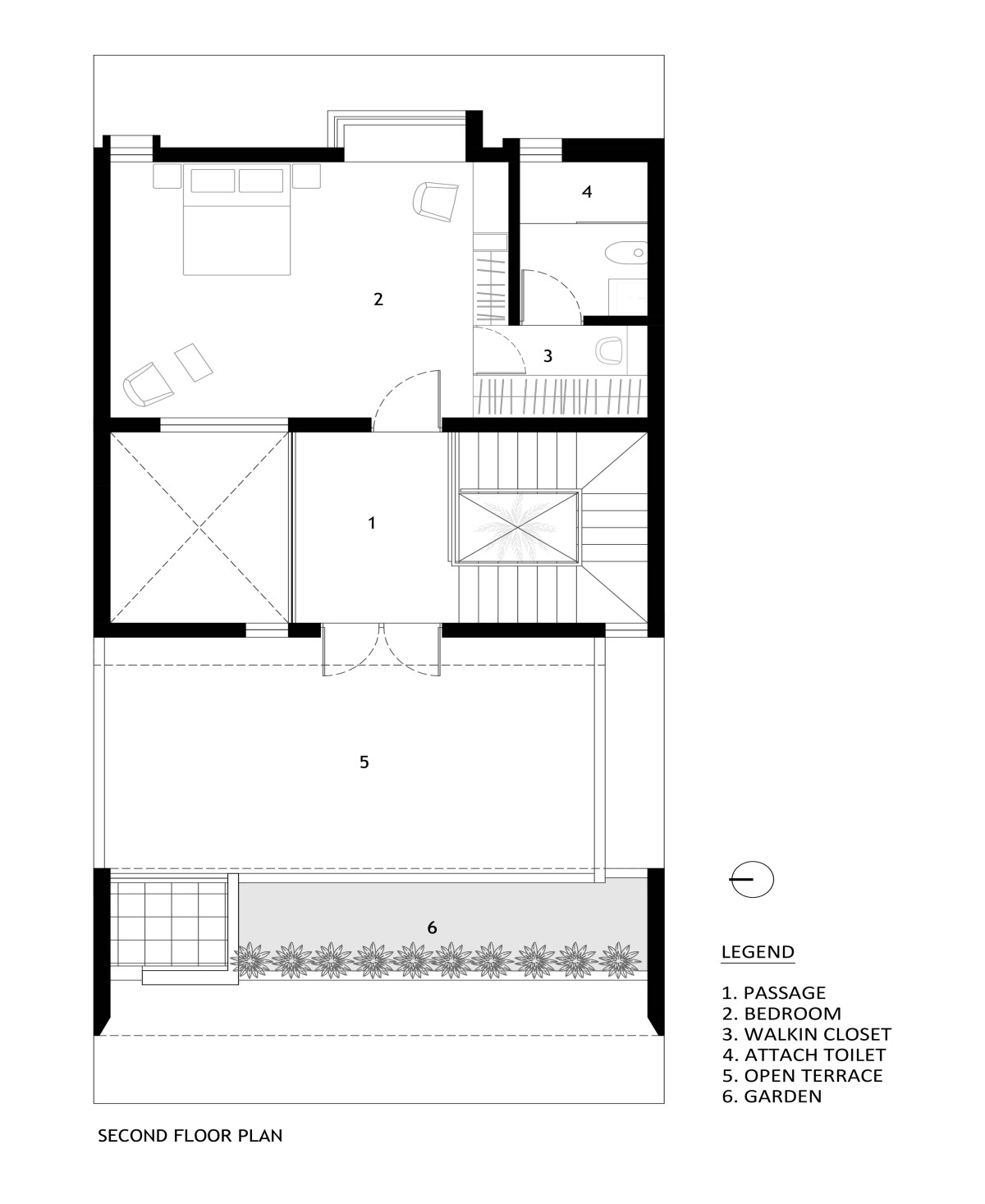
On the first floor, a bridge spans the courtyard, connecting the master bedroom and the children’s bedroom. The master suite includes a walk-in closet and bathroom and opens onto a west-facing balcony with a planter bed that buffers harsh sunlight. A small interior window opens into the foyer, maintaining visual connection between levels. 



Brother's Bedroom of Bhanushali House by Flamingo Architects

On the second floor, the brother’s bedroom sits quietly above the children’s room. Its minimal grey palette is grounded by a striking book-matched Italian marble headboard. Towards the front, a garden terrace extends the living space outdoors. Rough-polished Kota stone flooring and brick-clad walls give the terrace a tactile, natural feel, while metal pergolas provide soft shade—making it an ideal spot for morning tea or watching sunsets.


Brother's Bedroom of Bhanushali House by Flamingo Architects


Kid's Bedroom of Bhanushali House by Flamingo Architects

The children's room on the opposite side is designed to be playful—a bunk bed above a double bed, a reading window seat facing east, and a cozy rocking chair. A large window looks down into the courtyard so that the kids remain connected to the home’s central space even when tucked away in their room. Their bathroom continues the cheerful palette with white stone, green marble, and terrazzo finishes.


Kid's Bedroom of Bhanushali House by Flamingo Architects

The exterior of the house is defined by a balanced mix of grey textured finishes, brick cladding, and clean white surfaces—brought to life by carefully placed greenery. It’s a simple, timeless palette that feels both rooted and contemporary.

What truly defines this home, though, is the way the central courtyard ties everything together. It brings light, establishes visual connections across floors, and acts as the emotional core of the house. Much like an elder in the family, the courtyard quietly anchors the everyday life that unfolds around it—offering warmth, presence, and a sense of calm.


Kid's Toilet of Bhanushali House by Flamingo Architects


Elevation of Bhanushali House by Flamingo Architects


Ground Floor Plan of Bhanushali House by Flamingo Architects


First Floor Plan of Bhanushali House by Flamingo Architects


Second Floor Plan of Bhanushali House by Flamingo Architects


Section of Bhanushali House by Flamingo Architects




Most Visited Articles




Subscribe

Get our latest article and updates delivered straight to your inbox.