Text provided by Architect 

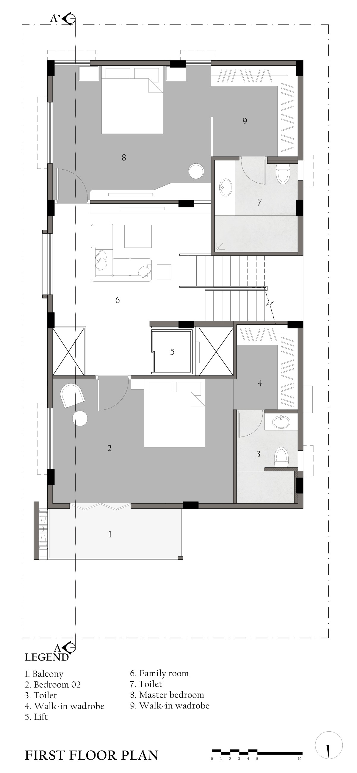
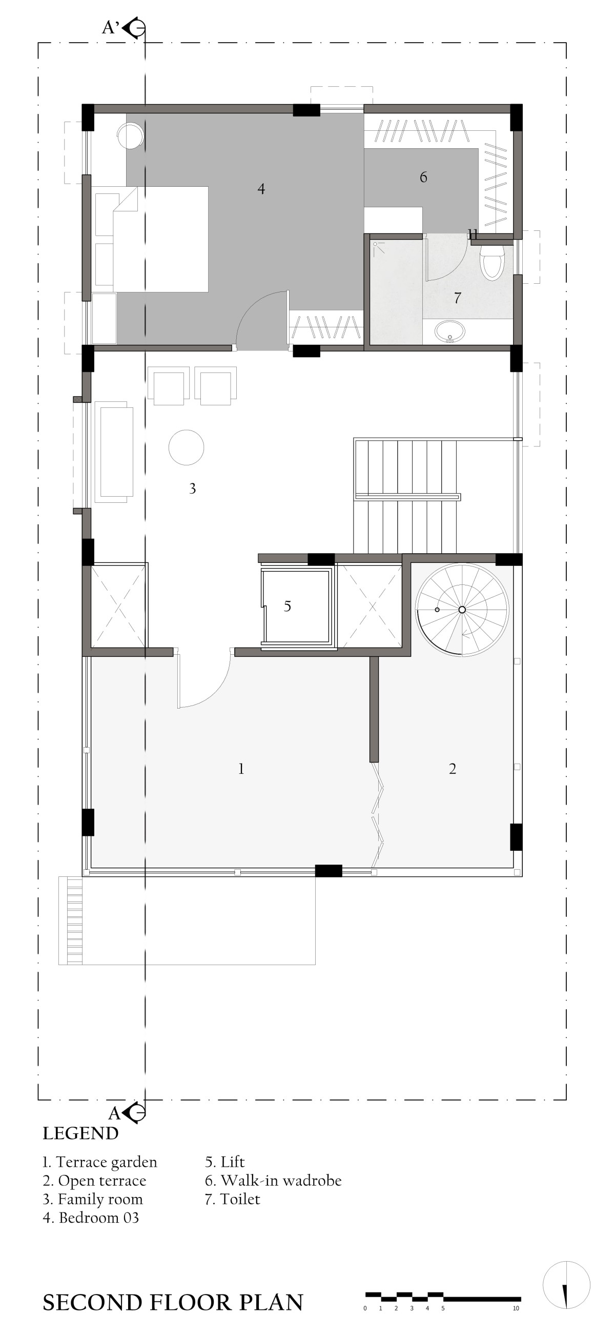
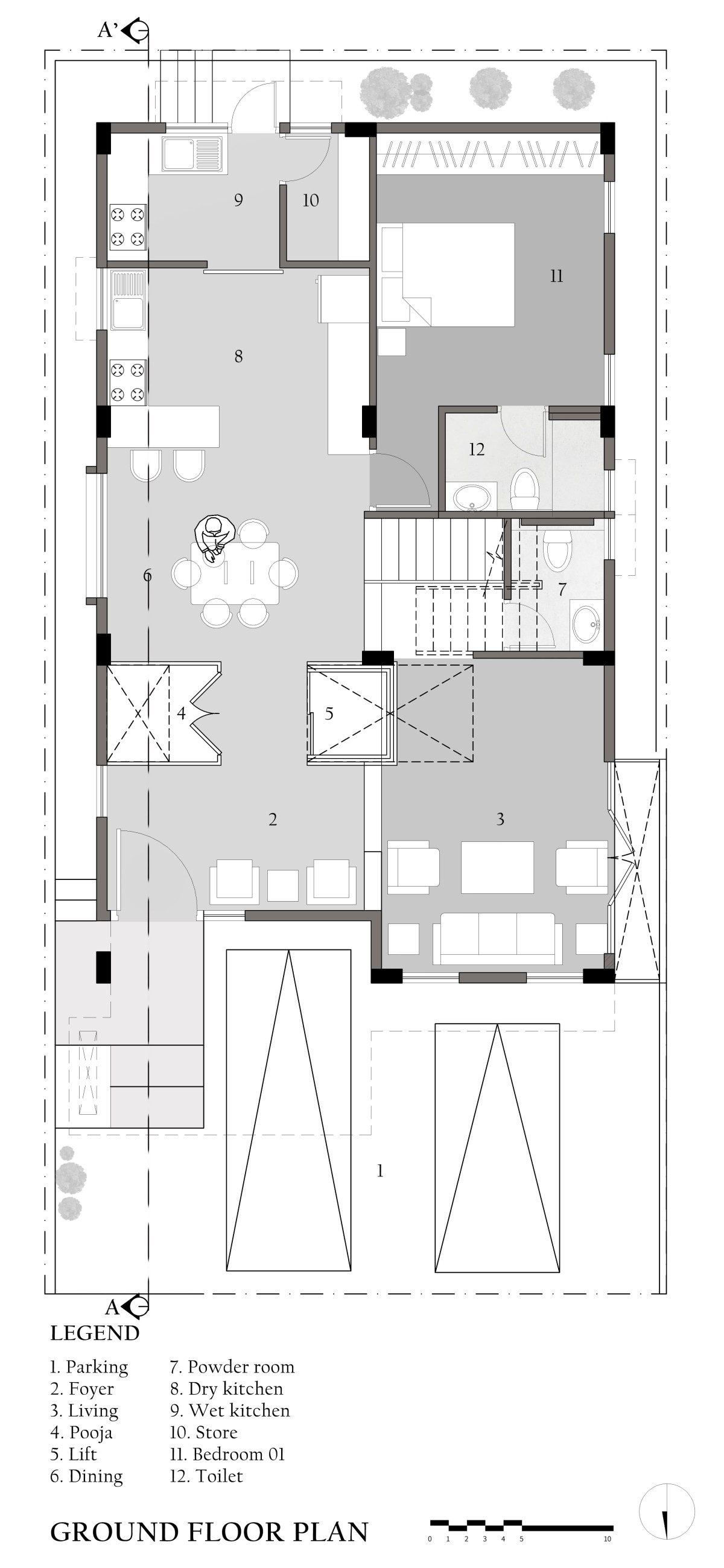
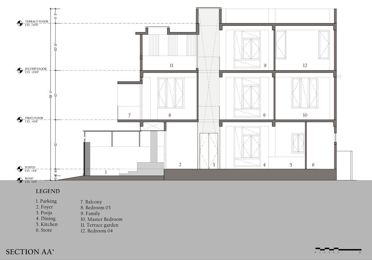
A compact house designed for a nuclear family of four. The design script is modern and functional with linear planning. It is a 4-bedroom home spread across 3 floors with optimal spatial planning. The ground level has the formal living area, pooja room, kitchen and dining area along with a bedroom. The next floor has two bed rooms connected by a common space. The third floor has another bedroom and a terrace space that is designed to serve as an area for the family members to unwind over music or a book after a long day. 

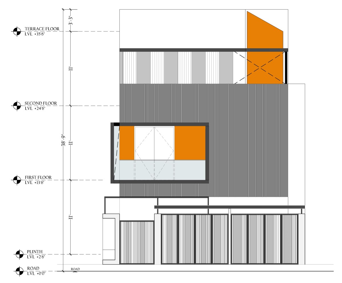
Site context is factored during the design phase to ensure the built form blends harmoniously with the external surroundings.  The bold façade design is achieved with the massing technique. The wall fenestration for the balcony is highlighted using the two-tone colour palette. This adds style and character to the built form. The simplistic aspect of the design continues in the material and the colour palette chosen for the house.

Detailing like the material choice for the façade design, the mild steel frame with concrete and wood finish used in the gate, car park covered with glass and MS framework elevates the overall look of the project.

Kolar,Karnataka,India

Architects : Int-Hab Architecture + Design Studio
Area : 3,090 sq.ft.
Year of Completion : 2025
Website : https://instagram.com/intuitive_habitat?igshid=MzRlODBiNWFlZA==

Entrance Porch of Chirantana by Int-Hab Architecture + Design Studio


Living room of Chirantana by Int-Hab Architecture + Design Studio


Dining of Chirantana by Int-Hab Architecture + Design Studio


Dining & Kitchen of Chirantana by Int-Hab Architecture + Design Studio


View from kitchen of Chirantana by Int-Hab Architecture + Design Studio


Pooja Mandir of Chirantana by Int-Hab Architecture + Design Studio


Bedroom 1 of Chirantana by Int-Hab Architecture + Design Studio


Bedroom 2 of Chirantana by Int-Hab Architecture + Design Studio


Walk in wardrobe of Chirantana by Int-Hab Architecture + Design Studio


Terrace Garden of Chirantana by Int-Hab Architecture + Design Studio


Dusk light exterior view of Chirantana by Int-Hab Architecture + Design Studio


Dusk light exterior view of Chirantana by Int-Hab Architecture + Design Studio


North Elevation of Chirantana by Int-Hab Architecture + Design Studio


Ground Floor Plan of Chirantana by Int-Hab Architecture + Design Studio


First Floor Plan of Chirantana by Int-Hab Architecture + Design Studio


Second Floor Plan of Chirantana by Int-Hab Architecture + Design Studio


Section AA of Chirantana by Int-Hab Architecture + Design Studio




Most Visited Articles




Subscribe

Get our latest article and updates delivered straight to your inbox.