Architecture

25-09-2025

Photographer : Yash R Jain

Set in the city of Vellore, this residence was designed for a client with a deep connection to both tradition and modern contemporary, someone who values timeless aesthetics, Vastu principles, and materials that speak to personal history. The result is a home that balances English-inspired elegance with contemporary minimalism. Every room was aligned to Vastu principles, without compromising on modern spatial logic. 

The elevation features a blend of minimal designs and functional materials. Textured paint, mild steel and wooden accents that combine visual appeal and functionality forms the facade. Greyed elements in the exterior, complement the overall structure and seamlessly accentuate the frontage in a sophisticated light.

At the heart of this project is a subtle blend of tradition, values and English contemporary. The interiors of this contemporary house adopt a minimalist philosophy as well as focuses on the effective use of materials, clean lines, clear spaces and the occasional color pop. The client was specific about two things- Vastu and spacious spaces. 


Vellore,Tamil Nadu,India

Architects : Grid Studio
Area : 2900 sq. ft.
Year of Completion : 2024
Website : https://www.instagram.com/gridstudio.in/

Exterior view of Deepa Residence by Grid Studio


Living room of Deepa Residence by Grid Studio

With 2900 sq. ft this was a challenge they loved to overcome. The strategy: minimal walls and compact utilitarian spaces. Hence the living flows into dining followed by a small spill-out garden and an open-kitchen, this way there is no disconnect letting one space lead to another effortlessly. The more private areas: storage, washrooms and the powder room are tucked into the plan with intent allowing the main spaces to feel generous and uncluttered.

As a team they were particularly keen about the beautiful spill-out garden featured in the house. It is not just an outdoor space, but an extension of the interior itself. Flowing directly from the living and dining areas, it blurs the boundary between inside and out, drawing in natural light, fresh air, and a constant connection to greenery. More than a visual feature, it’s a functional part of daily life, it’s a place to pause, gather, or simply breathe. The garden grounds the entire spatial experience and gives the home its sense of openness, calm, and rhythm.

One of the most unique aspects of this home is its material story. Their client comes from a background in stainless steel manufacturing, and they chose to reflect that subtly in the design. Stainless steel accents appear throughout — in detailing, hardware, lighting elements, and custom furniture. Rather than dominating the palette, the steel becomes a quiet signature. All in all, they think this project is a study in duality: of tradition and modernity, softness and steel, inside and out.


Living room of Deepa Residence by Grid Studio


TV Unit of Deepa Residence by Grid Studio


Dining of Deepa Residence by Grid Studio


Dining overlooking the garden of Deepa Residence by Grid Studio


The spill out garden of Deepa Residence by Grid Studio


Kitchen of Deepa Residence by Grid Studio


Kitchen of Deepa Residence by Grid Studio


Pooja room of Deepa Residence by Grid Studio


Buddha Statue of Deepa Residence by Grid Studio


Staircase of Deepa Residence by Grid Studio


Lounge of Deepa Residence by Grid Studio


Library unit at Lounge of Deepa Residence by Grid Studio

This residence is a reflection of the client’s unique sensibilities and a deep respect for tradition paired with an appreciation for modern clarity. By integrating Vastu-aligned planning with open, spacious interiors, the home meets both functional and spiritual needs without compromise. Including subtle stainless steel accents gave the house a personal touch rooted in their own history. The result is a home that is not only visually balanced and serene but also deeply connected to the client's values and lifestyle.


Master Bedroom of Deepa Residence by Grid Studio


Master Bedroom of Deepa Residence by Grid Studio


Master Bedroom Toilet of Deepa Residence by Grid Studio


Daughter's Bedroom of Deepa Residence by Grid Studio


Daughter's Bedroom of Deepa Residence by Grid Studio


Daughter's Bedroom Toilet of Deepa Residence by Grid Studio


Son's Bedroom of Deepa Residence by Grid Studio


Powder room of Deepa Residence by Grid Studio


Tulsi Madam of Deepa Residence by Grid Studio


Dusk light exterior view of Deepa Residence by Grid Studio


Front Elevation of Deepa Residence by Grid Studio


Site Plan of Deepa Residence by Grid Studio


Ground Floor Plan of Deepa Residence by Grid Studio


First Floor Plan of Deepa Residence by Grid Studio


Terrace Floor Plan of Deepa Residence by Grid Studio


Section AA of Deepa Residence by Grid Studio


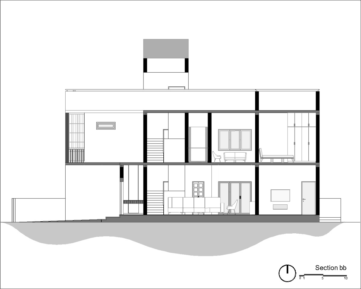
Section BB of Deepa Residence by Grid Studio




Most Visited Articles




Subscribe

Get our latest article and updates delivered straight to your inbox.