The homeowners, though raised across various Indian cities, held a deep-seated connection to Kerala, the land of their ancestry. Their vision was clear: to create a sanctuary in Bengaluru that resonated with the essence of Kerala's architectural and cultural ethos. Their challenge was to interpret this sentimentality into tangible design elements that would make their home a living testament to their roots.

Situated in Sarjapur, the plot, while not expansive, offered potential for a harmonious blend of indoor and outdoor spaces. Maximizing natural light and ensuring fluidity between areas became paramount. They adopted an open-plan concept for communal spaces, allowing for seamless transitions and fostering a sense of openness. Strategic placement of windows, a central stairwell skylight, and tall mid-landing windows ensured that the home was bathed in layers of golden light throughout the day.

Drawing inspiration from Kerala's rich architectural palette, they incorporated materials that evoke nostalgia and authenticity. The façade features laterite cladding, a material synonymous with Kerala's traditional structures. This also draws upon the vernacular architecture, paying homage to it. Inside, the flooring tells its own story. They selected yellow Kota stone for the ground floor, its warm hues reminiscent of sunlit courtyards in Kerala homes. The upper levels feature a lighter shade, creating a subtle contrast while maintaining cohesiveness. The use of filler slabs on the car park roof and earthen pots in the foyer further accentuate the home's earthy aesthetic. Kerala's architecture is renowned for its integration with nature. To emulate this, they designed the home to blur the boundaries between indoors and outdoors. Large windows frame views of the surrounding greenery, inviting nature into the heart of the home. This design approach not only enhances aesthetic appeal but also promotes natural ventilation and lighting.

Bangalore,Karnataka,India

Architects : Aanai Design Studio
Area : 3250 sq. ft.
Year of Completion : 2025
Website : https://www.instagram.com/aanaistudio/

Exterior view of Dhaara Residence by Aanai Design Studio


Exterior view of Dhaara Residence by Aanai Design Studio


Foyer of Dhaara Residence by Aanai Design Studio


Ground Floor Living of Dhaara Residence by Aanai Design Studio


Ground Floor Living of Dhaara Residence by Aanai Design Studio


Ground Floor Living of Dhaara Residence by Aanai Design Studio


First Floor Living of Dhaara Residence by Aanai Design Studio


First Floor Living of Dhaara Residence by Aanai Design Studio


First Floor Living of Dhaara Residence by Aanai Design Studio


Dining to Kitchen view of Dhaara Residence by Aanai Design Studio


First Floor Kitchen of Dhaara Residence by Aanai Design Studio

The kitchen was designed with minimalism and functionality in mind. A quartz countertop and backsplash provide durability, while wood-finish laminate and fluted glass upper cabinets add a touch of elegance. The breakfast counter, illuminated by a custom Olie pendant light, introduces a pop of color, creating a cheerful space for family gatherings.

For the interiors itself, they tried to bring a balance between aesthetic minimalism and cultural resonance. A harmonious combination of laterite, terracotta pot filler slab roofing, and Kota stone flooring forms the core of the structural and visual language. Each material has been chosen not only for its durability and tactile quality but also for its ability to evoke a strong sense of place. Laterite, with its earthy texture and warm hues, pays homage to traditional South Indian architecture, while Kota stone adds a cooling, understated elegance to the floors.


First Floor Kitchen of Dhaara Residence by Aanai Design Studio


Skylight of Dhaara Residence by Aanai Design Studio


Stairway of Dhaara Residence by Aanai Design Studio

One of the central design features of the home is the stairwell, crowned with a skylight that fills the space with natural light throughout the day. This skylight, in combination with intricately patterned Jaali blocks, creates a dynamic interplay of light and shadow — a subtle yet captivating experience as one moves through the vertical spine of the house.

All the bedroom spaces have a touch of artisanal detail to evoke a sense of quiet luxury. Teak wood, known for its richness and durability, is used across various furniture and built-in elements, complemented by the soft gleam of brass accents. These are further softened by block-printed fabric inlays that bring in texture, warmth, and a handcrafted touch. Altogether, these elements come together to shape a calm, serene atmosphere — a peaceful retreat nestled within the busy rhythms of city life, offering a perfect balance between tradition and modern comfort.


Ground Floor Guest Bedroom of Dhaara Residence by Aanai Design Studio


Master Bedroom of Dhaara Residence by Aanai Design Studio


Master Bedroom of Dhaara Residence by Aanai Design Studio


Master Bedroom of Dhaara Residence by Aanai Design Studio


Second Floor Daughter's Bedroom of Dhaara Residence by Aanai Design Studio


Second Floor Daughter's Bedroom of Dhaara Residence by Aanai Design Studio


Second Floor Son's Bedroom of Dhaara Residence by Aanai Design Studio


Second Floor Son's Bedroom of Dhaara Residence by Aanai Design Studio


Second Floor Balcony of Dhaara Residence by Aanai Design Studio


Ground Floor Plan of Dhaara Residence by Aanai Design Studio


First Floor Plan of Dhaara Residence by Aanai Design Studio


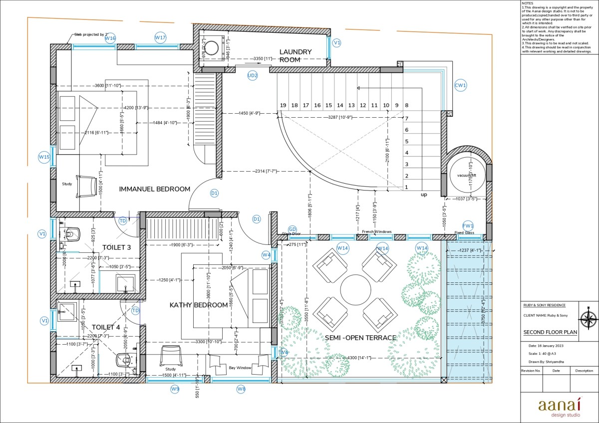
Second Floor Plan of Dhaara Residence by Aanai Design Studio


Terrace Floor Plan of Dhaara Residence by Aanai Design Studio




Most Visited Articles




Subscribe

Get our latest article and updates delivered straight to your inbox.