Earthen Hues embodies a synthesis of natural aesthetics and contemporary design, serving as the immersive sales office for a visionary residential project. Situated as the gateway to a community harmonizing with nature, the office is meticulously designed to evoke a sense of serenity and elegance through its use of earthy materials and understated luxury. The spatial layout embraces an open-plan concept, fostering fluidity and interaction among its various zones.

Upon entering, visitors are greeted by a reception area that sets the tone for the entire experience. Here, a bespoke desk crafted from wood and terazzo stands as a testament to craftsmanship, adorned with abundant greenery that introduces a touch of natural tranquility. This juxtaposition of raw materials and verdant life immediately establishes a connection to the project’s ethos of living in harmony with nature.

Walls adorned in lime-washed plaster lend a soft, luminous backdrop that enhances both natural light and the tactile warmth of the space. These walls not only reflect the project’s commitment to earth-inspired aesthetics but also imbue the environment with a luxurious yet approachable ambiance. Adjacent to the main area, discreet AV rooms offer private spaces for multimedia presentations and client consultations. These rooms, seamlessly integrated into the overall design, ensure functional efficiency without compromising the cohesive design language of the office. 

Pune,Maharashtra,India

Architects : Sankalp Designers
Area : 1900 sq. ft.
Year of Completion : 2024
Website : https://www.instagram.com/sankalp_designers_india/?hl=en

Discussion Table to Reception Area view of Earthen Hues - Office by Sankalp Designers

Architecturally, the space is characterized by gentle curves and soft edges, meticulously incorporated into openings, wall junctions, and bespoke furniture pieces. These organic forms evoke a sense of fluidity and comfort, reminiscent of natural landscapes and contributing to a welcoming atmosphere. Materiality plays a pivotal role in defining the sensory experience of Earthen Hues. Throughout the office, natural materials such as wood and terrazzo dominate, selected not only for their aesthetic appeal but also for their sustainable credentials. 


Discussion Table of Earthen Hues - Office by Sankalp Designers

Furniture, crafted in neutral tones and minimalist profiles, harmonizes effortlessly with the surrounding elements, reinforcing the overarching theme of understated luxury and environmental consciousness. Beyond its aesthetic and functional qualities, Earthen Hues is designed to offer clients a profound sensory journey. The combination of tactile textures, serene color palettes, and curated lighting creates an environment that invites exploration and contemplation. Each detail, from the choice of materials to the arrangement of spaces, is meticulously curated to evoke a sense of calm and well-being, encouraging clients to envision themselves within the larger community that the office represents. 


Reception area of Earthen Hues - Office by Sankalp Designers


View from reception area of Earthen Hues - Office by Sankalp Designers


Passage to Meeting cabins of Earthen Hues - Office by Sankalp Designers


Veiw from entrance foyer of Earthen Hues - Office by Sankalp Designers

In conclusion, Earthen Hues transcends the traditional concept of a sales office by embodying a holistic approach to design and client experience. It serves not merely as a point of transaction but as a sanctuary where architecture, nature, and human interaction converge harmoniously. Through its thoughtful integration of natural elements, minimalist elegance, and sustainable practices, Earthen Hues not only reflects the values of its residential project but also inspires a deeper connection between clients and their envisioned lifestyle. It stands as a testament to the transformative power of design in shaping environments that resonate with authenticity and enduring beauty.


Entrance of Earthen Hues - Office by Sankalp Designers


Entrance of Earthen Hues - Office by Sankalp Designers


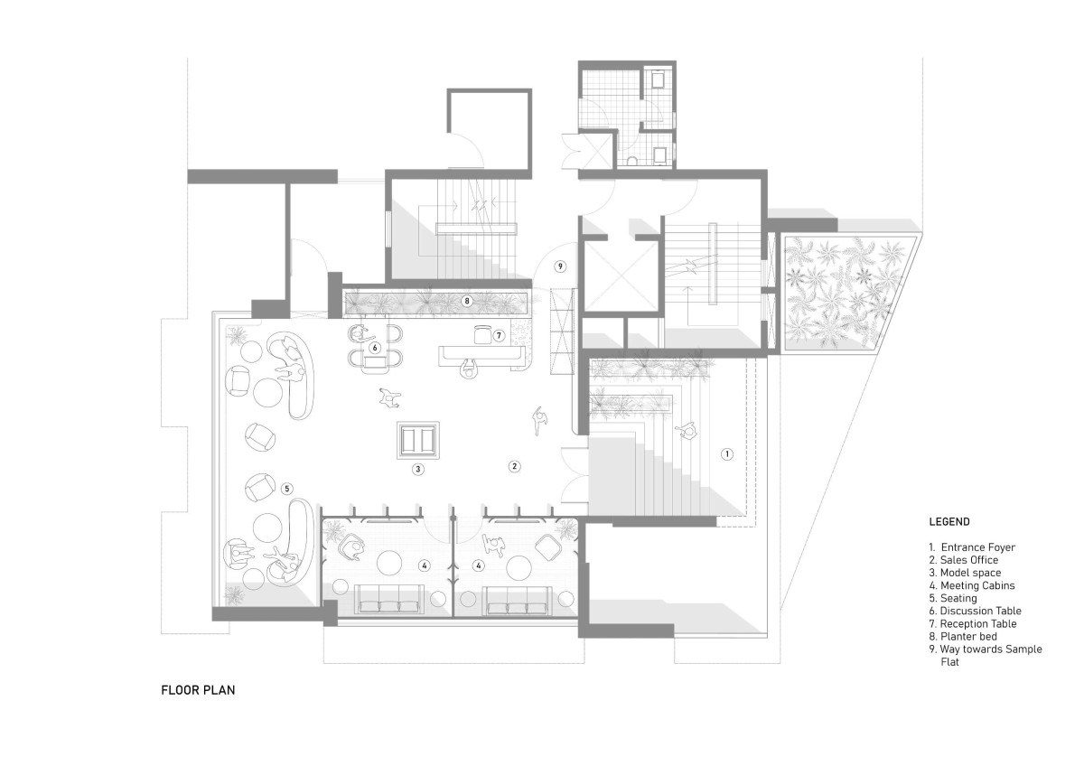
Floor Plan of Earthen Hues - Office by Sankalp Designers




Most Visited Articles




Subscribe

Get our latest article and updates delivered straight to your inbox.