Architecture

15-07-2025

EESHA is set amidst farms that are seasonally changing landscapes, in a location that is slowly transforming from rural to urban. This home is designed to blend in with its surroundings - earthy, serene and natural. 

They don't know what the context will change into in the future, but they hope that this home will carry on the essence of its current natural setting! This home is a load bearing structure (without any rcc columns but with the walls taking all the load) built on a modest budget. Various alternative construction techniques like filler slab with bricks, clay pots and hollow clay blocks are incorporated to reduce concrete usage. All these techniques and materials are also helpful with thermal insulation.

The walls are built using CSEB - Compressed stabilized earth blocks that are unburnt mud bricks. Most of the doors and windows are re-purposed grills, frames and shutters from old homes that were demolished. The metal fabrication work for the gate is re-purposed material too. 

This cozy home is simple from the get-go and designed to accommodate a slow life for the residents who built this as a retirement home. The brief was to build only what is required and in a sustainable manner, while making room for pockets of landscape wherever possible.

Bangalore,Karnataka,India

Architects : Design Kacheri
Area : 1680 sq. ft.
Year of Completion : 2023
Website : https://www.instagram.com/designkacheri/?hl=en

Exterior view of Eesha by Design Kacheri


Exterior view of Eesha by Design Kacheri


Living room of Eesha by Design Kacheri


Staircase of Eesha by Design Kacheri


Ceiling of Eesha by Design Kacheri


First floor view of Eesha by Design Kacheri


First floor view of Eesha by Design Kacheri


Terrace of Eesha by Design Kacheri


Garden of Eesha by Design Kacheri


Aerial view of Eesha by Design Kacheri


Front Elevation of Eesha by Design Kacheri


Ground Floor Plan of Eesha by Design Kacheri


First Floor Plan of Eesha by Design Kacheri


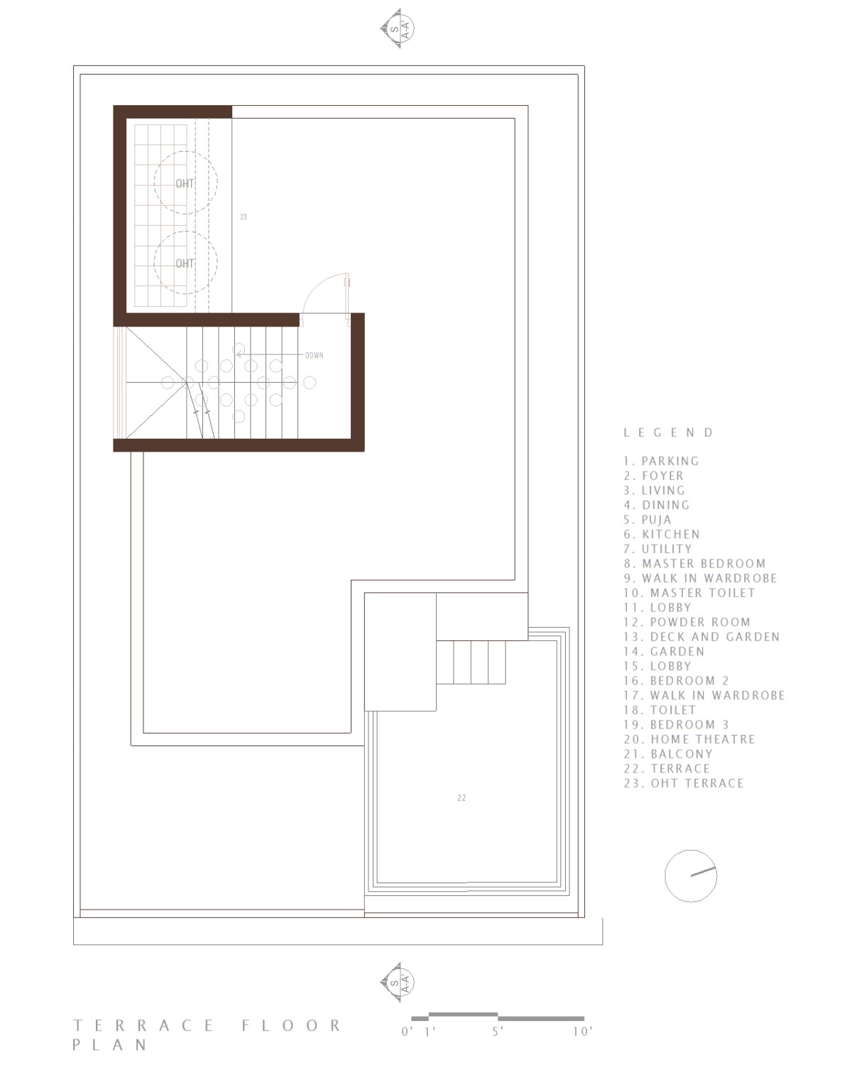
Terrace Plan of Eesha by Design Kacheri


Section AA of Eesha by Design Kacheri




Most Visited Articles




Subscribe

Get our latest article and updates delivered straight to your inbox.