Architecture

07-11-2025

Photographer : Purnesh Dev Nikhanj

Text provided by Architect

The Studio was tasked with designing a residence for a septuagenarian couple and their extended family while adhering to Chandigarh’s strict framed architectural controls. Rather than viewing the mandated portal frame as a limitation, the design embraces the frame as an integral architectural element, carving out recesses and extrusions within its boundaries to create depth and articulation. A carefully orchestrated play of solid and void, allows 
theresidence to establish its own identity while remaining rooted in the city’s structured design ethos.

By keeping the public & semi-public spaces at the ground floor, the upper floors were planned for the private spaces with exterior spillover terraces at the frontage. Planning the vertical circulation block at the front gave a play of extruded masses and subtracted volumes within the Portal Frame.As a result, instead of a flat, vertical face, the façade subtly inclines and shifts, adding depth and visual interestcharacterized by its angular and non-uniform window placements. The pergolas on both the porch and first-floor terrace play a crucial role in softening the overall structure while adding a layer of openness and 
connection to nature, blending contemporary architecture with traditional elements.

To optimize natural ventilation, a central open-to-sky courtyard was integrated thereby serving as the lungs of the house, reducing reliance on mechanical cooling while flooding adjacent spaces with natural light. Beyond its functional benefits, it creates a seamless spatial connection, blurring indoor-outdoor boundaries and fostering an engaging, nature-infused living experience.

Chandigarh,India

Architects : Studio Mohenjodaro
Area : 3540 sq. ft.
Year of Completion : 2024
Website : https://www.instagram.com/studiomohenjodaro/?hl=en

Exterior view of Framed Voids by Studio Mohenjodaro


Entrance lobby of Framed Voids by Studio Mohenjodaro


Lift lobby of Framed Voids by Studio Mohenjodaro


Study Area of Framed Voids by Studio Mohenjodaro

A strategically placed study overlooks the courtyard, ensuring a constant visual link to household activities while being bathed in natural light. The private quarters are designed with a philosophy of understated luxury—simple yet cozy, ensuring comfort without excess. Organic forms emerge on the upper terrace such as the washed concrete sitting ledge, a stairway to the mumty with the landing doubling as a shading device, softening the architectural lines while crafting spaces that invite pause and reflection. The first-floor terrace features a swing set, an element of nostalgia and leisure, while the courtyard integrates a hammock net, a delightful retreat for the granddaughter.


Courtyard of Framed Voids by Studio Mohenjodaro



Kitchen of Framed Voids by Studio Mohenjodaro


First floor view of Framed Voids by Studio Mohenjodaro


Reading nook of Framed Voids by Studio Mohenjodaro

A rich material palette defines the residence, where warm wood flows seamlessly through the flooring, furniture, and ceilings to create a unified, inviting atmosphere. The flooring, with its subtle transitions between textures, delicately delineates zones without imposing physical barriers. Bold Gwalior stone on the façade establishes a strong presence, while the interiors are elevated by the understated elegance of Jaisalmer, Kadappa and Kota stone. Intricate chip flooring with brass inlays leading to the bedrooms harmonizes softly with textured grey walls and ceilings, and the terrace’s gracefully curved brick and tile pattern adds a dynamic counterpoint—together crafting a contemporary narrative that is both refined and timeless.

The residence strikes a fine balance between structure and fluidity, where material richness and thoughtful design shape a warm, immersive environment. Dynamic light patterns bring the spaces to life, while effortless connections to the outdoors ensure a living experience that is both grounded and ever-evolving.


Bedroom 1 of Framed Voids by Studio Mohenjodaro


Bedroom 1 of Framed Voids by Studio Mohenjodaro


Bedroom 2 of Framed Voids by Studio Mohenjodaro


Toilet of Framed Voids by Studio Mohenjodaro


First Floor Terrace of Framed Voids by Studio Mohenjodaro


First Floor Terrace of Framed Voids by Studio Mohenjodaro


Terrace of Framed Voids by Studio Mohenjodaro


Terrace of Framed Voids by Studio Mohenjodaro


Front Elevation of Framed Voids by Studio Mohenjodaro


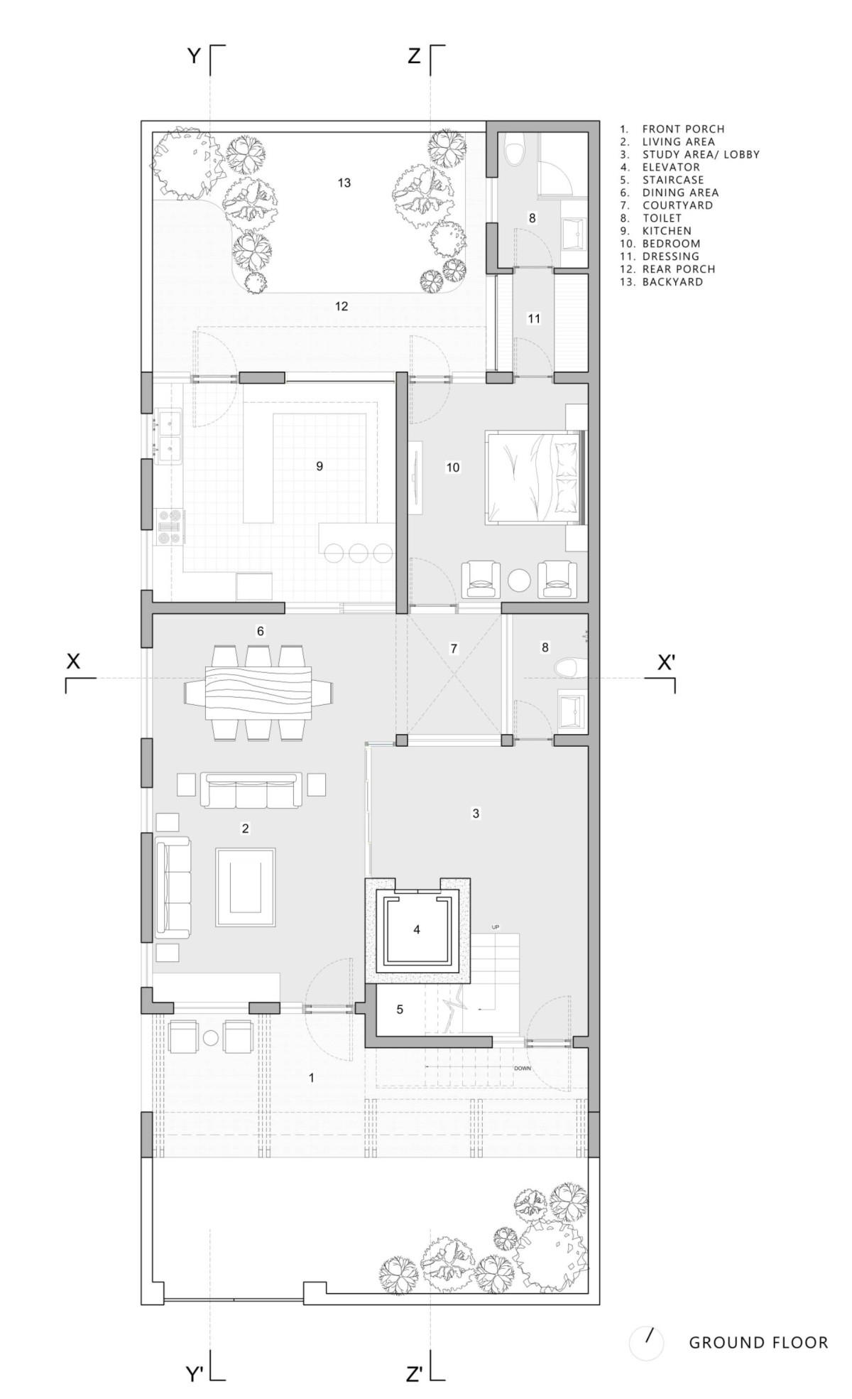
Ground Floor Plan of Framed Voids by Studio Mohenjodaro


First Floor Plan of Framed Voids by Studio Mohenjodaro


Second Floor Plan of Framed Voids by Studio Mohenjodaro


Section XX of Framed Voids by Studio Mohenjodaro


Section YY of Framed Voids by Studio Mohenjodaro


Section ZZ of Framed Voids by Studio Mohenjodaro




Most Visited Articles




Subscribe

Get our latest article and updates delivered straight to your inbox.