Text provided by Architect

HANOK – Soulful Food is an adaptive reuse project by SAGA Design Studio that transforms a modest private residence in Hyderabad into a Korean-inspired dining space rooted in material warmth, cultural reinterpretation, and budget-conscious design. Curated by Principal Architect Muralidhar Gajula, the project draws from the spatial language of the traditional Korean hanok, translating its sensitivity to nature, crafted tactility, and calm rhythms into an Indian tropical and urban context. Rather than replicating Korean architecture literally, the design abstracts its core elements—pitched roofs, timber geometries, lattice patterns, and indoor-outdoor fluidity—and reimagines them through local construction techniques and regionally available materials.

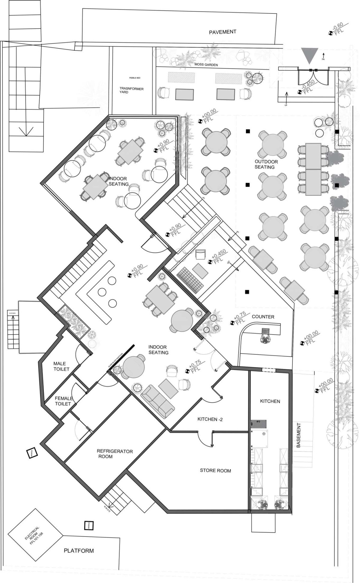
Working within a limited budget of ₹1 Crore, the studio focused on retaining as much of the existing structure as possible. The adaptive reuse strategy minimized demolition and construction waste, enabling high-impact spatial transformation through selective interventions. A newly introduced Mangalore-tiled pitched roof, supported on economical MS framing clad in distressed pine wood, becomes the dominant architectural gesture and the heart of the café. This central semi-open pavilion functions like a contemporary reinterpretation of a hanok courtyard: a breezy, light-filled dining volume that mediates between the interior rooms and the surrounding landscape.

Materiality plays a significant role in shaping the sensorial identity of the café. The palette is restrained yet texturally rich—woven bamboo ceilings, rustic pine wood cladding, terracotta jaalis, rough-textured granite or limestone, and earthy texture paints. These surfaces, combined with soft lighting and abundant planting, evoke the warmth and craftsmanship associated with East-Asian vernacular architecture while remaining grounded in local construction practices. Local artisans were engaged for custom bamboo work, brick jaalis, and other handcrafted details, reinforcing the project’s commitment to regional craft and affordability.

Hyderabad,Telangana,India

Architects : Saga Design Studio
Area : 4000 sq. ft.
Year of Completion : 2024
Website : https://www.instagram.com/saga_designstudio/

Exterior view of Hanok Seoulful Food by Saga Design Studio


Outdoor Seating of Hanok Seoulful Food by Saga Design Studio


Outdoor Seating of Hanok Seoulful Food by Saga Design Studio


Outdoor Seating of Hanok Seoulful Food by Saga Design Studio

The spatial sequence begins with a hanok-inspired entrance threshold marked by a pitched roof canopy and timber-framed double doors. A perforated brick boundary wall and subtle landscape edges soften the transition from the street into the dining environment. A verandah-like corridor with bamboo-woven ceiling panels leads guests toward the central pavilion, gradually dissolving the boundaries between indoors and outdoors. The preserved rooms of the original residence have been reconfigured into intimate indoor dining areas featuring wooden floors, lattice-pattern wall claddings reminiscent of Korean window frames, and furniture that echoes the café’s warm, earthy aesthetic.

The layout integrates both enclosed and open-air seating to accommodate varied dining preferences and climatic conditions. The interplay of spatial layers—threshold, veranda, courtyard, indoor rooms—creates a rhythm that feels simultaneously familiar and culturally distinct, achieving a balance between Korean inspiration and Indian contextual responsiveness.


Outdoor Seating of Hanok Seoulful Food by Saga Design Studio


Outdoor Seating of Hanok Seoulful Food by Saga Design Studio


Entryway to indoor seating of Hanok Seoulful Food by Saga Design Studio


Passage to indoor seating of Hanok Seoulful Food by Saga Design Studio


Indoor Seating of Hanok Seoulful Food by Saga Design Studio

HANOK – Soulful Food stands as an example of “economy with elegance”: a project that achieves atmospheric richness and cultural depth without relying on expensive materials or literal stylistic imitation. Through sensitive reinterpretation, thoughtful detailing, and grounded material choices, the café offers a soulful dining experience that bridges cultures, climates, and crafts, embodying the essence of the hanok while firmly rooted in the urban fabric of Hyderabad.


Indoor Seating of Hanok Seoulful Food by Saga Design Studio


Indoor Seating of Hanok Seoulful Food by Saga Design Studio


Elevation of Hanok Seoulful Food by Saga Design Studio


Plan of Hanok Seoulful Food by Saga Design Studio




Most Visited Articles




Subscribe

Get our latest article and updates delivered straight to your inbox.