Text provided by Architect

Situated in a coastal suburb near Kochi, Kerala, ‘Aroor’ house is meticulously designed on a compact east-facing site with a private approach road. Our clients Augustine and Amila, envisioned a home that seamlessly combines rustic charm with practicality. Inspired by the principles of Tropical Modernism, the design prioritizes comfort and efficiency, creating a residence that is both elegant and enduring.

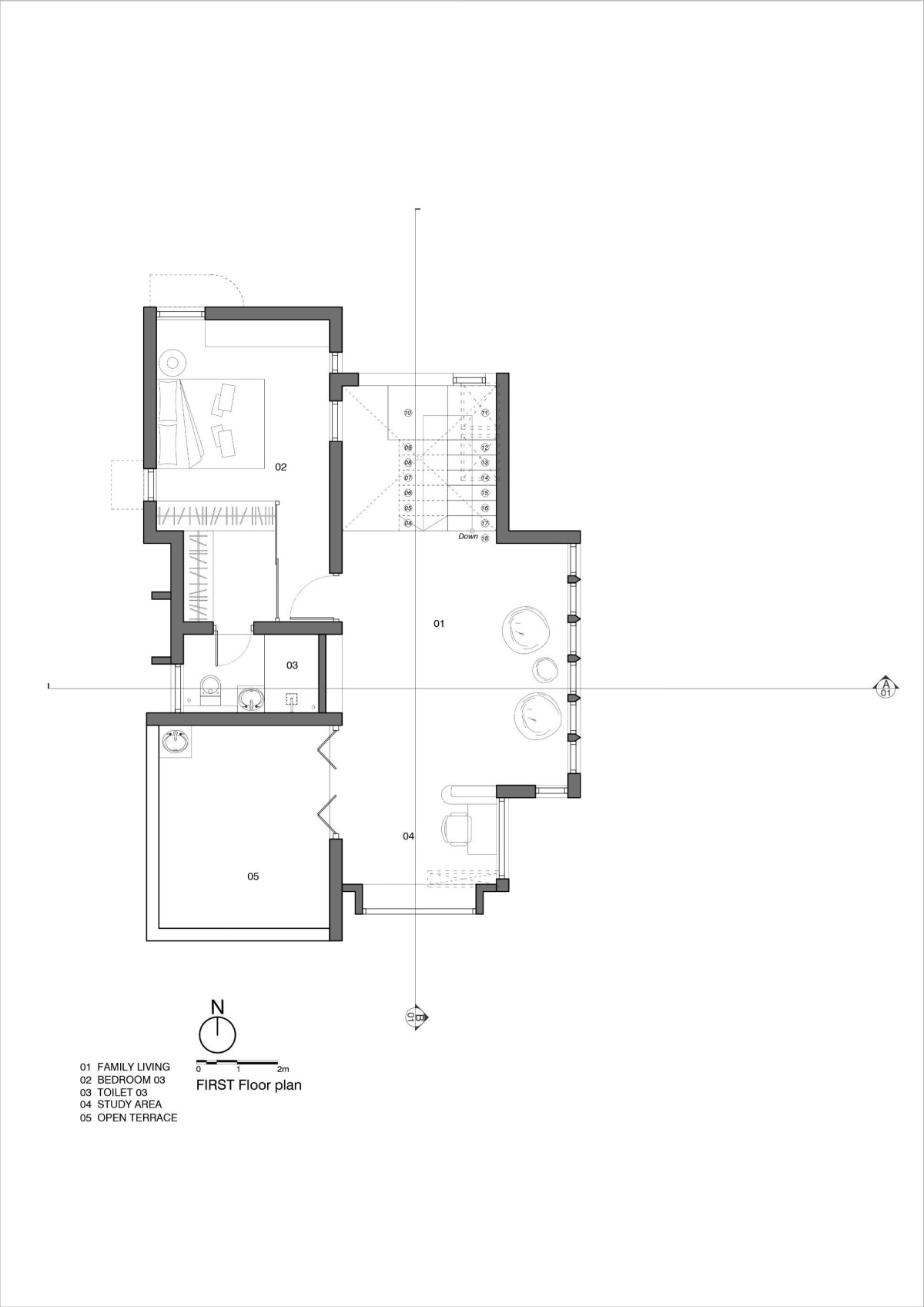
The design prioritizes spatial efficiency by incorporating a central transition zone that houses the staircase and dining area. This layout minimizes circulation spaces while creating seamless connectivity between key areas of the house.

The ground floor is planned to accommodate essential living spaces, including the living room, dining area, kitchen, and two bedrooms. These spaces are compact yet functional, catering to the family’s day-to-day needs with ease. The upper level is envisioned as an open, interactive zone. It includes a family lounge that extends into a breakout space, a study/library area with a cozy bay window, and the master bedroom. This level encourages engagement while offering private retreats.

The material choices reflect a careful blend of tradition and durability. Yellow oxide flooring, reclaimed Mangalore roof tiles, and porotherm jali impart a warm, earthy charm to the interiors, grounding the home in its tropical context. Pastel shades are used to enhance the sense of tranquillity and spaciousness. GI-framed windows and doors with teak wood openings further complement the design, combining robust functionality with traditional craftsmanship.

The design integrates green elements to strengthen the home’s connection with its natural surroundings. A small, landscaped garden at the entrance creates a welcoming ambiance and seamlessly blends with the veranda, fostering an indoor-outdoor living experience that is both relaxing and refreshing.

Aroor,Kerala,India

Architects : Tales of Design studio
Area : 1850 sq. ft.
Year of Completion : 2024
Website : https://www.instagram.com/tales_of_design

Living room of House Aroor by Tales of Design studio


Living room of House Aroor by Tales of Design studio


Prayer area of House Aroor by Tales of Design studio


Dining & Prayer Area of House Aroor by Tales of Design studio


Dining & Kitchen of House Aroor by Tales of Design studio


Courtyard of House Aroor by Tales of Design studio


Courtyard of House Aroor by Tales of Design studio


Staircase of House Aroor by Tales of Design studio


Bedroom 1 of House Aroor by Tales of Design studio


Bedroom 1 of House Aroor by Tales of Design studio


Bedroom 2 of House Aroor by Tales of Design studio


Bedroom 2 of House Aroor by Tales of Design studio


Reading nook or Study Area of House Aroor by Tales of Design studio


Reading nook or Study Area of House Aroor by Tales of Design studio


Ground Floor Plan of House Aroor by Tales of Design studio


First Floor Plan of House Aroor by Tales of Design studio




Most Visited Articles




Subscribe

Get our latest article and updates delivered straight to your inbox.