Architecture

22-02-2026

Photographer : Hemant Patil

Text provided by Architect

Nestled within a semi-urban setting, the site is positioned with the main road to the west, a reserved forest to the east, and the north and south occupied by the residential zone.

Inspired by the forest to the east, we aimed to incorporate its essence into the plot. The design capitalizes on these natural surroundings, seamlessly integrating all spaces with the landscape to evoke a sensation of living within a garden. With a 1:20 slope, the site naturally dictated three levels following its contours: the house centrally located, with the surrounding levels on the east and west dedicated to gardens. The challenge lay in designing a house that seamlessly connects these gardens, providing versatile spaces that effortlessly integrate indoor and outdoor living.

Functioning as a ground-plus-one structure, we’ve structured the house with two distinct volumes on the north and south sides for private areas, while the central section serves as a seamless connection between the east and west gardens, housing all communal activities. Inspiration from ancestral living traditions, where a home symbolizes more than just shelter but also fosters a shared sense of belonging, the design emphasizes connectivity among family members. The layout and sections are crafted to create various volumes, promoting interaction and engagement throughout the home while ensuring ample natural light and ventilation for a healthy environment.

Pune,Maharashtra,India

Architects : studioPPBA
Area : 10333 sq. ft.
Year of Completion : 2023
Website : https://www.instagram.com/studioppba/

Entry Porch of House Between Gardens by studioPPBA

Blurring the lines between indoor and outdoor spaces, the design incorporates large yet controlled openings that seamlessly connect with the surrounding landscape. Upon entry, the formal living area is positioned for public engagement. The open kitchen encourages conversations with the living and dining areas. Internal spaces are arranged to enhance accessibility and interaction, with an open staircase leading to the terrace. Additionally, each room, whether on the ground or first floor, offers outdoor connectivity through verandas or decks.

Adorned in white, the house serves as a canvas for the vibrant colours of daily life, with natural light flooding the interiors throughout the day, creating a fresh and airy atmosphere. The interiors also feature a mix of exposed concrete and white walls, black stone flooring, wooden furniture, and gardens, all embracing a subtle and minimalist aesthetic. 


Living & Dining of House Between Gardens by studioPPBA


Central court to living area view of House Between Gardens by studioPPBA


Skylight to central court of House Between Gardens by studioPPBA

The design of the house is influenced by its climatic orientation and shading devices to maintain cool interior spaces. Deep verandahs, overhangs, horizontal pergolas, and gardens gently filter the intense sunlight. In every room, we strategically placed window openings to enhance cross ventilation while minimizing heat gain.

We designed the double-height living space with an eastern orientation to capture the morning sun, and deep verandahs on the west to enjoy the outdoors, morning and evening light, and west-to-east breezes. In the east garden, the swimming pool seamlessly integrates with the surrounding gardens, while the west verandah offers views of a lotus pond nestled amidst lush greenery, contributing to a naturally cool microclimate.


Passage to staircase of House Between Gardens by studioPPBA


First floor view of House Between Gardens by studioPPBA


Master Bedroom of House Between Gardens by studioPPBA


Guest Bedroom of House Between Gardens by studioPPBA


Bedroom 3 of House Between Gardens by studioPPBA


Deck of House Between Gardens by studioPPBA


View from lawn of House Between Gardens by studioPPBA

The free-standing walls emerged out of the building grid and seamlessly blend into the landscape, anchoring the entire site. Grounded in the belief of fostering human connection through design, the architecture aims to empower residents to shape their own environments and cultivate meaningful experiences within them.


Lawn of House Between Gardens by studioPPBA


Pool side view of House Between Gardens by studioPPBA


Waterbody of House Between Gardens by studioPPBA


Site plan of House Between Gardens by studioPPBA


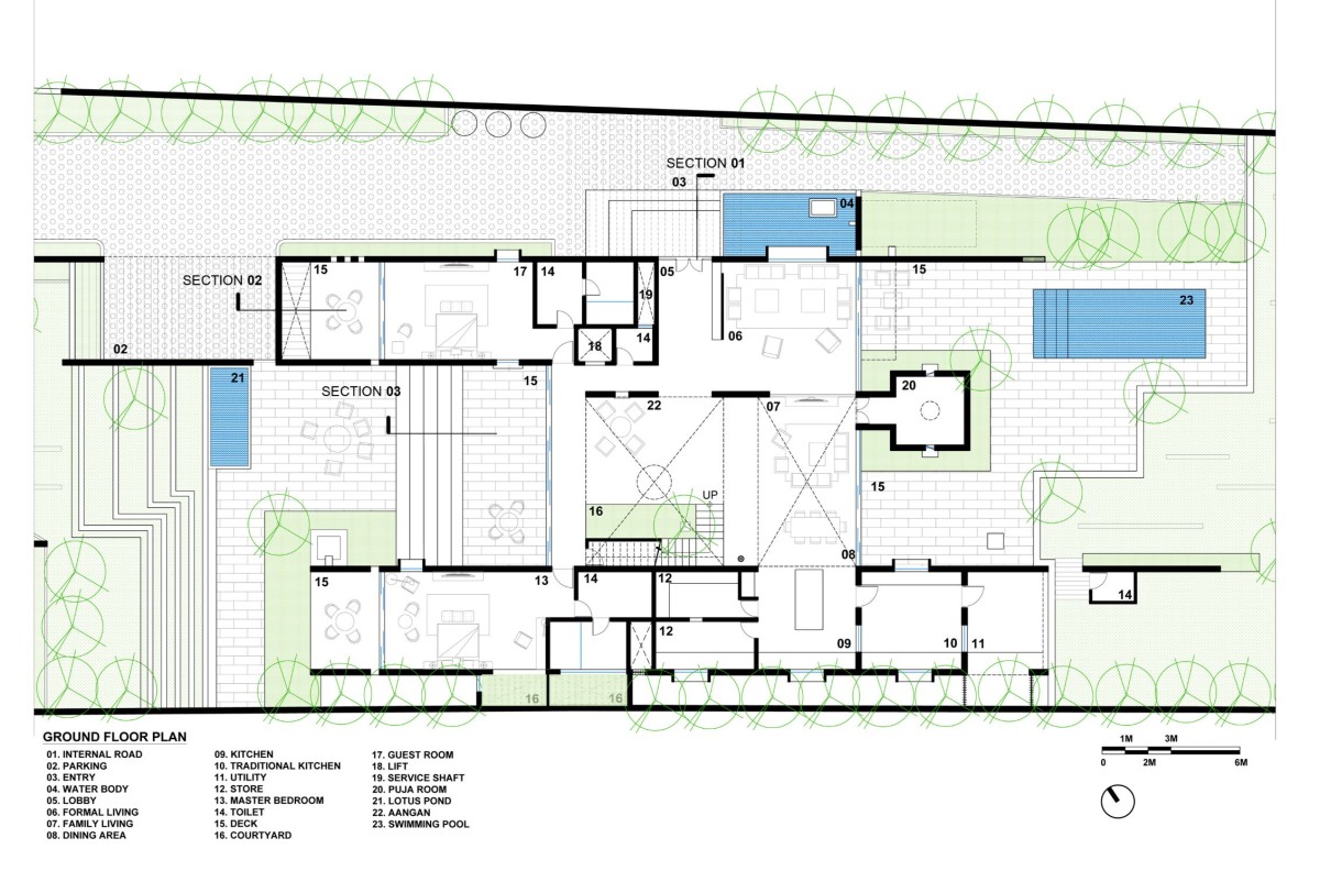
Ground floor plan of House Between Gardens by studioPPBA


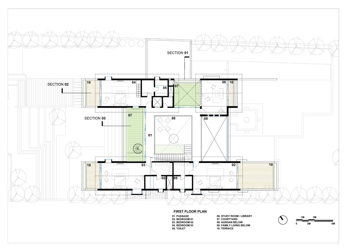
First floor plan of House Between Gardens by studioPPBA


Section 01 of House Between Gardens by studioPPBA


Section 02 of House Between Gardens by studioPPBA


Section 03 of House Between Gardens by studioPPBA




Most Visited Articles




Subscribe

Get our latest article and updates delivered straight to your inbox.