Architecture

24-02-2026

Photographer : Nathan

Text provided by Architect

Tucked away in a quiet plotted layout in north Bengaluru, House of Curves rises as a home meant to be lived in slowly. A lasting home designed to hold a family through all seasons, shaped by years in the misty hills of Coorg that fostered their sense of comfort and belonging.

Designed as a retreat for both solitude and celebration, the home moves effortlessly between stillness and energy. Every design gesture carries this desire for peace that is alive, not static.

Set within a developing neighborhood, the house anticipates a future where nearby plots will rise into built forms. To remain luminous as the surroundings, densify, the planning brings daylight from above, rather than relying on open edges. A skylight above the dining area and another over the staircase draw sunlight deep into the heart of the home, tracing ever-shifting patterns across floors and walls.

The residence takes its name from a sweeping curve that wraps the façade in a continuous reddish-brown ribbon of micro-cement. This gesture ties the floors into a single sculptural mass, shaped through persistence, experimentation, and countless on-site refinements, the curve became both the challenge and the triumph of the project, holding the cantilevered structure together, while the arched openings draw light into the house.

Bangalore,Karnataka,India

Architects : Studio Naadi
Area : 3340.69 sq. ft.
Year of Completion : 2024
Website : https://studionaadi.com/

Exterior view of House of Curves by Studio Naadi


Entrance of House of Curves by Studio Naadi


Entrance of House of Curves by Studio Naadi


Entrance staircase of House of Curves by Studio Naadi




Living Area of House of Curves by Studio Naadi

Arrival at the home is quiet and intentional. A broad flight of steps leads upward, flanked by cascading foliage that softens the structure. The dining space acts as a dynamic anchor, unfolding in layers: an inner glass enclosure, a layer of planting, and an outer metal screen that echoes the facade’s curve. Overhead, a skylight introduces changing rhythms of light and shade, turning the space into an evolving experience rather than a fixed focal point. Inside and outside dissolve into one another, making everyday rituals feel open and expansive.

Across two floors, the residence holds three bedrooms and spaces that frame views thoughtfully. On the lower level, a bedroom looks through the arc of the façade, turning the curve into a lens that captures the garden like a cinematic frame.


Kitchen of House of Curves by Studio Naadi


Pooja Unit of House of Curves by Studio Naadi


Skylight of House of Curves by Studio Naadi


Passage to staircase of House of Curves by Studio Naadi


Bedrooms of House of Curves by Studio Naadi

The upper-level houses two bedrooms and a serene Kodava-style puja space. Here, a suspended brass lamp, the thook bolcha, glows at the centre — a quiet echo of ancestral memory, floating in warm light.


Balcony of House of Curves by Studio Naadi


Terrace of House of Curves by Studio Naadi

The terrace completes the home with a small bar opening into a patch of lawn — an informal retreat where evenings stretch into the openness of sky, conversations flow freely, and matches are watched under the night sky.

The palette is restrained yet textured: warm micro-cement walls, soft metallic details, clear glass planes, and greenery that blends into the architecture. The materials embody the house’s character — grounded, tactile, and expressive. Their interplay creates a gentle rhythm, shifting in tone throughout the day without relying on ornamentation.

House of Curves is a study in balance — between structure and emotion, grounded ness and lightness, memory and modernity. Rooted in the landscapes of the past yet firmly placed in an urban present, the home carries the quiet calm of Coorg into the rhythm of the city.


Dusk light exterior view of House of Curves by Studio Naadi


Front Elevation of House of Curves by Studio Naadi


Side Elevation of House of Curves by Studio Naadi


Ground Floor Plan ofHouse of Curves by Studio Naadi


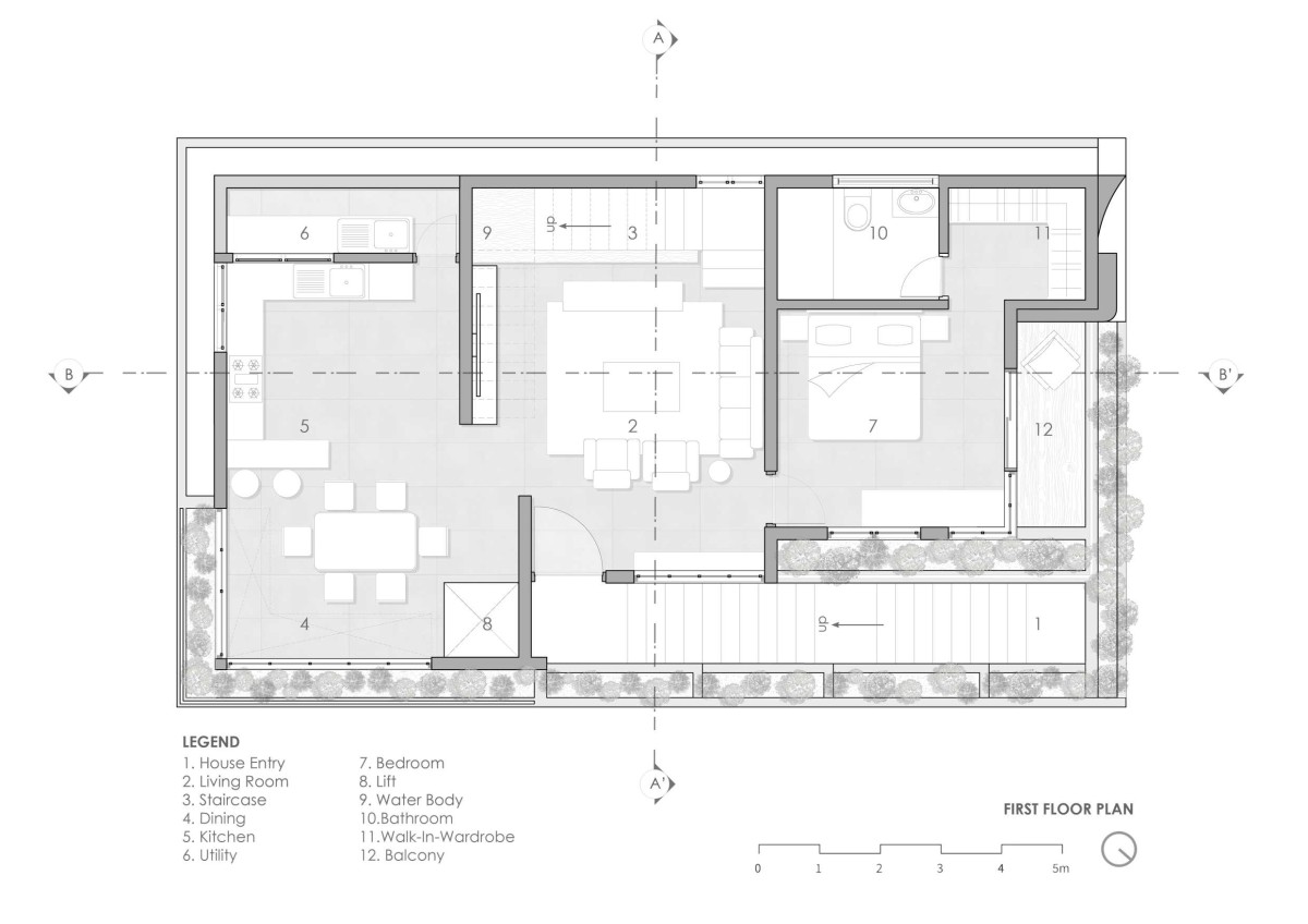
First Floor Plan of House of Curves by Studio Naadi


Second Floor Plan of House of Curves by Studio Naadi


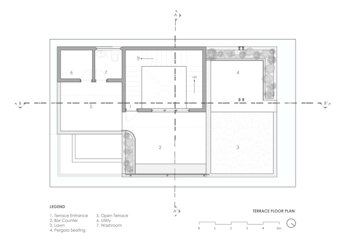
Terrace Plan of House of Curves by Studio Naadi


Section AA of House of Curves by Studio Naadi


Section BB of House of Curves by Studio Naadi


Section BB of House of Curves by Studio Naadi




Most Visited Articles




Subscribe

Get our latest article and updates delivered straight to your inbox.