Architecture

03-02-2026

Photographer : Ar. Pranit Bora

Text provided by Architect

Habitable spaces need a very sensitive approach in every possible way. The threshold design can be one of the key aspects which could enrich the experience through various overlaps, overlaps can be of activities, public & private spaces or built & unbuilt.

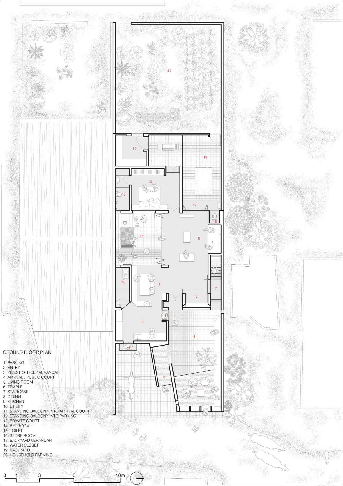
Proposed in a semi-rural area of the pilgrimage town Vani in Nashik, Maharashtra, this house sits on a long, narrow rectangular strip oriented east to west, with its longer edges sharing walls with neighboring houses. The client envisioned a home for a family of four, complemented by an office space to support their priesthood practice, which sees 50–60 visitors daily from the town and nearby villages.

Located in a congested semi-rural area, and considering the conditions of the narrow site, the design strategically juxtaposes built and unbuilt spaces, creating four voids-open parking, public courtyard, private courtyard, and backyard-that offer light and ventilation while providing flexibility for future expansion.

As the surroundings of the site are vernacular homes, intimate in scale and alive with social activity. Design started by placing a semi covered verandah space along with the street which is the first interaction of the house with the context. It serves as an informal office and living room, allowing the priest to effortlessly engage with clients and guests. It becomes the overlap between the public and private activities. Opening into a public court, which serves as an arrival of the house, also extending the verandah’s functionality, accommodating expanded activities as needed.

Nashik,Maharashtra,India

Architects : pk_iNCEPTiON
Area : 1937.5 sq. ft.
Year of Completion : 2023
Website : https://www.instagram.com/pk_inception/

Exterior view of House of Overlaps by pk_iNCEPTiON


Entry Court of House of Overlaps by pk_iNCEPTiON


Entry Court of House of Overlaps by pk_iNCEPTiON


Entry Court of House of Overlaps by pk_iNCEPTiON


View from public court of House of Overlaps by pk_iNCEPTiON


Living room of House of Overlaps by pk_iNCEPTiON


Living to Private court view of House of Overlaps by pk_iNCEPTiON

The second open space is placed little deeper in the plot becomes the private courtyard which is surrounded by living room, dining and bedroom at ground floor and also overlooked by two bedrooms placed on first floor. This court is placed on the southern side to ensure the maximum light and ventilation to the house. It plays a pivotal role as a connective family space as all functions overlook into it while maintaining their privacy.

The inward-looking plan helps to strengthen the family connections, with the spaces like entrance courtyard, veranda, kitchen, and inner courtyard carefully arranged to foster communication and interaction.

The office, verandah at street has, vertical fins that ensure privacy from the congested neighbourhood while offering an ease of connection with the public space encouraging to elevate their business. Also creating a balance between personal and community life.


Private Court of House of Overlaps by pk_iNCEPTiON


Dining of House of Overlaps by pk_iNCEPTiON


Dining of House of Overlaps by pk_iNCEPTiON


Dining of House of Overlaps by pk_iNCEPTiON


Staircase view of House of Overlaps by pk_iNCEPTiON

The woman of the house, who manages most household activities and is indulged in the priesthood business, plays a pivotal role in shaping the design. Reflecting her needs and routines, the kitchen is strategically positioned to connect seamlessly with the public court, parking space, and dining area. Incorporated elements, such as standing balconies, enhance functionality and interaction. One balcony faces the parking area and street, fostering a connection with neighbors and the outdoor public, while the second balcony opens into the public court, enabling effortless service during gatherings or office activities.

Two bedrooms are positioned on the upper floor, thoughtfully designed with vertical openings and standing balconies to ensure ample light and ventilation while maintaining privacy amidst the closely packed neighbouring houses. Each room opens into terraces that overlook the various courts, seamlessly integrating the spaces and unifying the house as a cohesive entity.


Bedroom of House of Overlaps by pk_iNCEPTiON


Bedroom 2 of House of Overlaps by pk_iNCEPTiON


Terrace of House of Overlaps by pk_iNCEPTiON

The scale of the built form has been derived from the surrounding context. It has been conceptualized by incorporating a 7-foot covered entrance that leads to an open-to-sky courtyard. The second covered space is an 8-foot veranda, serving as a public interface. This is followed by the 9-foot ground floor, which connects to the double-storey private spaces above.

The entrance court acts as a flexible arrival space, linking private and public areas. The inner courtyard serves as the central family space, connecting private functions, while the backyard functions as a utility area, space to sun/air dry foods for preservation, and ventilation for the living room.

The built and unbuilt, the organization of function, the detailing of the elements and the way of living life are overlapped and become the ‘House of Overlaps’, a space which invites, expands and intimates as per the changing time and culture. 


Dusk light exterior view of House of Overlaps by pk_iNCEPTiON


Ground floor plan of House of Overlaps by pk_iNCEPTiON


First floor plan of House of Overlaps by pk_iNCEPTiON


Section of House of Overlaps by pk_iNCEPTiON




Most Visited Articles




Subscribe

Get our latest article and updates delivered straight to your inbox.