Architecture

29-07-2025

Photographer : Syam Sreesylam

Text provided by Kajol Joan Williams

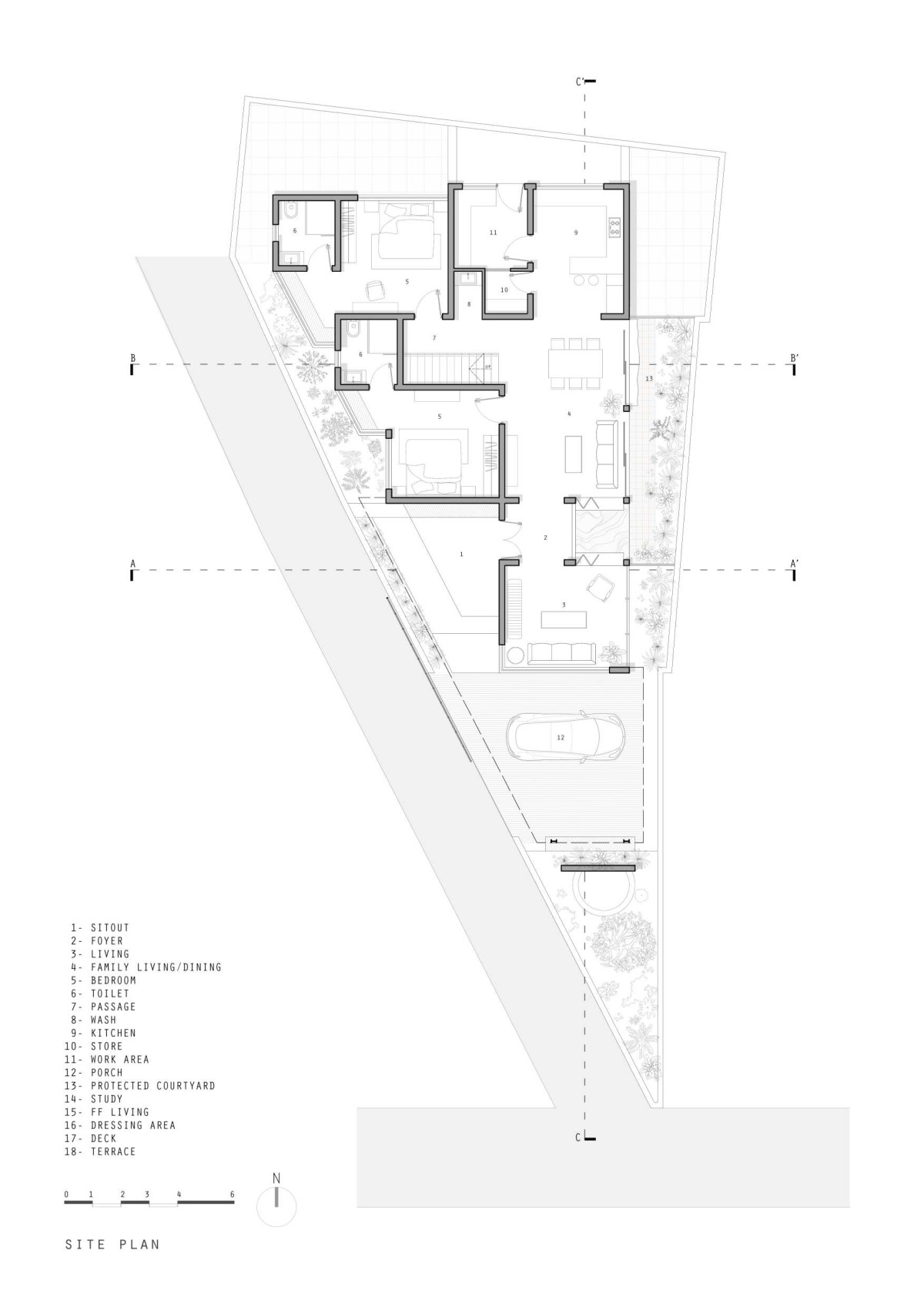
How often are irregularly shaped plots dismissed when buying land? In many towns, the land is subdivided into perfect rectangles for construction, leaving plots with unconventional shapes—sharp angles and awkward dimensions—undesirable and in low demand. The architecture studio Tropical Tones, however, has set an example by tackling this challenge. This Tropical Modern residence in Azhiyur Village in Kozhikode, Kerala, is built on an 8-cent trapezoidal plot within the Coastal Regulations Zone, just 100 metres from the National Highway. The proximity to the sea and the narrow corner of the site are typically considered non-negotiable constraints for homeowners. Yet, this family of a young couple and four kids took a leap of faith.

For an informed and thoughtful design practice, taking advantage of disadvantages is the way forward. The irregularity of the site dimensions determined the unique plan of this house. The access is cut through one of the narrowing edges, giving primary importance to the acute angle. It acts as a focal point from which the plan developed to occupy the shape of the site. The triangular patch is the only stand-alone landscaped area. The house is, however, connected to nature by borrowing side yards as part of the landscape, showing that space constraints in urban dwellings are no excuse to eliminate nature from the design.

Here, the shared spaces are zoned to the east for optimal thermal comfort. The formal living and the family living areas are separated by a buffer space that opens into a sheltered side yard, sharing the compound wall. Wooden folding sliding windows offer flexibility, balancing visibility and privacy as needed. In the buffer space, tropical plants take over the architectural void, making it a space for reflection. The double-height volume of the living and dining areas, with its glass walls, creates a minimal yet naturally lit space with open sightlines that connect the entire house.

Calicut,Kerala,India

Architects : Tropical Tones
Area : 3300 sq. ft.
Year of Completion : 2024
Website : https://www.instagram.com/tropicaltones_?igsh=aWw3d2IyNDYwcXVy

Exterior view of Infinity Edge by Tropical Tones


Verandah of Infinity Edge by Tropical Tones


Living room of Infinity Edge by Tropical Tones


Family living of Infinity Edge by Tropical Tones

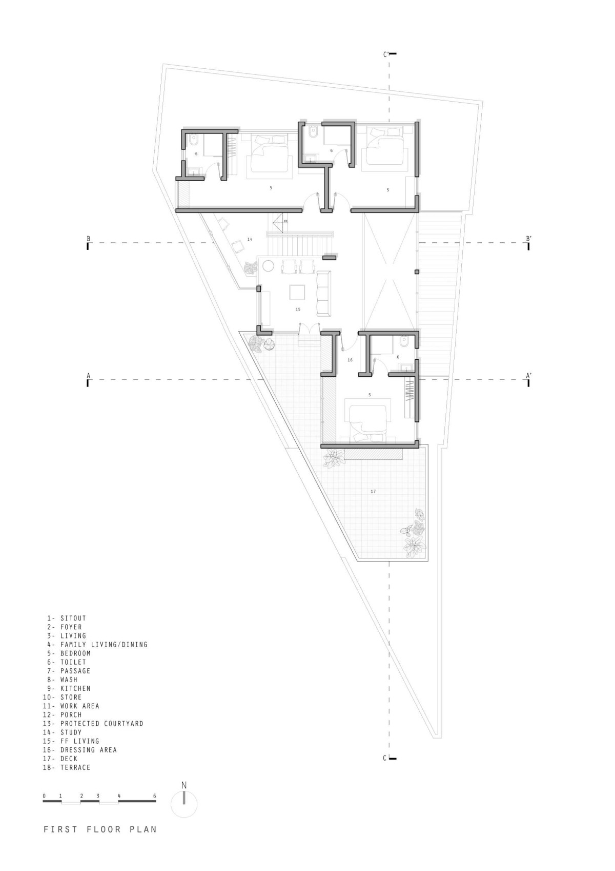
The interiors were designed to be durable and capable of withstanding rough use. The natural limestone flooring and polished concrete roof reflect the studio’s affinity for raw and natural textures while a colour palette of greys and warm wooden tones extends seamlessly to the kitchen and bedrooms. This 3,300-square-foot house accommodates five bedrooms—two on the ground floor and three on the first floor—mainly zoned on the west to let in the sea breeze. The layout of the bedrooms aligns with the site, allowing for distinct seating spaces concealed by plants on the outside.


Family living & Dining of Infinity Edge by Tropical Tones


Kitchen of Infinity Edge by Tropical Tones


Wash area of Infinity Edge by Tropical Tones


Protected Courtyard of Infinity Edge by Tropical Tones


Staircase of Infinity Edge by Tropical Tones

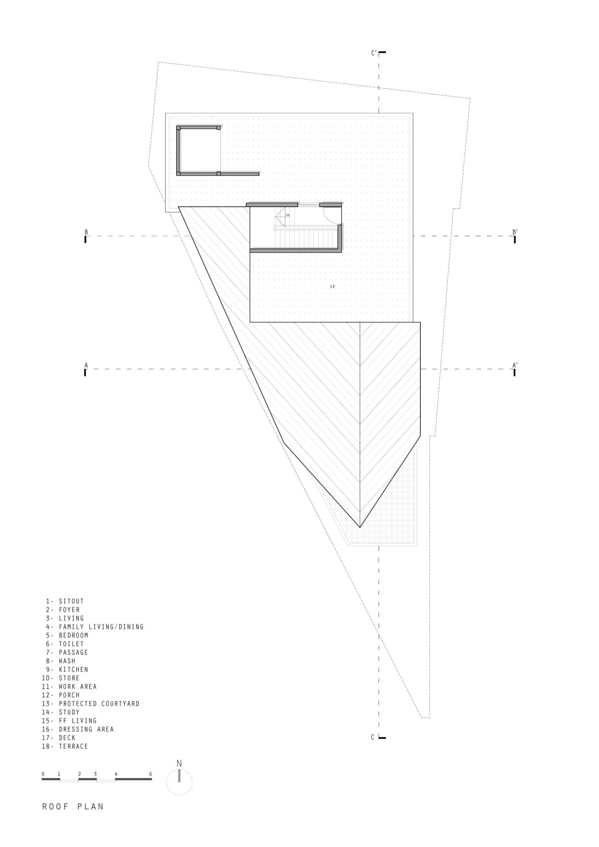
A sleek metal-and-wood staircase spans both floors, culminating in the utility terrace. The stair landing doubles as a study area overlooking a neighbouring empty plot. Strategically placed windows in the glass walls allow the sea breeze to flow inside, enhancing ventilation. The upper-level living area opens onto an expansive deck that extends to the site’s edge, sheltered by a truss roof with shingles. This deck serves as a secondary outdoor space, compensating for the lack of ground area where children can play safely.

Infinity Edge is a residence reflecting “Form follows function” in every aspect of its design. It shows how the site, far from being a constraint, became an inspiration.


Study Area of Infinity Edge by Tropical Tones


First floor living of Infinity Edge by Tropical Tones


Bedroom of Infinity Edge by Tropical Tones


Bedroom 2 of Infinity Edge by Tropical Tones


Bedroom 2 of Infinity Edge by Tropical Tones


Bedroom 3 of Infinity Edge by Tropical Tones


Bedroom 3 of Infinity Edge by Tropical Tones


Deck of Infinity Edge by Tropical Tones


Elevation of Infinity Edge by Tropical Tones


Site Plan of Infinity Edge by Tropical Tones


First Floor Plan of Infinity Edge by Tropical Tones


Roof Plan of Infinity Edge by Tropical Tones


Section AA of Infinity Edge by Tropical Tones


Section AA of Infinity Edge by Tropical Tones


Section BB of Infinity Edge by Tropical Tones


Section CC of Infinity Edge by Tropical Tones




Most Visited Articles




Subscribe

Get our latest article and updates delivered straight to your inbox.