Architecture

30-04-2026

Photographer : Ar. Pankaj

Text provided by Architect

Set within the growing residential context of Salem, KMB HAUS is an 8,000 sq. ft. contemporary villa envisioned as a bold expression of luxury, proportion, and refined materiality. Designed as a premium 4 BHK residence, the home balances monumental architecture with warm livability, resulting in a residence that is both visually striking and deeply personal.

The exterior language is shaped through a composition of clean volumes, layered planes, and vertical masses that establish a commanding street presence. Towering framed elements clad in richly textured stone define the entrance, while recessed white planes introduce contrast and lightness. This interplay of solids and voids gives the façade a sculptural quality that transforms throughout the day with changing light and shadow.

A defining feature of the elevation is the use of random rubble stone wall cladding as bold vertical accents. These rugged surfaces bring texture, depth, and timeless character, while smooth plastered walls, large-format marble finishes, and precise linear detailing create a sophisticated contemporary balance. The contrast between raw natural stone and sleek modern materials lends the villa both permanence and elegance.

Projecting rooflines extend outward as dramatic horizontal overhangs, visually grounding the structure while offering climatic protection. These floating planes generate shaded transition zones and enhance the villa’s dynamic silhouette. Their undersides are finished with warm wooden ceilings, enriching semi-open areas such as the entrance deck, balcony edges, and drop-off zones.

Salem,Tamil Nadu,India

Architects : Urban Space Architects
Area : 8000 sq. ft.
Year of Completion : 2026
Website : https://www.instagram.com/urban_space_architects_/

Exterior view of KMB Haus by Urban Space Architects


Exterior view of KMB Haus by Urban Space Architects

The front elevation is anchored by a spacious balcony overlooking the landscaped forecourt, creating a strong visual connection between upper-level private spaces and the gardens below. At ground level, the entrance deck seamlessly merges with the surrounding landscape to form a generous social forecourt for family gatherings and outdoor leisure. A polished black marble plinth and patterned external flooring heighten the sense of arrival.

Softening the bold geometry, the landscape design introduces manicured lawns, curated shrubs, and intimate green courts around the built form. One of the villa’s defining qualities is its play of light and form, where deep projections and textured surfaces create evolving shadow patterns by day, while evening lighting transforms the home into a warm and dramatic architectural composition.

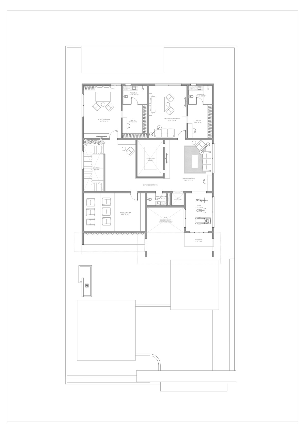
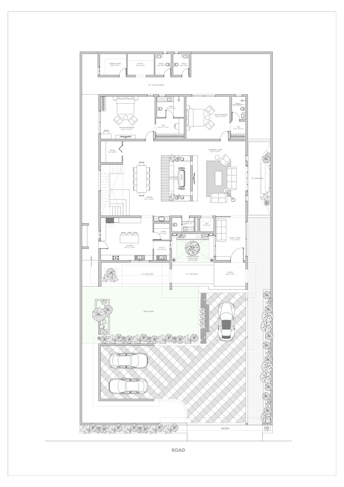
The villa is planned as a luxurious four-bedroom residence with premium amenities including a private gym, home theatre, and leisure spaces. A clear circulation framework ensures seamless movement, balancing openness with privacy. Large openings and strategically placed voids maximize daylight and natural ventilation, creating bright, airy interiors that feel spacious, comfortable, and effortlessly connected.


Landscape of KMB Haus by Urban Space Architects


Lawn of KMB Haus by Urban Space Architects


Foyer seating area of KMB Haus by Urban Space Architects


Foyer seating area of KMB Haus by Urban Space Architects


Informal living room of KMB Haus by Urban Space Architects


Informal living room of KMB Haus by Urban Space Architects

It is a contemporary luxury by seamlessly integrating light-filled interiors with lush garden views. A sophisticated palette of Italian marble, warm walnut veneers, and champagne-gold accents creates a refined atmosphere. The foyer and living area flow effortlessly toward the outdoor deck, where organic textures and architectural niches blur the lines between indoor comfort and natural serenity.


Informal living room of KMB Haus by Urban Space Architects


Dining of KMB Haus by Urban Space Architects


Courtyard of KMB Haus by Urban Space Architects


Courtyard of KMB Haus by Urban Space Architects

Centres on a double-height internal courtyard and dining wing, unified by a dramatic skylight that orchestrates an evolving play of light and shadow. The transition is marked by a traditional wooden Jhoola set against textured charcoal slate. Rich walnut ceilings, Italian marble, and patterned flooring create a tactile dialogue, merging heritage-inspired warmth with contemporary structural elegance.


Kitchen of KMB Haus by Urban Space Architects


Pooja room of KMB Haus by Urban Space Architects


Staircase of KMB Haus by Urban Space Architects


Daughter's Bedroom of KMB Haus by Urban Space Architects

These bedrooms translate distinct personalities into architectural form through diverse materiality. One  utilizes contemporary minimalism with fluted panelling and backlit stone accents for a moody, grounded feel. The another adopts a feminine, avant-garde aesthetic, featuring a dramatic arched leather headboard with floral wallpaper.


Daughter's Bedroom of KMB Haus by Urban Space Architects


Son's Bedroom of KMB Haus by Urban Space Architects


Son's Bedroom of KMB Haus by Urban Space Architects


Bathroom of KMB Haus by Urban Space Architects


Bathroom of KMB Haus by Urban Space Architects


Night exterior view of KMB Haus by Urban Space Architects


Night exterior view of KMB Haus by Urban Space Architects


Ground Floor Plan of KMB Haus by Urban Space Architects


First Floor Plan of KMB Haus by Urban Space Architects




Most Visited Articles




Subscribe

Get our latest article and updates delivered straight to your inbox.