Kodalli's Residence is a modern, soulful retreat located in the lush outskirts of Bengaluru. Designed for a family that values both connection and calm, the home balances bold architectural gestures with warm, intimate spaces.

The sloping exposed concrete roof and steel-framed windows define the striking façade, creating a sculptural profile that merges seamlessly with its natural surroundings. Earthy materials, tall trees, and carefully planned openings offer both shade and privacy while inviting in ample natural light.

Inside, an olive-toned foyer leads to a double-height living area with exposed brick walls, wooden rafters, and a cantilevered staircase — all brought together with an eye for detail and craft. The use of natural textures adds depth and softness, creating a tranquil atmosphere.

Upstairs, a family lounge fosters informal gatherings, while the son’s bedroom, tucked under the sloped roof, is bright and characterful. A quiet study nook provides a dedicated corner for focus and reflection.

Privacy and proximity come together in thoughtful balance. The architecture allows individuals to retreat into their personal spaces or engage in shared experiences — from family time on the terrace deck and movie nights in the home theatre to everyday moments in the open-plan living areas.

Spread over three levels, the house supports freedom of expression for every family member. Whether seeking solitude or togetherness, each space is designed to accommodate shifting moods and needs.

Kodalli's Residence celebrates honest materials and meaningful design. It is both expressive and restrained, bold yet welcoming. Above all, it is a home with heart — a modern sanctuary that reflects the people who live within it.

Bangalore,Karnataka,India

Architects : Ashwin Architects
Area : 7500 sq. ft.
Year of Completion : 2025
Website : https://www.instagram.com/ashwinarchitects/

Exterior view of Kodalli Happy Place by Ashwin Architects


Foyer of Kodalli Happy Place by Ashwin Architects


Living room of Kodalli Happy Place by Ashwin Architects


Living room of Kodalli Happy Place by Ashwin Architects


Living room of Kodalli Happy Place by Ashwin Architects


Dining of Kodalli Happy Place by Ashwin Architects


Kitchen of Kodalli Happy Place by Ashwin Architects


Passage to family living of Kodalli Happy Place by Ashwin Architects


Family Space of Kodalli Happy Place by Ashwin Architects


Family Space of Kodalli Happy Place by Ashwin Architects


Master Bedroom of Kodalli Happy Place by Ashwin Architects


Master Bedroom of Kodalli Happy Place by Ashwin Architects


Master Bedroom of Kodalli Happy Place by Ashwin Architects


Guest Bedroom of Kodalli Happy Place by Ashwin Architects


Kids Bedroom of Kodalli Happy Place by Ashwin Architects


Kids Bedroom of Kodalli Happy Place by Ashwin Architects


Kids Bedroom of Kodalli Happy Place by Ashwin Architects


Kid's Study Area of Kodalli Happy Place by Ashwin Architects


Office of Kodalli Happy Place by Ashwin Architects


Terrace of Kodalli Happy Place by Ashwin Architects


Terrace of Kodalli Happy Place by Ashwin Architects


Dusk light exterior view of Kodalli Happy Place by Ashwin Architects


Dusk light exterior view of Kodalli Happy Place by Ashwin Architects


Elevation of Kodalli Happy Place by Ashwin Architects


Basement Floor Plan of Kodalli Happy Place by Ashwin Architects


Ground Floor Plan of Kodalli Happy Place by Ashwin Architects


First Floor Plan of Kodalli Happy Place by Ashwin Architects


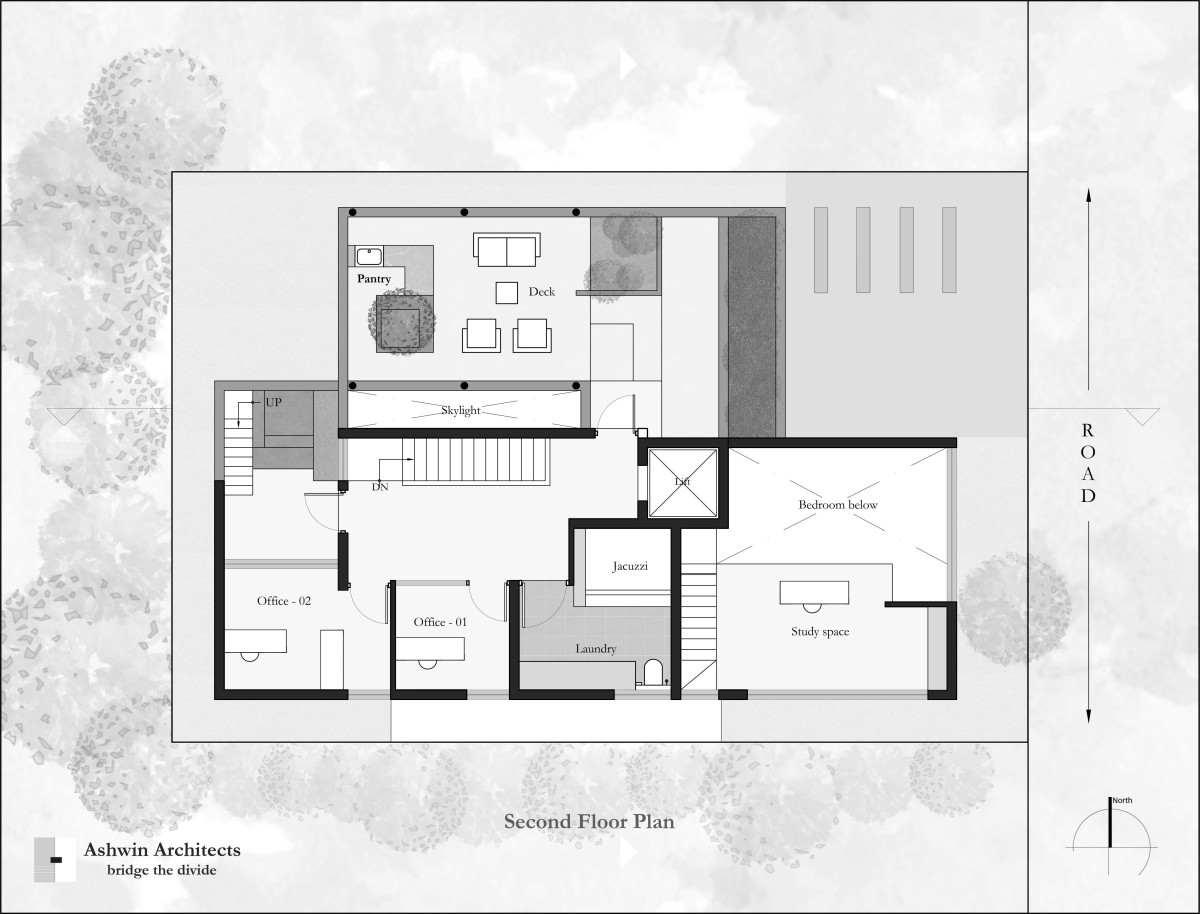
Second Floor Plan of Kodalli Happy Place by Ashwin Architects


Section 01 of Kodalli Happy Place by Ashwin Architects


Section 02 of Kodalli Happy Place by Ashwin Architects




Most Visited Articles




Subscribe

Get our latest article and updates delivered straight to your inbox.