Text provided by Architect

In Tiruppur’s industrial heartland, where the rhythm of textile mills sets the tone, Layered Villa offers a quiet counterpoint. Shaped by stillness, proportion, and cultural memory, the home reflects the clients’ vision for a contemplative retreat. Set on a square plot within a gridded residential layout, the residence embraces architectural restraint and cultural resonance. While its language is Contemporary Mediterranean, its foundation draws from the spatial and climatic logic of Vernacular Tamil homes.

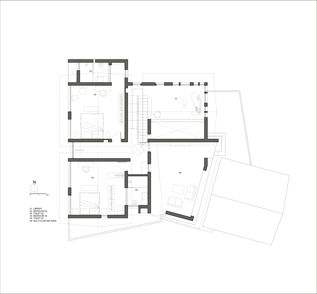
A central spine organises the plan, sequencing public, semi-public, and private zones in measured progression. Movement and pause are carefully choreographed, echoing the layered flow of Tamil dwellings. Pitched roofs and deep overhangs define the silhouette, rendered in muted pastels not as ornament, but as responses to climate and context.

In lieu of a central courtyard typically emblematic of Vernacular Tamil house typology, greenery is positioned along the periphery, forming a protective buffer against Tiruppur’s dust-laden air.High ceilings, well-placed openings, and shaded verandas ensure cross ventilation and thermal comfort, reducing reliance on mechanical systems.

Entry to the property is marked by a ‘Padippura’ inspired threshold, a nod to Tamil ceremonial gateways. Inside, structural elements take on sculptural clarity. Arched columns and flying buttresses reinterpret vernacular forms. A minimal 'Thinnai'/ inbuilt seating anchors one end of the veranda, while an 'Oorani', a waterbody echoing the veranda’s arch profile anchors the other. Interiors are sculpted by arcades,natural light and a restrained material palette. Visual noise is pared back in favour of quiet detail and abstracted into a modern geometry evoking memory without mimicry.

Tiruppur,Tamil Nadu,India

Architects : Tales of Design Studio
Area : 4600 sq. ft.
Year of Completion : 2025
Website : https://www.instagram.com/tales_of_design

Exterior view of Layered Villa by Tales of Design Studio


Entrance Porch of Layered Villa by Tales of Design Studio


Entrance Porch of Layered Villa by Tales of Design Studio


Verandah of Layered Villa by Tales of Design Studio


Verandah & Waterbody of Layered Villa by Tales of Design Studio


Living room of Layered Villa by Tales of Design Studio


Living room of Layered Villa by Tales of Design Studio


Living room of Layered Villa by Tales of Design Studio


Dining of Layered Villa by Tales of Design Studio


Dining of Layered Villa by Tales of Design Studio


Kitchen of Layered Villa by Tales of Design Studio


Kitchen of Layered Villa by Tales of Design Studio


Family living of Layered Villa by Tales of Design Studio


Corridor of Layered Villa by Tales of Design Studio


Staircase of Layered Villa by Tales of Design Studio


Staircase view of Layered Villa by Tales of Design Studio


First floor view of Layered Villa by Tales of Design Studio


Skylight of Layered Villa by Tales of Design Studio


Reading nook of Layered Villa by Tales of Design Studio


Bedroom 1 of Layered Villa by Tales of Design Studio


Bedroom 2 of Layered Villa by Tales of Design Studio


Bedroom 3 of Layered Villa by Tales of Design Studio


Toilet of Layered Villa by Tales of Design Studio


Dressing Area & Toilet of Layered Villa by Tales of Design Studio


Dusk light exterior view of Layered Villa by Tales of Design Studio


Ground Floor Plan of Layered Villa by Tales of Design Studio


First Floor Plan of Layered Villa by Tales of Design Studio




Most Visited Articles




Subscribe

Get our latest article and updates delivered straight to your inbox.