Architecture

30-10-2025

Text provided by Architect

Madhura is a home designed as a response to the clients' wish for a home reminiscent of their ancestral home in Kampli, Karnataka - a quaint town near Hampi with old dwellings built in mud and stone. The challenge was to re-create a similar experience but one that is set in the current premise of dense urban context of Bengaluru that they now call home.

The brief was to create two 3 bhk homes, one for each sibling with shared common spaces. The homes are designed to be a connection to their roots and one that supports their traditional way of life. Based on our initial interactions with the family, we understood that they wanted several formal and informal spaces in the homes where they could socialise and host gatherings, like chamber concerts and religious meets. 

Having built on a site area of 3000 sft, we decided to stack the houses one above the other so that the built footprint is judiciously managed and also the two houses can be independent and private. The planning of these two east facing homes strictly follow the principles of Vastu.

The idea was to connect and envelop the built spaces with landscape all around. The living rooms of both the homes open to the landscape - a garden along the ground floor and a covered courtyard on the first floor. These became spill over spaces when they host gatherings/events. As one enters through the gate, you are welcomed into a front yard & parking space that is lined with Sira stone in random rubble pattern that set the tone for the experience ahead. The ground floor house opens to this garden along the east side with the ‘Tulasi brindavan’ (holy basil plant) as the focal point. All the common spaces of the house like entrance foyer, living, dining, puja and the kitchen, are lined up parallel to this linear expanse of the garden, hence always connecting them all with the lush landscape while bringing in the pleasant eastern light. The bedrooms open towards the decks and gardens along the sides.

Bangalore,Karnataka,India

Architects : Design Kacheri
Area : 4300 sq. ft.
Year of Completion : 2023
Website : https://www.instagram.com/designkacheri/

Exterior view of Madhura by Design Kacheri


Exterior view of Madhura by Design Kacheri


Frontyard of Madhura by Design Kacheri


Deck and Garden of Madhura by Design Kacheri


Living room with vault roof in terracotta blocks of Madhura by Design Kacheri


Living room with vault roof in terracotta blocks of Madhura by Design Kacheri


Living room with vault roof in terracotta blocks of Madhura by Design Kacheri


Living room with vault roof and walls in terracotta blocks with an oxide wall as feature


Living room with vault roof in terracotta blocks and feature wall in yellow oxide


Dining of Madhura by Design Kacheri


Dining of Madhura by Design Kacheri


Courtyard of Madhura by Design Kacheri

Like the garden on the ground floor, the first-floor house is planned around a covered landscaped courtyard. The courtyard is an informal space with stepped seating. An interesting play of light and shadows through the day created by the terracotta jali wall and the clay tiled sloping roof with glass inserts makes this space very dynamic.

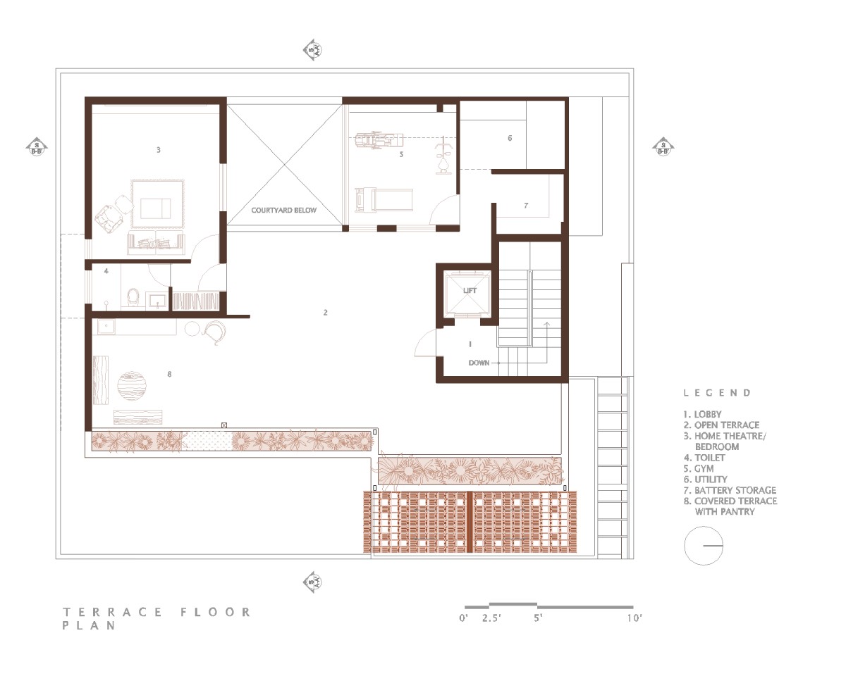
The third level is designed as an interesting combination of open and semi-open spaces created by adding sloping roof with clay tiles. This terrace floor is a common space for houses with direct separate access. The terrace is lined with plants along the periphery and accommodates a pantry with some seating space. Along with the terrace there is a home theatre and a gym on the same floor. It’s a hub for common activities through various times of the day like gardening, yoga, outdoor movies, as well as lounging and a party space.


Corridor of Madhura by Design Kacheri

Mud and stone are the two main materials explored and utilised in various techniques. This helped to re-create the inherent earthiness of the ancestral homes while making the structure eco friendly. We employed various alternative construction techniques and materials to reduce the carbon footprint. It is built using un-burnt earth blocks (compressed stabilised earth blocks - CSEB) and hollow terracotta blocks that are predominantly left exposed. This structure has interesting roofing variations indoors and along the external elevation. We were keen on reducing the concrete usage in the roofs and hence incorporated the filler slab technique with hollow terracotta blocks. These hollow blocks act as excellent thermal insulators reducing the heat transferred from the roofs. Jack arch and vault roof in bricks further help this purpose.


Stairwell of Madhura by Design Kacheri


Study Area of Madhura by Design Kacheri


Bedroom of Madhura by Design Kacheri


Bedroom 2 of Madhura by Design Kacheri

The houses are a melange of different Indian stones - sira granite as rough random rubble walls, floor and in a neatly clad herringbone pattern, yellow Jaisalmer, kota stone in both rough and polished finishes, and leather finish black granite.

The yellow oxide wall makes for a vibrant feature wall that brings in the traditional charm and is designed as a continuation of the yellow Jaisalmer floor. This wall has imprints of leaves from the surrounding plants and is highlighted with earthy colours minimally. This artwork on the oxide wall is made as an extension of the external landscape. The homes are dotted with antique pieces and art collected over time.

The play of materials and forms reflects this structure's elevation, designed as two homes but perceived as one. The straight line of the form is contrasted by rhythmic smooth curves of the jack arches while the steeply sloping roofs makes the outdoor spaces and the elevation very dynamic.


Bedroom 3 of Madhura by Design Kacheri


Bedroom 4 of Madhura by Design Kacheri


Terrace of Madhura by Design Kacheri


Fence - compound wall of Madhura by Design Kacheri


Ground floor plan of Madhura by Design Kacheri


First Floor Plan of Madhura by Design Kacheri


Terrace Plan of Madhura by Design Kacheri


Roof plan of Madhura by Design Kacheri


Section AA of Madhura by Design Kacheri


Section BB of Madhura by Design Kacheri




Most Visited Articles




Subscribe

Get our latest article and updates delivered straight to your inbox.