Architecture

26-09-2025

Photographer : Aswin Yegappan SP, Ramya Prasad

Living Lightly: A Sustainable Home in the town of Pondicherry

In a time when urban living often distances us from nature, a small residential project in the town of Pondicherry- Maha’s residence, in Kalapet, Puducherry, reimagines the idea of home. Designed with sustainability as its foundation, this residence steps away from conventional building practices and moves toward a slower, more responsible way of constructing and inhabiting space. It is a house that treads lightly—on the land, on resources, and on the planet.

At first glance, the house blends seamlessly with its surroundings. But a closer look reveals the remarkable material story beneath its quiet façade. Over 100% of the doors, windows, and ventilators have been salvaged from old buildings—carefully restored and repurposed for this new life. 

This decision to reuse materials goes beyond aesthetics or cost. It reflects an ethical stance toward conservation, heritage, and embodied energy. Each reused element carries a story, a texture, a memory—making the home feel aged, lived-in, and rooted, even though it is newly built. It also serves as a counterpoint to the wasteful construction trends that dominate Indian cities today, where speed and novelty often override craft and care.

Located in Pondicherry’s tropical coastal climate, the design responds sensitively to both sun and rain. Orientation was a key strategy—the longer axis of the house runs north-south, minimizing direct solar gain. Deep roof overhangs, shaded verandahs, and tall windows till the roof control sunlight, allows hot air to escape and allow for cross-ventilation throughout the day. The result is a home that remains cool without the crutch of mechanical air conditioning.

Passive design techniques extend into every detail. Ventilators above doors aid in heat escape. Earth-coloured plaster walls reduce heat absorption. High ceilings encourage hot air to rise, while shaded passage and entrance area, pull cool breezes into living spaces. These interventions are subtle, but they dramatically reduce the energy footprint of the building—offering comfort without carbon.

Kalapet,Pondicherry,India

Architects : RP Architects
Area : 1600 sq. ft.
Year of Completion : 2025
Website : https://www.instagram.com/rp.architects/?hl=en

Entrance of Maha Residence by RP Architects


Living room of Maha Residence by RP Architects

The architecture draws inspiration from traditional South Indian houses, particularly in its layout—featuring open courtyards, inward-looking rooms, and a layered transition from public to private spaces. This has been translated into modern day spatial planning with parking as public space / verandah, staircase double height acts a covered courtyard part of the living and dining.

The palette is earthy and honest: reclaimed wood, exposed CSEB brick, oxide plaster, clay tiles, and natural stone flooring. These materials aren’t just eco-friendly—they are tactile, sensory, and deeply connected to the land and culture of Tamil Nadu. Construction techniques rely on local labour and craftsmanship, which enriches the building process and creates a shared sense of ownership between architect, builder, and client.

The architecture, therefore, isn’t just sustainable in how it consumes resources—but also in how it supports local economies, preserves craft, and fosters community resilience.

The client’s brief was simple: a home that felt quiet, grounded, and timeless. A place to slow down. The design embraces this sensibility in every way. Spaces are intimate, human-scaled, and flooded with natural light. Walls are kept in exposed CSEB brick work where possible, allowing materials to breathe.


Living room of Maha Residence by RP Architects


Dining & Kitchen of Maha Residence by RP Architects


View from Kitchen of Maha Residence by RP Architects


Swing of Maha Residence by RP Architects


Staircase of Maha Residence by RP Architects

The landscape is kept minimal—one a stretch of space alone the east side of the residence for native plantings and small edible garden patches are tucked for the house, inviting birds, butterflies, and monsoon breezes. There is no lawn, no manicured hedges—just a soft merging of building and site.

Inside, rooms are designed for flexibility, not excess. There is no central air conditioning, no home automation system, no sprawling built-ins. Instead, there is an emphasis on breathable space, adaptable furniture, built-in furnitures wherever possible and the kind of quiet beauty that rewards attention.

This residence is more than just a building—it’s a manifesto. A living example of how architecture can be both humble and radical, just like the client. It demonstrates that sustainability is not about adding technology or expensive green labels, but about subtraction—reducing demand, reusing resources, respecting place.


Passage of Maha Residence by RP Architects


Passage of Maha Residence by RP Architects


Guest Bedroom of Maha Residence by RP Architects


Daughter's Bedroom of Maha Residence by RP Architects


Daughter's Bedroom of Maha Residence by RP Architects


Daughter's Bedroom of Maha Residence by RP Architects


Study Area of Maha Residence by RP Architects

The project is particularly significant in the context of Pondicherry—a city known for its unique mix of Tamil and French heritage, its artistic community, and its colonial legacy. As Pondicherry grapples with rapid urbanization and climate pressures, projects like this offer a template for responsible growth that honours both the past and the future.

This home is not an isolated experiment. It’s part of a broader movement toward regenerative design—where architecture gives back more than it takes. The choices made here—reclaimed materials, passive design, low energy systems, local labour—are scalable and replicable. They challenge architects, developers, and homeowners alike to rethink how homes can be built with dignity, without excess.

The residence proves that sustainable living is not only possible but deeply beautiful. It stands as a quiet challenge to the status quo—inviting others to imagine homes that are lighter on the earth, richer in meaning, and rooted in place.


Study Area of Maha Residence by RP Architects


Master Bedroom of Maha Residence by RP Architects


Master Bedroom to Balcony view of Maha Residence by RP Architects


Toilet of Maha Residence by RP Architects


Toilet of Maha Residence by RP Architects


Balcony of Maha Residence by RP Architects


Terrace of Maha Residence by RP Architects


Section A & B of Maha Residence by RP Architects


East Elevation & Section D of Maha Residence by RP Architects


North Elevation & Section C of Maha Residence by RP Architects


Ground Floor Plan of Maha Residence by RP Architects


First Floor Plan of Maha Residence by RP Architects


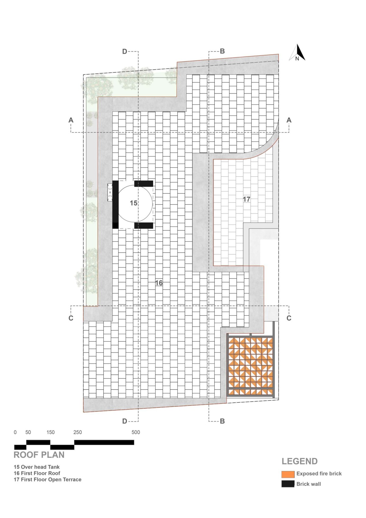
Roof Plan of Maha Residence by RP Architects




Most Visited Articles




Subscribe

Get our latest article and updates delivered straight to your inbox.