Architecture

13-03-2026

Photographer : Vivek Eadara

Text provided by Architect

When does a house become a home? What can a house do more than just provide shelter? Does the feeling of a space rely on tangible elements (furniture, decor, etc)? Or the feeling of a space is defined by the intangible (light, volume, wind, etc)? These fundamental inquiries into the nature of a home; the smallest built component of any society; formed the genesis of this particular project. 

A home can be interpreted as a collection of memories. Experiences make memories. There is all kind of architecture around the world with different functions, but everyone returns to their house to nurture their soul or ātma. The multiplicity of experiences created through awareness of nature, both on the inside and outside, can be a source for this nurture. 

A house should be ever changing, like life. The otherwise static, stagnant insides are filled with islands of nature, which thrive in abundance of light raining from the above. You see this green and light from everywhere within; when you open an internal window, through a half opened door, walking over the topmost bridge looking down or as a reflection on the marble; almost like a game of hide and seek. The trees grow with you, the shadows dance on the walls throughout the day and seen from within, the clouds glide over you. 

Hyderabad,Telangana,India

Architects : Spacefiction Studio
Area : 10000 sq. ft.
Year of Completion : 2025
Website : https://www.instagram.com/spacefictionstudio/

Exterior view of More House by Spacefiction Studio


Exterior view of More House by Spacefiction Studio

The internal hidden vegetation forms a microhabitat to various visitors like the butterflies and small indigenous birds, which flutter around the hanging creepers of the house; confused by the calm, amidst the dusty, urban chaos. The easterlies and westerlies breeze through the generous, strategic openings. Carnatic vocals sung occasionally by the lady of the house, resonate all over, amplified inside the large, hollow belly of the house. The stillness of the space forces one to choose calm over chaos and serenity over stress.

A metal veil covers the western side, the only visible part of the facade. Strategically placed planters embrace this skin, immersing it with greenery. This secondary skin, while protecting the insides from the harsh western sun, also acts as a privacy barrier, providing relief to the eyes of the passerby from the chaotic, characterless and barren urban setting.


Entertainment Area of More House by Spacefiction Studio


Entertainment Area of More House by Spacefiction Studio

The house is raised to accommodate the services below. The two bedrooms are located on the roadside which further buffer the heat and sound entering the house. Another guest room is located on the terrace. Barring these, the rest of the spaces, including the kitchen, are all openly planned in the large, central, triple height volume. The ground floor steps down in levels as we approach the roadside, creating a double height, outdoor gathering space enveloped by the metal facade, hidden from the prying eyes of the passersby. 

The shade of lime finished walls, concrete ceilings, marble floors and doors are all picked from the same family so that the inert muted insides flow seamlessly, irrespective of the materials. There is no stark contrast between any two materials that may bring about a glitch in the visual flow, making the transitions between spaces easier on the eye and the mind.


Entertainment Area of More House by Spacefiction Studio


Entertainment Area of More House by Spacefiction Studio


Passage to living of More House by Spacefiction Studio


Dining & Family living of More House by Spacefiction Studio


Bridge of More House by Spacefiction Studio


Second floor passage view of More House by Spacefiction Studio


Second floor view of More House by Spacefiction Studio


TV Lounge & Study Area of More House by Spacefiction Studio


Skylight of More House by Spacefiction Studio


Bedroom of More House by Spacefiction Studio


Bedroom of More House by Spacefiction Studio


Balcony of More House by Spacefiction Studio


Outdoor dining of More House by Spacefiction Studio


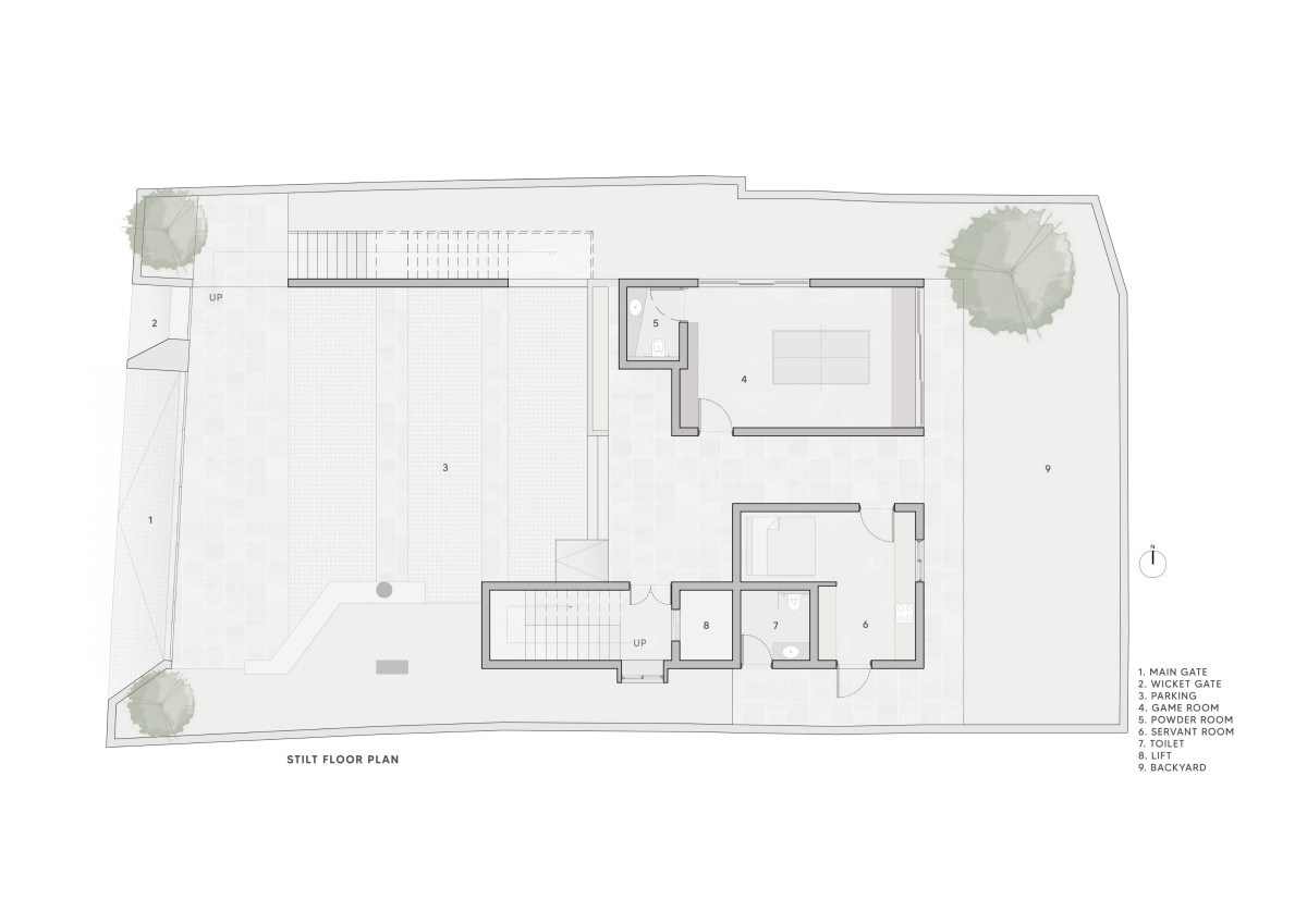
Stilt Plan of More House by Spacefiction Studio


Ground floor plan of More House by Spacefiction Studio


First floor plan of More House by Spacefiction Studio


Second floor plan of More House by Spacefiction Studio


Section of More House by Spacefiction Studio




Most Visited Articles




Subscribe

Get our latest article and updates delivered straight to your inbox.