Architecture

05-09-2025

Photographer : Bhavesh Raghavani, Yellow-Frames Photography

Gopal Printpack Solutions is one of the leading companies in Gujarat which excels in delivering customized packaging solutions. The factory is located in Metoda, an industrial zone in Rajkot.
 
The office building is designed to be the most representative element while the factory acts as a backdrop. It is a square planned structure deliberately tilted at an angle against the rectangular site and factory, to make it stand out on site.
 
The intention was to develop a design language that showcases the manufacturing process of the factory. The process is such that a blank plastic sheet is dipped sequentially into inks of various colors that amalgamate to form the final Printpack. This idea of amalgamation is abstracted and expressed through the landscape and the facades. 

The factory facade is clad in Corten steel, chosen for its inherent property of weathering, resulting in an amalgamation of changing colors representative of the manufacturing process. This facade acts as the backdrop to the whole complex, while the foreground is extensive landscaping that seamlessly integrates with the office building. The core facades of the office building are an amalgamation of tilted concrete walls that act as a skin and wraps around the building.
 

Rajkot,Gujarat,India

Architects : I-Con Architects & Urban Planners
Area : 5317.37 sq. ft.
Year of Completion : 2019
Website : https://www.instagram.com/icon_architects_urban_planners/

Exterior view of Office Complex for Gopal Printpack Solutions by I-Con Architects & Urban Planners


Exterior view factory facade of Office Complex for Gopal Printpack Solutions by I-Con Architects & Urban Planners


Congregation Space of Office Complex for Gopal Printpack Solutions by I-Con Architects & Urban Planners


Amphitheater of Office Complex for Gopal Printpack Solutions by I-Con Architects & Urban Planners

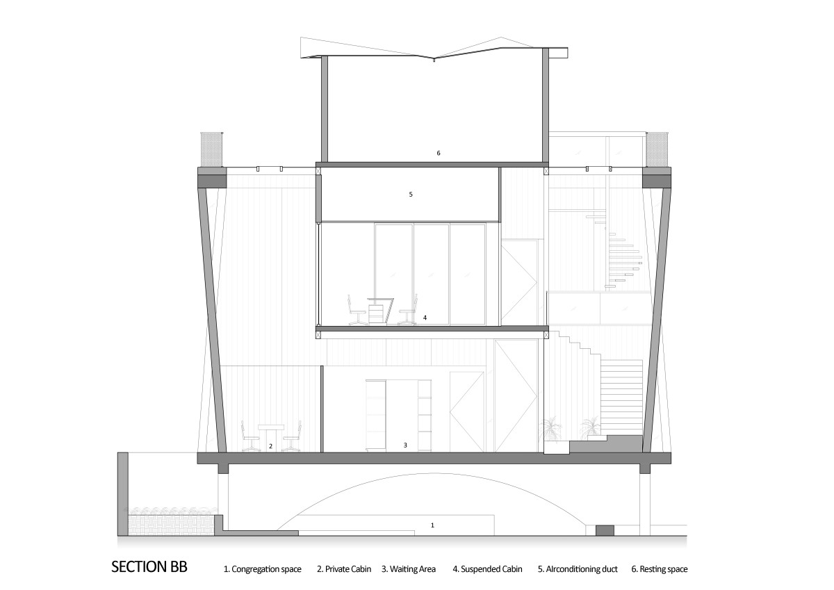
The curvilinear steps in the landscape act as an amphitheater, and further spill into the congregation space. This space directly connects to the factory, while tucked away from the sight of the main entrance, to allow privacy. The arched walls at the periphery are structural elements bearing the entire load allowing diffused light making it an intimate gathering space for factory employees. The extensive landscaping includes ramps leading to the office building that makes one slow down and meander along the landscape while seating’s are incorporated for factory employees to enjoy a comfortable and calming space amongst nature to break away from harsh working environments.


View from reception area of Office Complex for Gopal Printpack Solutions by I-Con Architects & Urban Planners


Entrance & Reception Area of Office Complex for Gopal Printpack Solutions by I-Con Architects & Urban Planners

The entry bay of the office is evident along the otherwise blank facades of the building, and the pathway makes the entry even more inviting. As one enters the building, one arrives in the waiting area facing the courtyard. The landscape flows inside the office building through vegetation in this courtyard. The workstation, private cabins, and meeting room organize around this space. Although physically segregated to justify the efficiency of function, these spaces are visually connected to the owner’s cabin suspended from the roof, transcending boundaries of closed office habitats. 

The suspended cabin connects to the factory with a bridge that overlooks the manufacturing process on one end while leading to the dining area and guest rooms on the other. The bridge allows the owner to give an overview of the factory to the clients without disturbing the manufacturing process.
 
Along with exposed concrete and metal, a raw wooden texture is used at various places to bring in warmth and luxury. A skylight that runs around the core of the structure and the tilted walls creating triangular openings among them bring in a play of light and shadow against the raw concrete textured walls while keeping the spaces well-lit throughout the day.


Waiting area of Office Complex for Gopal Printpack Solutions by I-Con Architects & Urban Planners


Meeting room of Office Complex for Gopal Printpack Solutions by I-Con Architects & Urban Planners


Workstation of Office Complex for Gopal Printpack Solutions by I-Con Architects & Urban Planners


Workstation of Office Complex for Gopal Printpack Solutions by I-Con Architects & Urban Planners


Director's Cabin of Office Complex for Gopal Printpack Solutions by I-Con Architects & Urban Planners


Director's Cabin of Office Complex for Gopal Printpack Solutions by I-Con Architects & Urban Planners


Staircase view of Office Complex for Gopal Printpack Solutions by I-Con Architects & Urban Planners


View from first floor of Office Complex for Gopal Printpack Solutions by I-Con Architects & Urban Planners


Courtyard view from upper floor of Office Complex for Gopal Printpack Solutions by I-Con Architects & Urban Planners


Fountain pool of Office Complex for Gopal Printpack Solutions by I-Con Architects & Urban Planners


Dusk light exterior view of Office Complex for Gopal Printpack Solutions by I-Con Architects & Urban Planners


Dusk light exterior view of Office Complex for Gopal Printpack Solutions by I-Con Architects & Urban Planners


Site Plan of Office Complex for Gopal Printpack Solutions by I-Con Architects & Urban Planners


Lower Ground Floor Plan of Office Complex for Gopal Printpack Solutions by I-Con Architects & Urban Planners


Upper Ground Floor Plan of Office Complex for Gopal Printpack Solutions by I-Con Architects & Urban Planners


First Floor Plan of Office Complex for Gopal Printpack Solutions by I-Con Architects & Urban Planners


Second Floor Plan of Office Complex for Gopal Printpack Solutions by I-Con Architects & Urban Planners


Section AA of Office Complex for Gopal Printpack Solutions by I-Con Architects & Urban Planners


Section BB of Office Complex for Gopal Printpack Solutions by I-Con Architects & Urban Planners




Most Visited Articles




Subscribe

Get our latest article and updates delivered straight to your inbox.