Architecture

29-11-2025

Photographer : Purnesh Dev Nikhanj

Text provided by Architect 

‘Reimaging’ one of the most loved cafes in Chandigarh whose owner intends to establish a legacy of the cafe through a visual and spatial shift can be a herculean task especially under a Corbusian narrative.

The idea was to have a layered approach within a spectrum of exploring elemental aesthetics at one end and the other rooted in material nostalgia. The design concept was rooted in commemorating the material palette of the city –exposed brick that once adorned the streets of Chandigarh and terrazzo flooring that reigned in most Indian households – both being cost–effective and local labor savvy.

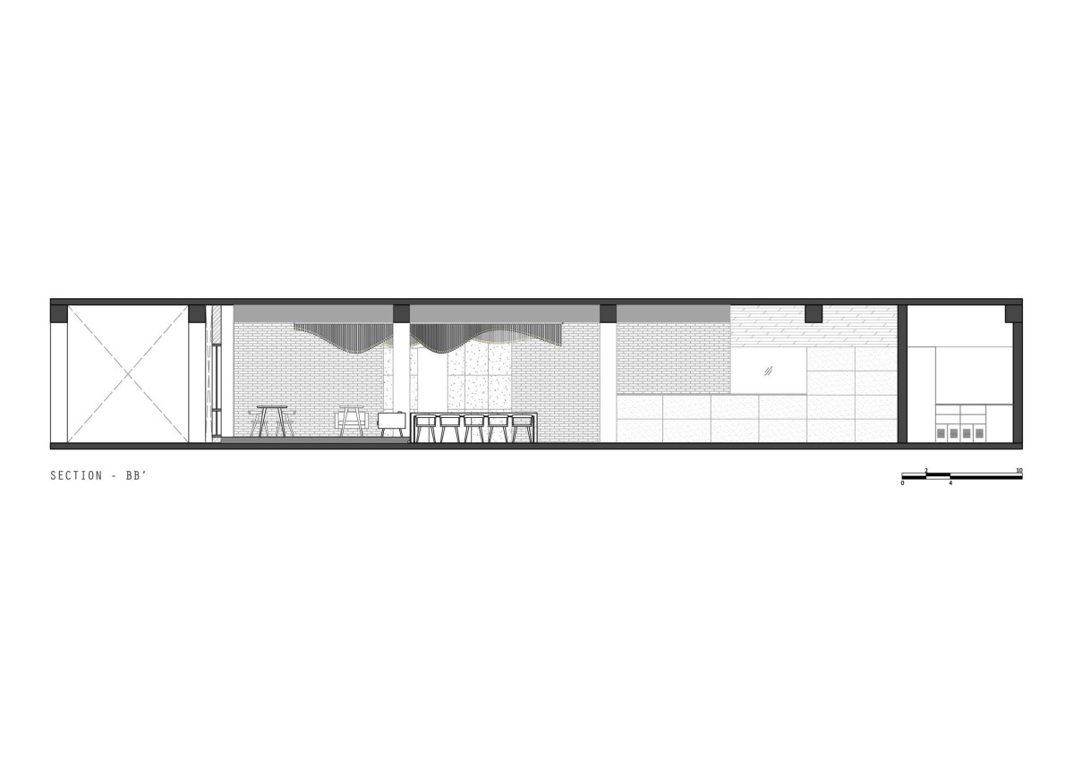
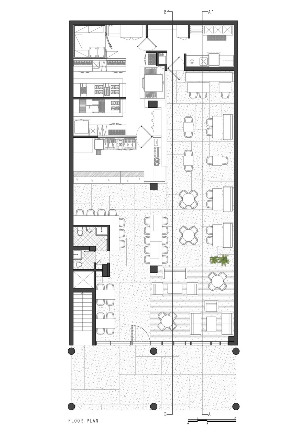
Three different sized outlets were tied together with a common visual vocabulary while creating site specific unique fixtures for each of them. The open kitchen - a signature of the café since day one- has been encased in softwood and caters to a larger integral display of the food-making process. 

Integration of varied construction and management teams was necessary here to deliver a sync of heterogeneous elements largely focusing on materiality-locally cast in-situ terrazzo flooring and walls, exposed brick, and customized light fixtures. The transferring of the terrazzo onto the walls was to introduce it as an ornate feature complimenting the exposed brick. 

Chandigarh,India

Architects : Arch.Lab
Area : 2175 sq. ft.
Year of Completion : 2019
Website : https://www.instagram.com/arch.lab/

Indoor dining of Ovenfresh by Arch.Lab


Community Seating of Ovenfresh by Arch.Lab


Indoor dining of Ovenfresh by Arch.Lab


Indoor dining of Ovenfresh by Arch.Lab


Indoor dining of Ovenfresh by Arch.Lab


Indoor dining of Ovenfresh by Arch.Lab

The spatial arrangement accommodates both, the café-style furniture as well as formal lounge seating. An integral part of the café is the community seating initiated at the construction process as a terrazzo table. This community seating in sync with a unique light installation becomes a key highlight of the space.

The light installation floats as a continuous light fixture amidst the re-envisioned material palette and seating. It playfully meanders between the structural grid common to all showrooms in the city, softening its rigidity, hoping it is symbolic of the shift, the city vocabulary needs. Also, a system of fabricated channels was suspended from the ceiling to secure the fixtures fulfilling the lighting requirements of the space. Additionally, these channels reduce the focus on the other services running in the background.

The design idea was to add value not solely with the machine, but promote locally made products, and introduce human touch back into the mechanized practices. There has been an attempt to bring back nostalgia of the Chandigarh style of architecture in present day context as a celebration. 


Indoor dining of Ovenfresh by Arch.Lab


Passage to elevated seating of Ovenfresh by Arch.Lab


Elevated Seating of Ovenfresh by Arch.Lab


Exterior view of Ovenfresh by Arch.Lab


Floor Plan of Ovenfresh by Arch.Lab


Section AA of Ovenfresh by Arch.Lab


Section BB of Ovenfresh by Arch.Lab




Most Visited Articles




Subscribe

Get our latest article and updates delivered straight to your inbox.