Architecture

14-11-2025

Photographer : Hemant A Patil

Text provided by Architect

Nestled in the serene town of Kinwat, Nanded, Ramrajya is a thoughtfully crafted residence that seamlessly integrates openness, privacy, and spatial dynamism. The 4000 sq. ft. bungalow, positioned along a north-facing road, unfolds as a G+1 structure, where architecture orchestrates a symphony of light, materiality, and function.

The front elevation of Ramrajya is a carefully composed façade that balances openness and enclosure through material interplay and geometric precision. A defining feature is the half-enclosed balcony, where a perforated jali pattern introduces a layer of privacy while allowing filtered light and ventilation. The other half remains open, creating a dynamic contrast between transparency and opacity.

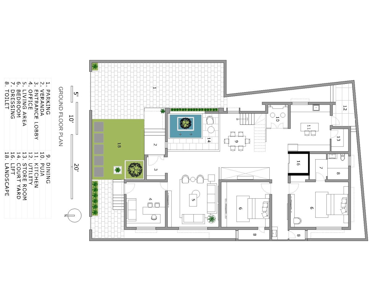
Upon entry, a parking and landscaped garden on the left set a welcoming tone. The living room, discreetly placed to the right, ensures a sense of retreat, while the open-to-sky courtyard and double-height dining area to the left carve an immersive spatial experience. A central open-to-sky cutout, the heart of the home, fosters a seamless dialogue between nature and built form, inviting daylight and natural ventilation into the core.

Nanded,Maharashtra,India

Architects : 4th Axis Design Studio
Area : 2481 sq. ft.
Year of Completion : 2024
Website : http://www.4thaxis.in/

Exterior view of Ramrajya by 4th Axis Design Studio


Living room of Ramrajya by 4th Axis Design Studio


Living room of Ramrajya by 4th Axis Design Studio


Courtyard of Ramrajya by 4th Axis Design Studio

The interplay of voids and volumes is further accentuated by an open-to-sky cutout on one side of the bridge and the soaring double-height dining space on the other, reinforcing the architectural language of openness and vertical integration. A concrete-textured double-height wall, grounding the composition, acts as a bold backdrop, emphasizing the home’s raw materiality and spatial depth.


Courtyard to Dining view of Ramrajya by 4th Axis Design Studio


Dining of Ramrajya by 4th Axis Design Studio


Family living of Ramrajya by 4th Axis Design Studio


Upper floor lobby of Ramrajya by 4th Axis Design Studio

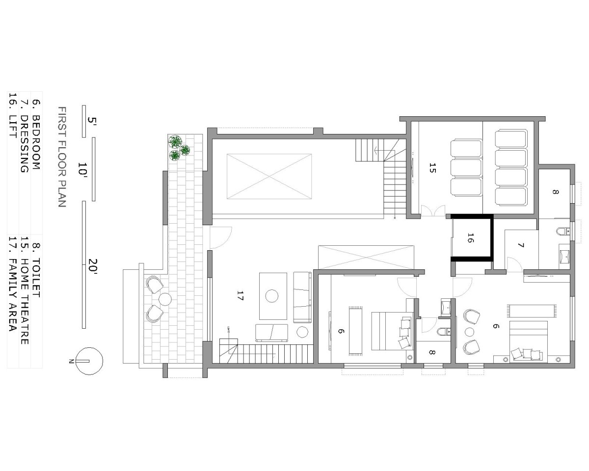
The upper level unfolds with a bridge, a sculptural architectural element that interconnects the bedroom and home theatre with the family lounge and front balcony. This elevated passage visually and physically links the residence, offering a striking vantage point over the double-height dining area and central courtyard.


Bedroom of Ramrajya by 4th Axis Design Studio

The bedroom wing, featuring two private sanctuaries—one with an attached dressing and ensuite—is strategically positioned for both accessibility and privacy. The staircase, embedded within the dining volume, ascends dramatically, leading to an orchestrated sequence of interconnected spaces on the upper level.


Bedroom of Ramrajya by 4th Axis Design Studio


Home Theater of Ramrajya by 4th Axis Design Studio


Home Theater of Ramrajya by 4th Axis Design Studio


Terrace of Ramrajya by 4th Axis Design Studio

Above the balcony terrace, strategic cut-outs have been introduced to craft ever-changing shadow patterns, enriching the façade with a play of light throughout the day. This rhythmic perforation extends to the compound wall and entrance gate, ensuring a cohesive architectural language that ties the built form to its boundary.

Ramrajya transcends conventional residential design, embracing an ethos of spatial transparency and climatic responsiveness. The strategic juxtaposition of open-to-sky courtyards, double-height volumes, and material contrasts crafts a home that breathes, evolves, and interacts with its environment. Here, architecture is not just about walls and enclosures—it is about orchestrating experiences, framing light, and celebrating the essence of space.

This residence stands as a testament to contemporary vernacular, where modernist sensibilities are seamlessly woven with traditional wisdom, creating a home that is both timeless and rooted in context.


Lawn of Ramrajya by 4th Axis Design Studio


Elevation of Ramrajya by 4th Axis Design Studio


Ground Floor Plan of Ramrajya by 4th Axis Design Studio


First Floor Plan of Ramrajya by 4th Axis Design Studio


Section A of Ramrajya by 4th Axis Design Studio


Section B of Ramrajya by 4th Axis Design Studio




Most Visited Articles




Subscribe

Get our latest article and updates delivered straight to your inbox.