The way we design spaces that people inhabit goes beyond mere functionality. It requires an intentional sensitivity to how each detail shapes the overall experience and interaction with the surrounding ecological context. Nestled in the suburban periphery of Nashik, the project occupies a 3700 sq. ft. plot located at the dead-end of a street, adjacent to a public open space. Before any construction began, the first step was to transform the degraded landscape to the east of the site into a thriving forest, using native plant species and adopting a multilayered planting approach.

Drawing inspiration from traditional Maharashtrian houses, the design centres around a carefully planned courtyard. Strategically placed at the western rear end of the site, the courtyard maximizes wind capture. A small water body within the courtyard enhances evaporative cooling, improving the thermal comfort of the structure. The courtyard also acts as a large rainwater harvesting tank, channelling water towards the borewell to recharge the groundwater.

The primary habitable spaces are buffered by transitional areas that serve as overlaps between public and private zones. Thoughtfully designed verandas provide thermal buffering, preventing direct sunlight from reaching the living spaces. The ground floor prioritizes accessibility, with a bedroom for grandparents located on this level. The living area incorporates a double-height space to allow hot air to escape, while also establishing a visual connection between the two floors. The floor plan avoids unnecessary programmatic segregation. The living, dining, and kitchen areas are interconnected and oriented toward the central courtyard. Bedrooms are placed at the periphery to take advantage of natural light and views, while maintaining privacy. Service areas are compactly organized to minimize movement and streamline plumbing runs, ensuring efficiency throughout the home.

Nashik,Maharashtra,India

Architects : RM+H Architects
Area : 3390.63 sq. ft.
Year of Completion : 2022
Website : https://www.instagram.com/rmh.architects/

Exterior view of RMH House & Studio by RM+H Architects


Verandah of RMH House & Studio by RM+H Architects


Living Area of RMH House & Studio by RM+H Architects


Living Area of RMH House & Studio by RM+H Architects


Living Area of RMH House & Studio by RM+H Architects


Living Area of RMH House & Studio by RM+H Architects


Courtyard of RMH House & Studio by RM+H Architects


Courtyard of RMH House & Studio by RM+H Architects


Courtyard of RMH House & Studio by RM+H Architects


Courtyard of RMH House & Studio by RM+H Architects


Dining & Kitchen of RMH House & Studio by RM+H Architects


Dining & Kitchen of RMH House & Studio by RM+H Architects


Kitchen to Living room view of RMH House & Studio by RM+H Architects


Bedroom of RMH House & Studio by RM+H Architects


Bedroom of RMH House & Studio by RM+H Architects


Staircase of RMH House & Studio by RM+H Architects


Studio of RMH House & Studio by RM+H Architects



Studio of RMH House & Studio by RM+H Architects


Library of RMH House & Studio by RM+H Architects

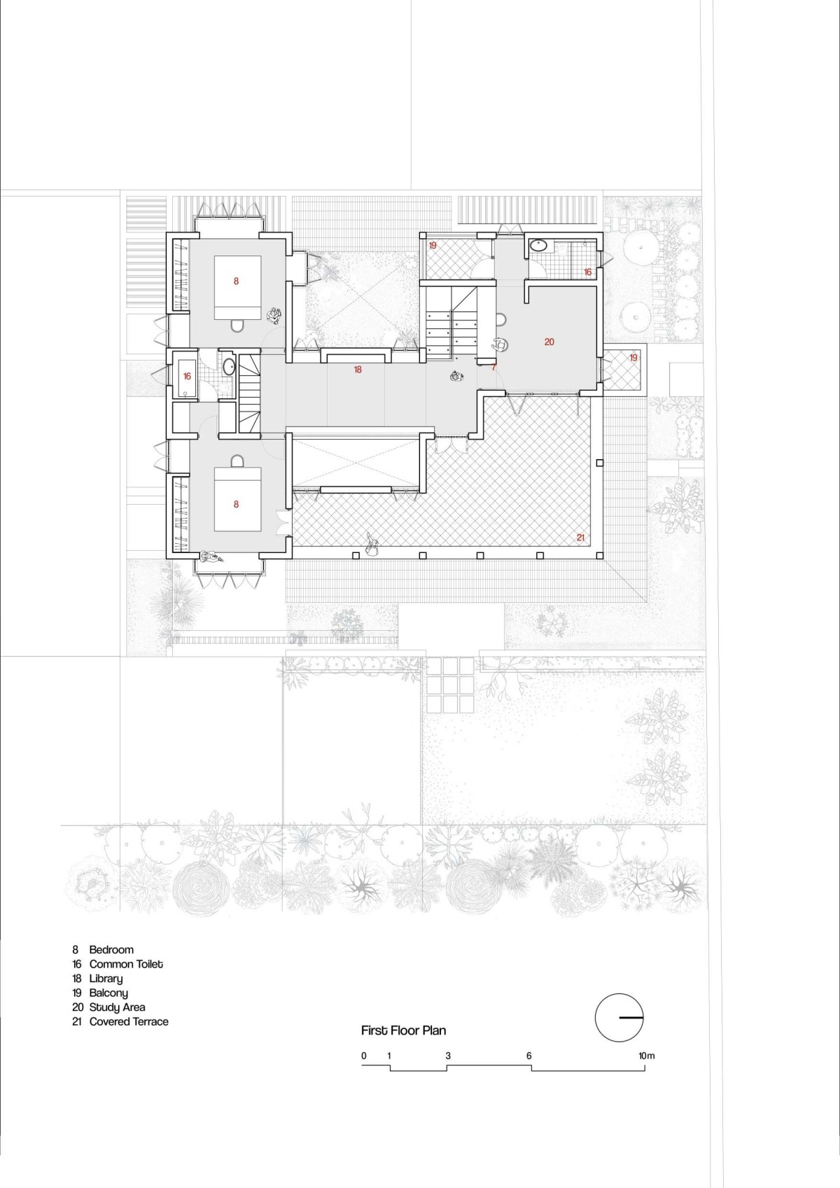
The first-floor features high ceilings to facilitate natural ventilation, with intentional gaps between the roof and walls to allow hot air to rise and escape. A library shelf on the western wall of the first floor incorporates a thicker wall to mitigate the harsh western sun. The covered terrace on the first floor is positioned at the eastern end, benefiting from the adjacent open space and the softer eastern sun.


Library of RMH House & Studio by RM+H Architects

The house features a raw finish in the flooring, using cement oxide mixed with titanium dioxide for a natural yet durable surface. The masonry construction employs a rat-trap bond, which not only conserves brick usage but also creates a cavity in the walls, improving insulation. Landscaping plays a vital role, with permeable ground surfaces that aid in groundwater recharge. The planting strategy minimizes the need for maintenance and irrigation. Climbers and creepers are trained on structural elements especially on the southern façade to reduce surface temperatures.

The structure, along with its design, places a strong emphasis on enhancing thermal comfort while minimizing reliance on mechanical and electronic ventilation systems. By prioritizing natural ventilation and passive cooling strategies, the design fosters a comfortable and sustainable living environment that responds to the surrounding climate without excessive energy consumption.


Dusk light exterior view of RMH House & Studio by RM+H Architects


Aerial view of RMH House & Studio by RM+H Architects


Aerial view of RMH House & Studio by RM+H Architects


Site Plan of RMH House & Studio by RM+H Architects


Ground Floor Plan of RMH House & Studio by RM+H Architects


First Floor Plan of RMH House & Studio by RM+H Architects


Terrace Floor Plan of RMH House & Studio by RM+H Architects


Section AA of RMH House & Studio by RM+H Architects


Section BB of RMH House & Studio by RM+H Architects


Section CC of RMH House & Studio by RM+H Architects


Section DD of RMH House & Studio by RM+H Architects


Axonometric Plan of RMH House & Studio by RM+H Architects




Most Visited Articles




Subscribe

Get our latest article and updates delivered straight to your inbox.