A shoji (障しょう子じ, Japanese pronunciation: [ɕo:(d)ʑi]) is a door, window or room divider used in traditional Japanese architecture, consisting of translucent (or transparent) sheets on a lattice frame.

Originally, they were for separating room from room, or interior from exterior, but their distinctive ability to "allow light to pass" by utilizing washi paper panels enriched Japanese domestic culture and became an indispensable part of home life.

As the name suggests Shoji abode is a Japanese inspired home with minimalist design mixed in Indian context. The house is nestled in the outskirts of Mumbai closer to the city of Pune, this row house is a part of a gated community. The client’s brief was very clear – to create a home away from the city that is calm, soothing and clutter free. such that it is minimal in nature, highlights the existing heights of the spaces. 

The material palate in the house is consistent – Lime wash walls, American ash wood for floors, furniture and for wardrobes. They have used shoji paper, which is traditional handmade rice paper, in wardrobe shutters to add translucency. The linen fabrics in curtains and furniture add a rich and captivating texture to the space

Pune,Maharashtra,India

Architects : Studio MAT Architects
Area : 2200 sq. ft.
Year of Completion : 2023
Website : https://www.instagram.com/studiomatarchitects/

Living room of Shoji Abode by Studio MAT Architects


Living room of Shoji Abode by Studio MAT Architects

Living room is a gorgeous double heighted space that has a marble floor. White marble inlay has been peppered below the seating area. American Ashwood furniture has been custom designed for the house keeping in mind the Zen nature of the space. Lime wash walls add a cozy texture to the space. The bamboo tree near the staircase charms you as soon as you enter the home. The banana paper chandelier.

The clients love hosting their friends and family over for a game night or a soiree, the dining area becomes a cozy nook for a sit out and a fun evening with the dear ones. 


Living room of Shoji Abode by Studio MAT Architects


Living room of Shoji Abode by Studio MAT Architects


Dining of Shoji Abode by Studio MAT Architects


Dining & Staircase of Shoji Abode by Studio MAT Architects


Kitchen of Shoji Abode by Studio MAT Architects


Master Bedroom of Shoji Abode by Studio MAT Architects

As we move to the master and guest bedroom the breezy material pallet continues. The idea of shoji is seen across all the rooms on wardrobe shutters, Rice paper (shoji paper) is sandwiched between 2 layers of glass. Along the beautiful American Ashwood lattice frames this adds a design quotient in the space along with an element of utility. The linen fabrics in curtains and furniture add a rich and interesting texture to the space.


Master Bedroom of Shoji Abode by Studio MAT Architects


Master Bedroom of Shoji Abode by Studio MAT Architects


Master Bedroom of Shoji Abode by Studio MAT Architects


Guest Bedroom of Shoji Abode by Studio MAT Architects


Guest Bedroom of Shoji Abode by Studio MAT Architects


Kids Bedroom of Shoji Abode by Studio MAT Architects

The kids room is a beautiful pop of color and has a lot of playful design elements. The tropical amazon wall paper that is paired with blush color that compliments the daughter’s personality and her liking. 


Kids Bedroom of Shoji Abode by Studio MAT Architects


Kids Bedroom of Shoji Abode by Studio MAT Architects


Kids Bedroom of Shoji Abode by Studio MAT Architects


Den room of Shoji Abode by Studio MAT Architects

The Den room has a darker feel as compared to the rest of the house. It is a multipurpose room, with a study and a Projector screen and a sofa cum bed making the room warm and cozy.

The design focus was to bring balance, tranquility, harmony to the home while adapting a simple and minimalistic approach. The house is a minimalist abode invoking the feeling of calm as you move across the space.


Den room of Shoji Abode by Studio MAT Architects


View from lawn of Shoji Abode by Studio MAT Architects


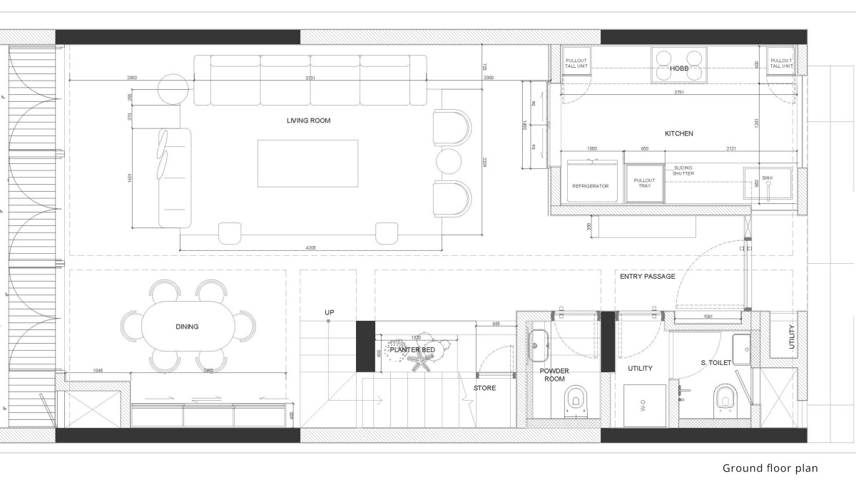
Ground floor plan of Shoji Abode by Studio MAT Architects


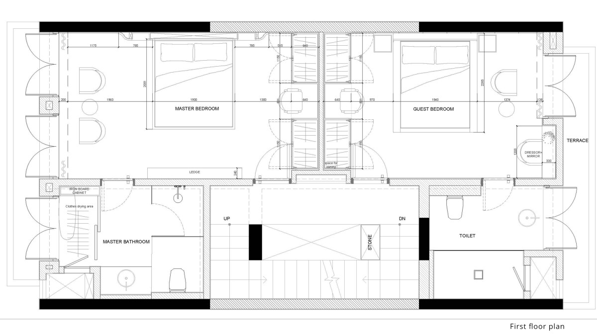
First floor plan of Shoji Abode by Studio MAT Architects


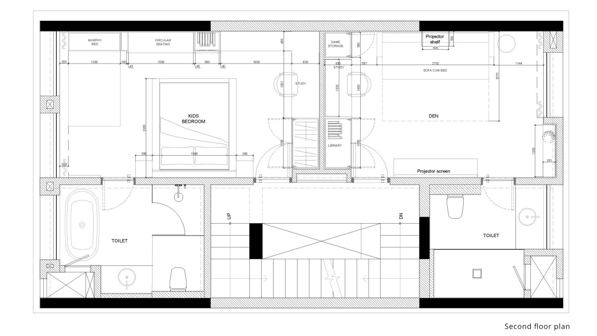
Second floor plan of Shoji Abode by Studio MAT Architects




Most Visited Articles




Subscribe

Get our latest article and updates delivered straight to your inbox.