Architecture

18-02-2026

Photographer : Concreto Grapher

Text provided by Architect

Skew House is a renovation and expansion project, transforming an existing 2000 sq.ft residence into a 5000 sq.ft sculptural home. The client's vision was for a unique, private, and iconic house, leading to an architecture where form itself becomes function.

The skewed, sculptural massing acts as a privacy shield from the public edge while shaping light, views, and airflow. The roof is designed as an active architectural element, collecting rainwater and directing it into a rainwater harvesting and recharge system, responding sensitively to the Kerala climate. Internal courtyards and controlled openings ensure thermal comfort and daylight without exposure, reinforcing a contemporary tropical approach.This project demonstrates how adaptive reuse, sculpture, and climate-responsive design can coexist to create a bold yet grounded home.

Thrissur,Kerala,India

Architects : ZOLID Architects
Area : 5000 sq. ft.
Year of Completion : 2025
Website : https://www.instagram.com/zolid.architects/

Exterior view of Skew House by ZOLID Architects


Sitout of Skew House by ZOLID Architects


Formal living of Skew House by ZOLID Architects


Dining of Skew House by ZOLID Architects


Dining of Skew House by ZOLID Architects


Kitchen of Skew House by ZOLID Architects


Kitchen of Skew House by ZOLID Architects


Kitchen of Skew House by ZOLID Architects


Staircase of Skew House by ZOLID Architects


Study Area of Skew House by ZOLID Architects


Master Bedroom of Skew House by ZOLID Architects


Workspace of Skew House by ZOLID Architects


Bedroom 2 of Skew House by ZOLID Architects


Bedroom 3 of Skew House by ZOLID Architects


Dressing Area & Toilet of Skew House by ZOLID Architects


Toilet of Skew House by ZOLID Architects


Toilet of Skew House by ZOLID Architects


Swimming Pool of Skew House by ZOLID Architects


Swimming Pool of Skew House by ZOLID Architects


Swimming Pool of Skew House by ZOLID Architects


Dusk light exterior view of Skew House by ZOLID Architects


Ground Floor Plan of Skew House by ZOLID Architects


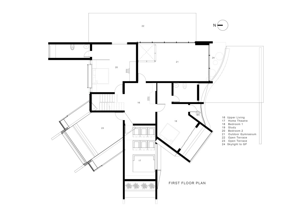
First Floor Plan of Skew House by ZOLID Architects


Roof Plan of Skew House by ZOLID Architects


Section 2 of Skew House by ZOLID Architects


Section 3 of Skew House by ZOLID Architects




Most Visited Articles




Subscribe

Get our latest article and updates delivered straight to your inbox.