Located close to the historically-rich South Indian city of Mysuru, Solum embodies the endeavour towards living simply and close to nature. The client hails from a business background and yet harbours a fondness for the modesty and simplicity of an agrarian lifestyle. The young entrepreneur had always dreamt of developing a full-fledged farm self-sufficient in terms of electricity and water requirement on a two-acre plot he had purchased close to his primary home. This would serve as a living example of what such a lifestyle entailed for his children. The COVID19 pandemic served as a catalyst for this dream, when the need for such a getaway became crucial and relevant.

Having worked on his city home in Mysuru and thus enjoying a comfortable working relationship with Thomas Parambil Architects, he presented his brief of ‘a second home that would connect people to the farm setting’ to them for the new project as well. For them, this previous connection meant that they were quite familiar with the client’s grounded personality — which essentially drove the articulation of the second home. The endeavour, right from the outset, was to create an architectural presence that seemed to have taken root naturally in the coconut and Areca palm-studded lushness rather than being something artificially placed or planted. 

Mysore,Karnataka,India

Architects : Thomas Parambil Architects
Area : 4034 sq. ft.
Year of Completion : 2024
Website : https://www.instagram.com/thomas_parambil_architects

Exterior view of Solum by Thomas Parambil Architects


Exterior view of Solum by Thomas Parambil Architects


Pool view of Solum by Thomas Parambil Architects


Barbeque Deck of Solum by Thomas Parambil Architects

Within the overall topography, the plot is sited on the lowermost point which becomes a natural catchment area for rainwater. They turned this challenging site constraint into an advantage by channeling water inlets from different parts of the plot into a canal which then flowed into a large tank. 

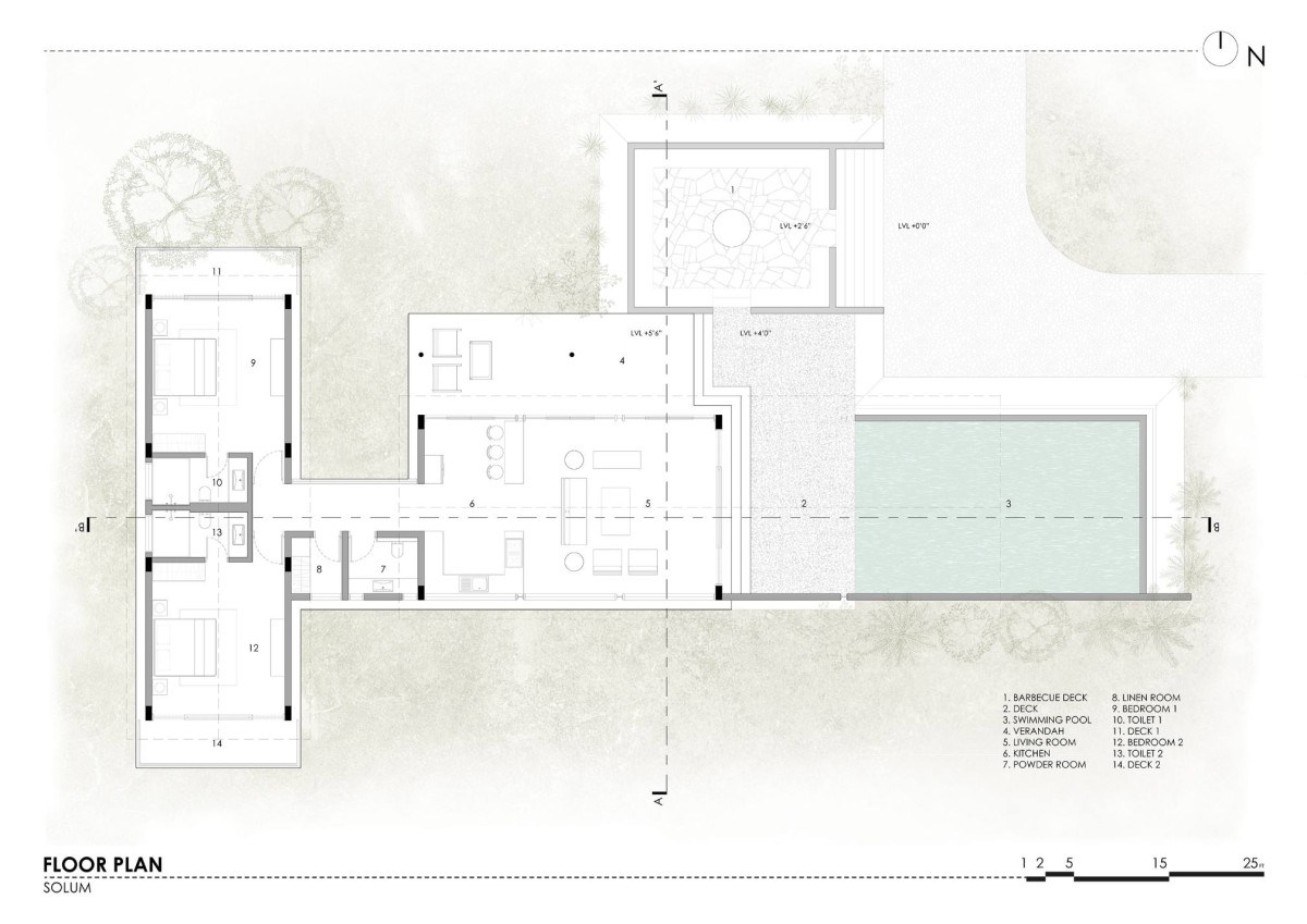
The desire for a connection to place and an earth-sensitive lifestyle shaped the built-form, the programmatic orchestration as well as the materiality. They imagined the envelope as a light, porous structure that would soften the distinction between a manmade object and its picturesque natural environs. Promoting togetherness and interaction, the configuration lays emphasis on common areas. The seamless sprawl of the east-facing public zone — comprising the pool deck, living area and kitchen — is replete with light and air, thanks to the extensive glazing, making mornings especially beautiful. Deep overhangs and canopies, supported on slim columns, create cool, shaded spaces that are also sheltered from tropical downpours. While these functionalities are bound by singularity of volume, they also enjoy distinct personalities owing to a tasteful deployment of furniture, art and other accessories. The bedrooms are tucked away to the west, beyond a small corridor, and protected from the harsh west sun by a blank wall.


Barbeque Deck of Solum by Thomas Parambil Architects


Barbeque Deck of Solum by Thomas Parambil Architects


Verandah of Solum by Thomas Parambil Architects


Living room of Solum by Thomas Parambil Architects


Living to Kitchen view of Solum by Thomas Parambil Architects

Sourced locally to adhere to a sustainable approach, materials are basic, honest, and celebrate imperfections and rootedness. Concrete blocks and terracotta roof tiles have been procured from manufacturing units located close to the site. The former are topped with rough plaster and painted over to maintain a natural texture. Black natural stone, also a local product, sets a gleaming stage for the visual narrative. Completing the eco-friendly strategies are solar panels installed across the site that generate enough electricity for running various activities.

Solum celebrates a nature-filled lifestyle. Here, every invigorating moment becomes even more energised when you realise that you are touching the earth very, very gently indeed.


View from living room of Solum by Thomas Parambil Architects


Bedroom of Solum by Thomas Parambil Architects


Dusk light exterior view of Solum by Thomas Parambil Architects


Dusk light exterior view of Solum by Thomas Parambil Architects


Elevations of Solum by Thomas Parambil Architects


Plan of Solum by Thomas Parambil Architects


Sections of Solum by Thomas Parambil Architects




Most Visited Articles




Subscribe

Get our latest article and updates delivered straight to your inbox.