Architecture

27-08-2025

Photographer : Fame Shutter

The house sits on approximately 40’X60’ corner plot with North & east facing road. The trapezoidal corner spaces in plot utilised as a balcony space in each section. The original design was conceived as a dual-flat apartment, featuring a central staircase that effectively divided the space into two distinct living units at each floor plate. This layout was functional for its intended purpose, providing separate access and privacy for each flat. However, as the project progressed, the client’s vision evolved, necessitating a significant reimagining of the space and had a shift in a vision at stilt level.

the project underwent a significant metamorphosis to meet the needs of its inhabitants, The decision to convert the apartment into a bungalow at stilt stage was driven by a desire for more space and a connection to the surrounding environment. The client sought a home that felt inviting and spacious, with a visual identity that resonated with the essence of a bungalow. The architects embraced this challenge, crafting a design that harmonizes modern aesthetics with traditional elements.

The original central staircase was reconfigured to enhance accessibility and flow. The ground floor, initially designed for stilt use, was transformed into a multifunctional space that now serves as an owner’s (astrologer’s)office and parking area. 

Nipani,Karnataka,India

Architects : S.P. Arch Studio
Area : 3600 sq. ft.
Year of Completion : 2023
Website : https://www.instagram.com/s.p.arch_studio/

Exterior view of Swami Niwas by S.P. Arch Studio


Exterior view of Swami Niwas by S.P. Arch Studio


Exterior view of Swami Niwas by S.P. Arch Studio


Living room of Swami Niwas by S.P. Arch Studio

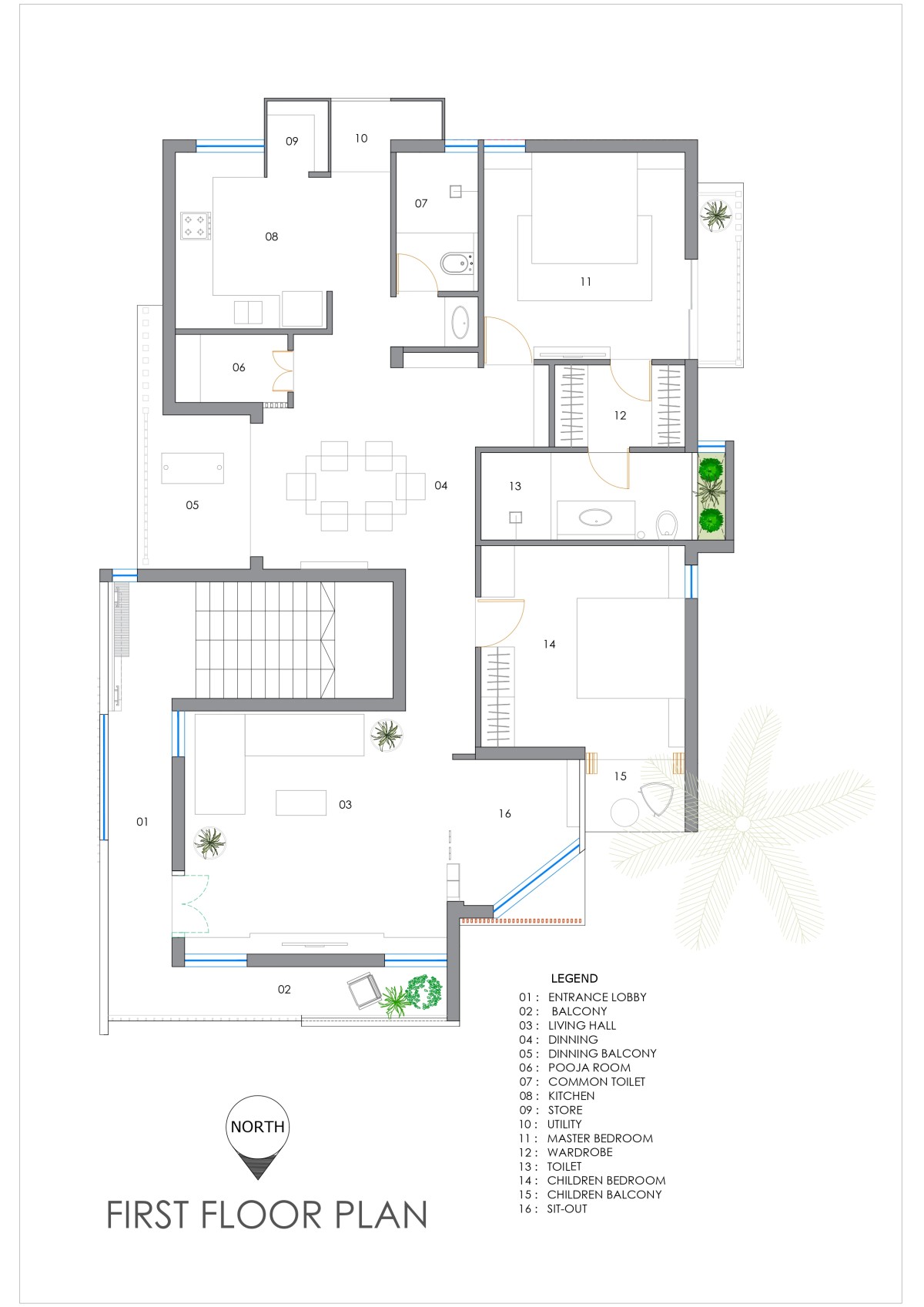
The first floor, which was initially intended for two separate flats, was replanned as a 2BHK unit. This layout promotes a sense of unity and openness, allowing for seamless movement between living, dining, and kitchen areas. The design emphasizes natural light and ventilation, creating a comfortable and inviting atmosphere.

One of the standout features of this bungalow is its opening , Maximum opening are strategically placed at north and east to allow natural light without harsh glare so building do not gain heat. Each room is cherished with balcony and free size opening facing towards east and north.

The intricate terracotta jail work serves as a functional and decorative element, allowing natural light to filter through while providing privacy. This traditional technique is remained in a modern context, creating a dialogue between the past and the present. Making it a focal point of the design.

Complementing the terracotta, the use of locally sourced stone adds durability and a sense of grounding to the structure. The stone cladding not only enhances the aesthetic appeal but also ensures that the bungalow blends seamlessly with its natural surroundings.


Living room of Swami Niwas by S.P. Arch Studio


Living room of Swami Niwas by S.P. Arch Studio


Living to Music room view of Swami Niwas by S.P. Arch Studio


Passage to dining area of Swami Niwas by S.P. Arch Studio


Dining of Swami Niwas by S.P. Arch Studio


Pooja room of Swami Niwas by S.P. Arch Studio


Bedroom 1 of Swami Niwas by S.P. Arch Studio


Bedroom 2 of Swami Niwas by S.P. Arch Studio

This architectural project exemplifies the power of adaptability and client collaboration in the design process. The transformation from an apartment to a bungalow not only meets the functional requirements of the client but also embodies a distinct visual identity that resonates with the essence of bungalow living.

For architects, this case study serves as a reminder of the importance of understanding client needs and the potential for innovative design solutions that can redefine spaces. By embracing change and prioritizing the user experience, architects can create homes that are not only functional but also deeply connected to the cultural and environmental context in which they exist.


Ground Floor Plan of Swami Niwas by S.P. Arch Studio


First Floor Plan of Swami Niwas by S.P. Arch Studio




Most Visited Articles




Subscribe

Get our latest article and updates delivered straight to your inbox.