Interior

14-11-2025

Photographer : Saurabh Suryan

Text provided by Architect

The "Coastal Harmony" represents a transformative approach to high-rise living in the heart of Mumbai, skilfully merging the vibrant essence of beach life with contemporary urban elegance. Architects Anand Deshmukh and Chetan Lahoti of Mind Manifestation envisioned a residence that embraces the tranquillity of the sea while providing a nurturing environment for a young family. This 3,000 sq ft duplex is designed to create an immersive experience that reflects the simplicity and beauty of coastal living, offering a retreat that balances functionality with aesthetic appeal. 

A central tenet of the design process was the homeowners' desire for a rug-free space, driven by their dynamic lifestyle with twin toddlers and a pet. This preference significantly influenced the design, leading to the creation of a seamless in-situ terrazzo flooring pattern that not only eliminated the need for spill-prone rugs but also became the central visual glue, or "coastal harmony," that unites the various spaces throughout the home. At the core of the design philosophy is the concept of extending breathtaking coastal views into the living space, ensuring that the interiors resonate with the essence of the sea. The architects opted for a material palette reminiscent of beachside elements, employing earthy textures and soft hues to evoke the warmth of sand and sun.  

Mumbai,Maharashtra,India

Architects : Mind Manifestation Design
Area : 3000 sq. ft.
Year of Completion : 2024
Website : https://www.instagram.com/mind_manifestation_/

Living room of The Coastal Harmony by Mind Manifestation Design


Living room of The Coastal Harmony by Mind Manifestation Design

Curved walls and arches soften transitions, instilling a sense of movement throughout the space. The terrace acts as an extension of the living area, complete with driftwood-style wooden flooring and dedicated al fresco dining spaces, effectively blurring the boundaries between inside and outside. 

Functional and stylish interiors were paramount, particularly considering the active lifestyle of the family. The choice of in-situ terrazzo flooring not only meets the practical needs of the homeowners but also enhances aesthetic appeal. The living room features playful, wavy edged furniture that echoes the design ethos, while the kids' bedroom includes a raised platform for play, further reflecting the family’s dynamic needs. Each room is tailored to enhance comfort and functionality, with the master bedroom showcasing a symmetric arched bed back wall inspired by Indian art, creating a serene focal point. A multipurpose room accommodates a work desk and a flexible bed setup, catering to various family requirements. 

Meticulous attention to detail is evident in every element within the residence, reflecting the homeowners' personalities. Handpicked quirky furniture pieces serve as unique accents, akin to finding treasures at the beach. The overall simplicity and elegance of the material and colour palette mirror the coastal environment, providing a serene backdrop to everyday life. 


Dining to Living room view of The Coastal Harmony by Mind Manifestation Design


Dining of The Coastal Harmony by Mind Manifestation Design


Dining of The Coastal Harmony by Mind Manifestation Design


Dining & Kitchen of The Coastal Harmony by Mind Manifestation Design


Kitchen of The Coastal Harmony by Mind Manifestation Design


Dining to Sky Deck view of The Coastal Harmony by Mind Manifestation Design


Sky Deck of The Coastal Harmony by Mind Manifestation Design


Sky Deck of The Coastal Harmony by Mind Manifestation Design


Staircase of The Coastal Harmony by Mind Manifestation Design


Staircase of The Coastal Harmony by Mind Manifestation Design


Staircase of The Coastal Harmony by Mind Manifestation Design


Staircase view of The Coastal Harmony by Mind Manifestation Design

The design process presented challenges, particularly in balancing the expansive proportions of the triple-height terrace while maintaining a sense of intimacy. To address this, tall plants, strategic artworks, and varied flooring textures were incorporated to create visual interest and scale 

Ultimately, "Coastal Harmony" is more than just a residence; it is a thoughtful response to the needs of a modern family living amidst the bustling city of Mumbai. By blending contemporary elegance with the whimsy of coastal life, this duplex offers a unique sanctuary that evolves 
with its inhabitants. The design fosters a harmonious environment that encourages creativity, relaxation, and connection with nature, all while celebrating the joy of living. This home embodies the spirit of the sea, creating an atmosphere where family life can thrive, grow, and flourish in all its seasons, resonating as a true "coastal harmony."


Multipurpose room of The Coastal Harmony by Mind Manifestation Design


Study Nook of The Coastal Harmony by Mind Manifestation Design


Master Bedroom of The Coastal Harmony by Mind Manifestation Design


Master Bedroom of The Coastal Harmony by Mind Manifestation Design


Children's Bedroom of The Coastal Harmony by Mind Manifestation Design


Bedroom 3 of The Coastal Harmony by Mind Manifestation Design


Bathroom of The Coastal Harmony by Mind Manifestation Design


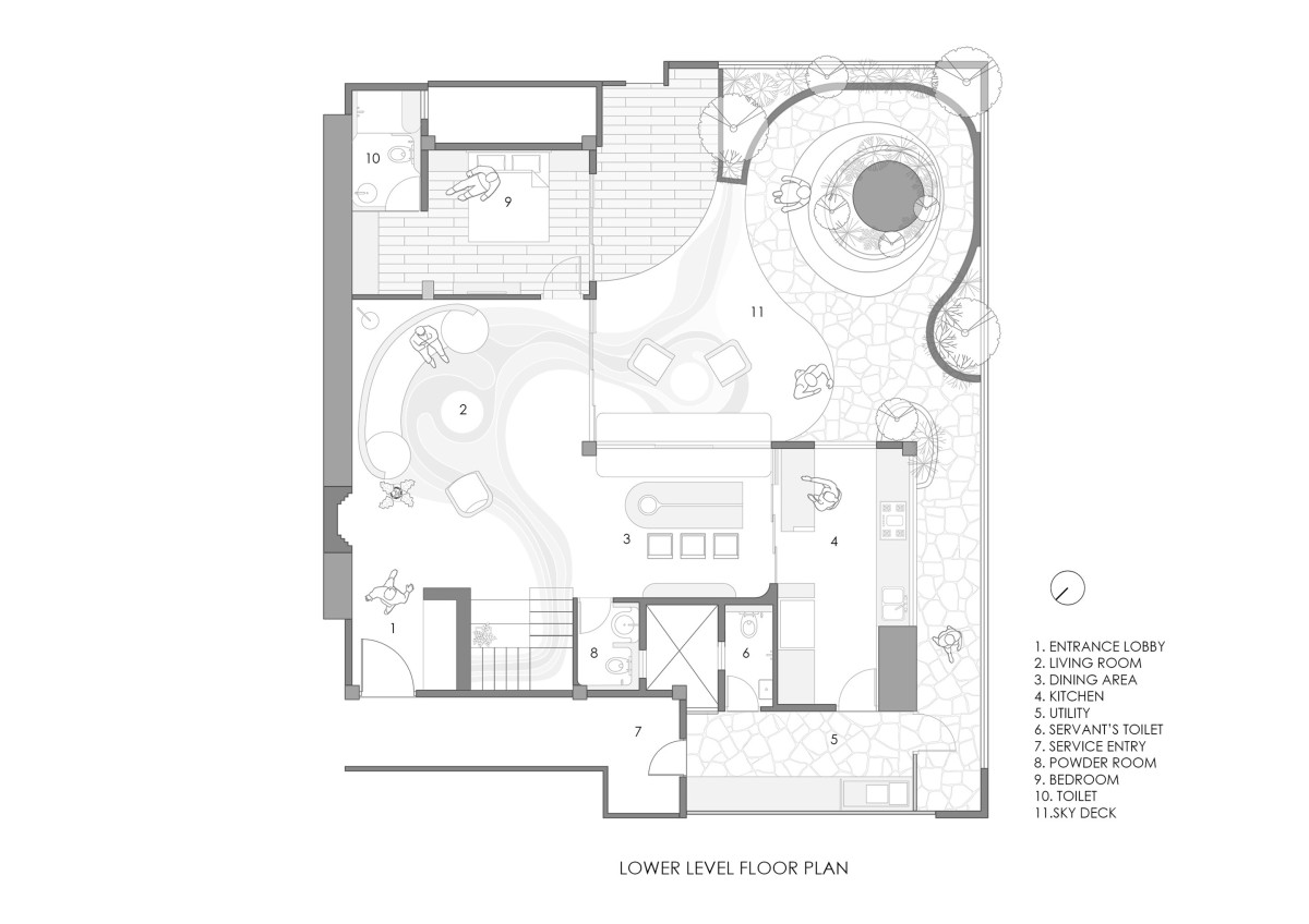
Lower Level Floor Plan of The Coastal Harmony by Mind Manifestation Design


Upper Level Floor Plan of The Coastal Harmony by Mind Manifestation Design


Isometric view of both floors of The Coastal Harmony by Mind Manifestation Design




Most Visited Articles




Subscribe

Get our latest article and updates delivered straight to your inbox.