Interior

08-10-2025

Photographer : Harsheen Mengar

The design philosophy behind the SSA Office is rooted in the belief that spaces should evoke memory, emotion, and sensory engagement—not just visual appeal. Drawing inspiration from the solid, grounded ethos of 1990s Indian corporate design, the approach reinterprets tradition through a contemporary, function-forward lens. Rather than defaulting to trend-driven minimalism, the project emphasizes material honesty, spatial clarity, and tactile richness. Every design decision aims to create an environment that is not only efficient and elegant, but also emotionally resonant. The philosophy honors the past without being bound by it, allowing nostalgia and modernity to coexist in quiet harmony.

The conceptual foundation of the project revolves around the juxtaposition of revivalist materiality with restrained modernity. At its core, the design sought to recreate the disciplined, compartmentalized feel of 90s Indian offices, while seamlessly incorporating contemporary interventions that enhance usability and identity. The choice of brown Kota stone in dual finishes introduces a subtle sensory gradient across zones, while bamboo blinds, rich green upholstery, and fluted violet paneling pay homage to a bygone aesthetic with a bold, modern interpretation. The concept intentionally avoids digital-era gloss in favor of timeless textures and physical cues—stone, wood, brass, glass and fabric—that allow users to intuitively experience the space. Through this layered approach, the office emerges as a space of measured elegance and functional dignity, crafted for a profession steeped in history, precision, and presence.

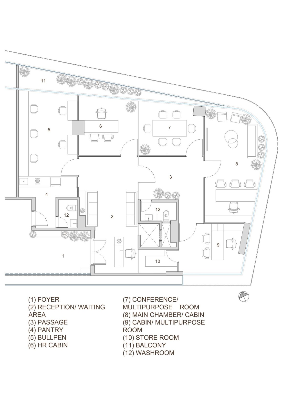
The spatial layout of the office has been designed with careful intention—balancing functionality, comfort, and aesthetics, all while drawing from a nostalgic 90s Indian corporate character reimagined through a contemporary lens. The zoning is clearly demarcated into public, semi-private, and private domains, with circulation planned to optimize natural ventilation, privacy, and intuitive movement through the space. All the private and semi-private spaces are positioned along the periphery, allowing them to open up to full-height windows and benefit from abundant natural light and ventilation. The public zones, therefore, form the central spine of the layout, seamlessly linking and anchoring the various parts of the office together.

Ahmedabad,Gujarat,India

Architects : Studio Kin
Area : 1,650 sq. ft.
Year of Completion : 2023
Website : https://www.instagram.com/studiokin.co.in/

The view of the Reception Desk from the Foyer of The Timeless by Studio Kin

As one approaches the office, the entrance opens into a thoughtfully designed foyer that acts as a gentle threshold between the outer world and the work environment within. The transition is marked by the cool touch of brown Kota stone underfoot, immediately grounding the visitor and setting the tone for the material palette inside. A few potted greens alongside the shoe cabinet bring a sense of softness to the otherwise understated entry, creating a moment of pause before stepping into the more active zones.


Reception & Waiting Area of The Timeless by Studio Kin

Flowing from the foyer, the reception draws you in with its blend of formality and comfort with a rough river-finished brown kota stone flooring. A custom desk, clad in rich wood veneer with clean lines, immediately signals a contemporary brand identity. Behind it, deep green upholstered seating—a nod to 90s corporate interiors—is arranged for clarity and courtesy. Planned beside the reception desk is a thoughtfully curated waiting area furnished with low-height seating that maintains openness without compromising hospitality. Fluted glass is used in the wall partitions to create a soft visual barrier—offering privacy without fully closing off the space. Its ribbed texture gently diffuses light, adding depth and a modern touch while maintaining a sense of openness. This thoughtful material choice brings both practicality and subtle elegance to the design. This space is henceforth designed to feel open yet anchored, with soft filtering light and air, ensuring comfort without enclosure.


Waiting Area of The Timeless by Studio Kin 0


HR cabin of The Timeless by Studio Kin

Adjacent to the bullpen and opening directing into the waiting area, this cabin offers an interplay of an enclosed atmosphere and visual narrative. The polished Kota stone flooring here signals elevation in privacy and function. A dark wood executive desk, accented by violet fluted paneling at its front face, is backed by built-in storage and cabinetry. The seating is in deep emerald green upholstery, echoing the reception area in tone and gravitas. Brass handles and trim subtly enrich the cabinetry joints. Bamboo curtains cover the window, diffusing direct glare while maintaining breezy ventilation. The cabin balances focus, warmth, and stylistic coherence.


HR cabin of The Timeless by Studio Kin


Workspace of The Timeless by Studio Kin

The bullpen, opening to the left, designed as a collaborative open space for the core working team, features open-plan workstations on polished Kota flooring. This textural shift cues the transition from public to semi-private zones. Work desks are designed with clean lines and integrated storage, subtly accented with brass trims. Deep green upholstered chairs—balanced, comfortable, and historically resonant—sit at each station. Bamboo curtains on the windows filter light and allow ventilation without heating the space unduly. The layout fosters collaboration while offering a quiet dignity, anchored by the tactility of stone and wood finishes.


Workspace of The Timeless by Studio Kin


Passage of The Timeless by Studio Kin

The polished reception area gives way to the rough river-finished Kota stone flooring of the main circulation spine. Along the walls, fluted glass partitions separate the passage from the waiting area—allowing diffused light to permeate while offering visual discretion. Slender brass inlays in the thresholds catch sunlight and highlight entry points to secondary zones. This corridor rhythmically reveals office areas with a tactile and visual narrative whereas a few potted greens adds a soft touch to the otherwise muted tones.


Conference room of The Timeless by Studio Kin

Continuing along the spine, opening into the passage, next to the HR cabin lies the conference room—a flexible, multifunctional space designed to adapt to team meetings, client presentations, or even solitary focus sessions. The flooring remains smooth mirror-finished Kota to support foot traffic and formal gatherings. A large central table with minimalist wooden legs and brass detailing accommodates modular seating. Acoustic considerations are met with solid partitions, while the visual flow remains open. Bamboo curtains are used near windowed façades, maintaining filtered daylight and passive cooling. The room is designed to transition from client meetings to collaborative workshops with ease.


Main cabin of The Timeless by Studio Kin

As one reaches the far end of the passage, the space opens into the main chamber—a room that enjoys both prominence and privacy. Bathed in natural light from the curved edge of the site, the cabin boasts commanding views and a softened sense of enclosure. The layout is classically hierarchical, with the desk placed to oversee the room, yet softened with lounge seating to allow for informal conversations. 

The desk—richly veneered and edged with brass—faces the curved window façade, bringing in daylight diffused through bamboo blinds overhead. Lounge seating in deep green upholstery sits near the windows, with a low coffee table and brass-accented detailing. Polished Kota floors here underfoot, warmed with area rugs beneath lounge seating. Violet fluted panels appear here too, giving continuity and reinforcing brand identity. The custom-made Ram Darbar artwork weaves a sense of devotion and divinity into the space, serving as a unifying element that ties the entire environment together with cultural depth and emotional resonance.

Every material is tactile: cool stone, textured fabric, smooth wood, warm metal. The juxtaposition of rich wooden finishes, deep green upholstery, and refined brass details gives the space a gravitas appropriate for its occupant—a senior high court lawyer—while the curved edges and modern touches keep it from feeling too formal or dated. 


Lounge Seating in the Main Cabin of The Timeless by Studio Kin


Cabin or Mulitpurpose room of The Timeless by Studio Kin

Off to the quieter rear zone, this cabin functions as a flexible space, fluid in function and adaptive in design. The furniture layout allows for quick transitions—from a focused private office setup to a small team room.  Polished Kota flooring continues, with rich wooden built-in consoles and shelving. Seating mirrors the color palette elsewhere: deep upholstery, brass handles, and careful proportions while the placement ensures acoustic peace. Bamboo curtains gently filter natural light, while solid wooden partitions ensure privacy, creating a comfortable setting for focused and intimate conversations. The thoughtful zoning keeps this room flexible but not detached, ensuring usability, warmth, and a quiet dignity appropriate for evolving work modes.

The balcony acts as a quiet retreat amidst the dynamic pace of the office, linking the bullpen, HR Cabin, and the conference room in a shared moment of pause. Designed as a transitional space, it offers a refreshing break with natural light and fresh air flowing in. Lined with thoughtfully placed planters, the balcony creates a gentle visual buffer from the surrounding urban fabric, softening views of neighboring buildings. This subtle layer of greenery not only enhances privacy but also introduces a calming, biophilic element—bringing balance to the otherwise structured environment and enriching the spatial experience with serenity and warmth.

Tucked beside the bullpen is the pantry—a compact yet vital part of the workspace. Flooring shifts back to rough-finished Kota for durability. Though modest in size, it has been laid out for maximum efficiency, with all essentials neatly placed and accessible. Cabinetry in warm wood veneer conceals appliances and storage, with brass knobs and edge trims. A small service counter allows discreet hospitality. Though primarily utilitarian, the pantry shares the same material language, reaffirming the design consistency throughout and offers moments of pause and refreshment for the team through the day.

Quietly integrated along the spine of the plan are the washroom and store room, both essential yet unobtrusive. Their placement ensures privacy without sacrificing accessibility. While the store room remains functional in its design, the washroom is finished with the same thoughtful materials and textures seen across the office—ensuring that even the smallest corners feel considered. Both spaces uphold material integrity and spatial logic, reinforcing the sensory and visual continuity of the entire office.


Plan of The Timeless by Studio Kin




Most Visited Articles




Subscribe

Get our latest article and updates delivered straight to your inbox.