The design of the vaults draws inspiration from a central Neem tree, which serves as the conceptual and spatial anchor around which the structures are thoughtfully arranged. Informally planned to respond to the client’s specific spatial needs, these vaults enclose various internal areas while maintaining a sense of openness and organic flow.

Subtle fenestrations integrated below the vault surfaces allows diffused natural light, fostering a calm and ambient interior environment. Along the periphery, large sliding windows open directly to the surrounding landscape, blurring the line between interior and exterior and reinforcing a seamless connection with nature.

The overall design intent was to craft a home that feels transparent and breathable — physically open and naturally ventilated. Wide roof overhangs offer generous shade and define deep verandahs that invite outdoor living, further reinforcing the dialogue between built and unbuilt space.

Respecting the existing grid of coconut trees, the vaults are strategically placed in parallel, allowing the architecture to integrate harmoniously with the site. This sensitive placement enables fluid circulation and emphasizes minimal intervention, allowing the built form to recede quietly into the verdant surroundings, almost disappearing within the lush foliage.

Each vault features concealed gutters along its longer sides that collect rainwater, which is then directed through interlocking mild steel chains into recharge pits. This passive system makes the home environmentally self-sustaining and responsive to its context.

Bangalore,Karnataka,India

Architects : Design Plus
Area : 7600 sq. ft.
Year of Completion : 2024
Website : https://www.instagram.com/design_plusblr/

View from entrance of The Vault by Design Plus


West facade view of The Vault by Design Plus


North - West view of The Vault by Design Plus


View from Farm of The Vault by Design Plus


Swimming pool side view of The Vault by Design Plus


Swimming pool view from dinning of The Vault by Design Plus


Entrance lobby & Deck of The Vault by Design Plus


Circular skylight of The Vault by Design Plus


View towards main door of The Vault by Design Plus


View towards Puja room of The Vault by Design Plus


Looking back from entrance varandah of The Vault by Design Plus


Living Area of The Vault by Design Plus


Dinning of The Vault by Design Plus


Bedroom of The Vault by Design Plus


View from bedroom deck of The Vault by Design Plus


View towards smarakam of The Vault by Design Plus


Looking from garden of The Vault by Design Plus


Aerial view of The Vault by Design Plus


Aerial view of The Vault by Design Plus


Site Plan of The Vault by Design Plus


Ground Floor Plan of The Vault by Design Plus


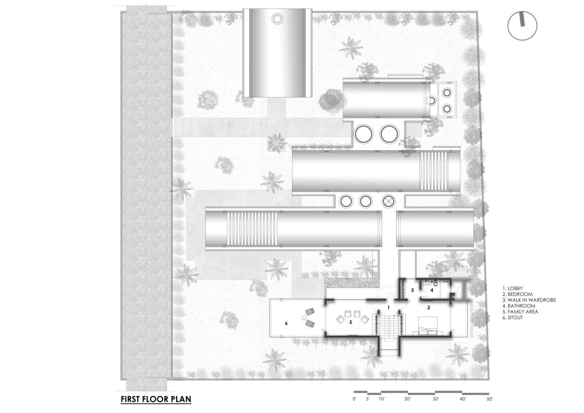
First Floor Plan of The Vault by Design Plus


Sections of The Vault by Design Plus




Most Visited Articles




Subscribe

Get our latest article and updates delivered straight to your inbox.