Architecture

15-02-2025

Photographer : Paperfarm Inc

Situated near the historic “Taiwan-Renga” (台灣煉瓦) brick kiln from 1899 that prospered this working-class district in Kaohsiung, Taiwan, the Veil House revisits this history by weaving a modern, tapestry-like façade utilizing floating clay bricks.  

In a district with very narrow streets, close proximity to neighbors, and a hyperactive social fabric, privacy is often compromised. To maintain boundaries, windows are often shaded throughout the day; outdoor spaces, such as balconies and terraces, are left largely unused. The Veil House challenges this public/private dynamic of compact urban living by creating a peaceful retreat that redefines the nature of this neighborhood’s typical house: a perforated brick façade liberates the need for window treatments and still allows filtered light into all the living spaces and bedrooms. The impetus for security and privacy reimagines the home as a body with a breathable, permeable skin. Like skin’s pores, perforation density is devised according to the functional needs behind the enclosures.

With cored bricks secured by rebars, shelf angles, and steel channels, the brick veil is designed to withstand the local challenges of earthquakes and typhoons.  There are also three emergency exits, engineered with saw-tooth pivots, seamlessly inserted onto the façade.

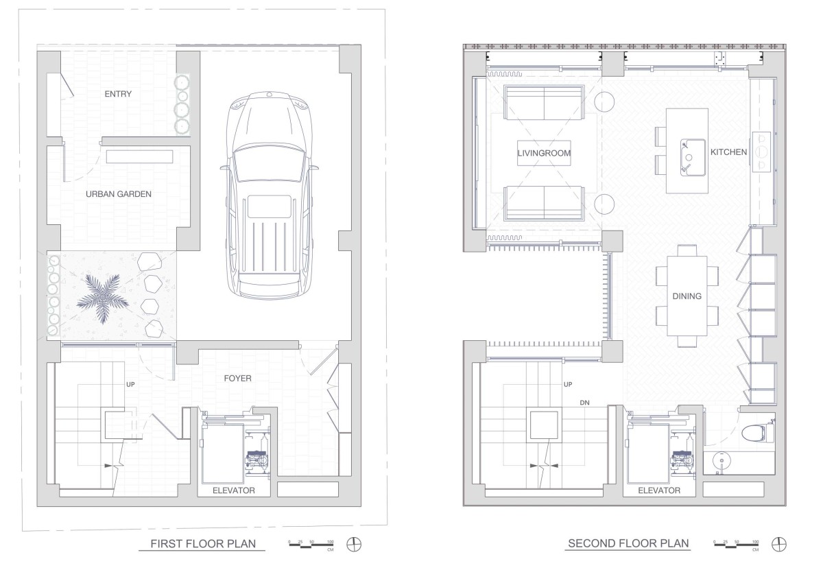
On the street level, automobile storage is provided without visually distracting the pedestrian entry. The powder-coated stainless-steel door is 12 ft by 7 ft (366 cm by 214 cm) in size and is two inches thick. The door and its mechanical track are hung from above, installed behind five courses of veneer bricks with a guide rail below.  

Kaohsiung,Taiwan

Architects : Paperfarm Inc
Area : 3390.63 sq. ft.
Year of Completion : 2023
Website : https://www.instagram.com/bypaperfarm/

Exterior view of The Veil House by Paperfarm Inc


Entry of The Veil House by Paperfarm Inc


Entry of The Veil House by Paperfarm Inc


Courtyard of The Veil House by Paperfarm Inc

The entry, through an interior garden, helps quiet the transition from the bustling city streets and provides a deep threshold into the heart of the home, thus acting as a type of perforation. The residents circle around an open atrium clad with 2 by 6 vertical aluminum louvers, to enter the main living area on the second floor.  This materiality pays homage to another Taiwanese vernacular of protected fenestrations while enhancing the verticality of the home.  Programmatically, this atrium is the engine of the house: it is an urban garden on the ground floor; on the bedroom’s balconies it is a light-well introducing natural illuminance into the rooms; it is an airshaft for cross-ventilation with the brick veil at the front facade; and it is a connector that ties circulation and program together across multiple floors.  


Staircase of The Veil House by Paperfarm Inc


Staircase of The Veil House by Paperfarm Inc


Dining of The Veil House by Paperfarm Inc

Behind the veil, this shifting perspective and the vertical stratification of program accentuate public versus private relationships. This forms the central discourse on the introverted approach of the home.

Throughout the home’s interior, custom-designed terrazzo flooring defines spaces within the largely, open-plan living floors, while full-length, custom white-oak millwork conceals not only the kitchen but the entertainment and storage spaces as well.  The reductive use of materials enhances the focus on the brick veil and the respite gained in the quiet, minimal interior.  The desire to build a cozy, airy lifestyle behind an urban façade that successfully withdraws from the frenetic street life is the defining characteristic of the Veil House.


Dining of The Veil House by Paperfarm Inc


Kitchen of The Veil House by Paperfarm Inc


Kitchen of The Veil House by Paperfarm Inc


Corridor of The Veil House by Paperfarm Inc


Passage to bedroom of The Veil House by Paperfarm Inc


Bedroom of The Veil House by Paperfarm Inc


Bedroom of The Veil House by Paperfarm Inc


Toilet of The Veil House by Paperfarm Inc


Dusk light exterior view of The Veil House by Paperfarm Inc


Detailed shot of external facade of The Veil House by Paperfarm Inc


Elevations of The Veil House by Paperfarm Inc


First & Second Floor Plans of The Veil House by Paperfarm Inc


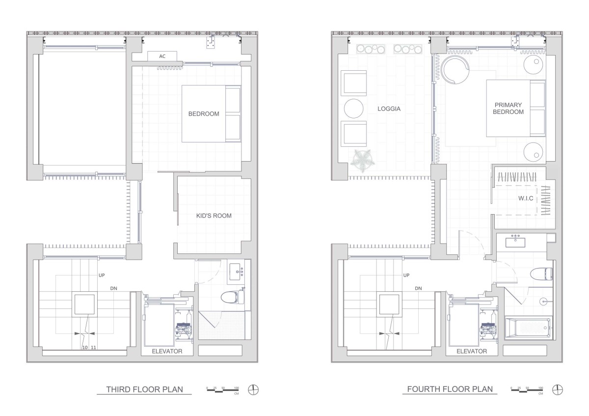
Third & Fourth Floor Plans of The Veil House by Paperfarm Inc


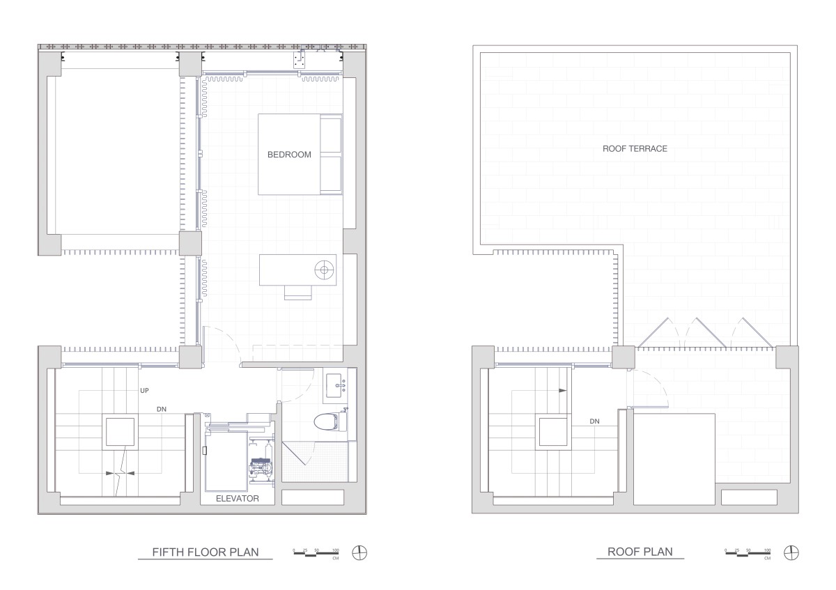
Fifth & Roof Plans of The Veil House by Paperfarm Inc


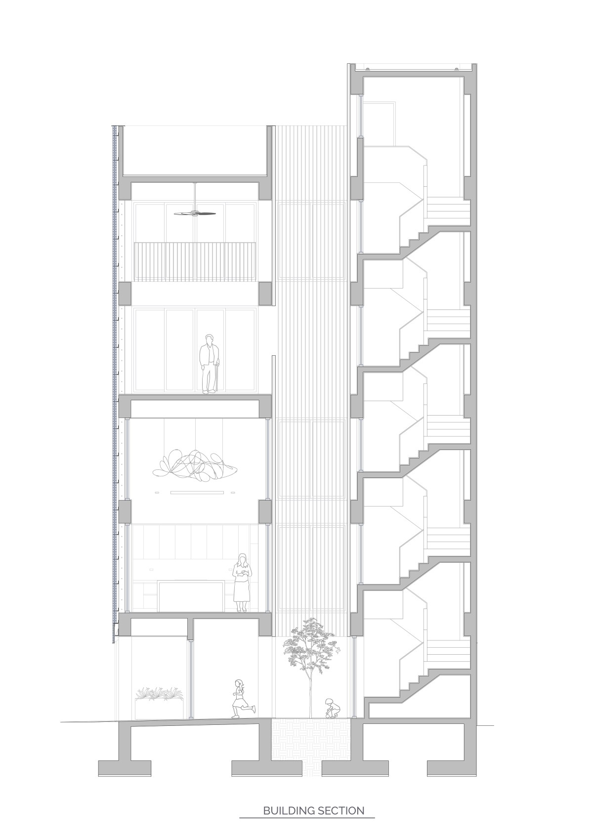
Section of The Veil House by Paperfarm Inc




Most Visited Articles




Subscribe

Get our latest article and updates delivered straight to your inbox.