Architecture

11-10-2025

Photographer : Shamanth Patil J

Amidst the unrelenting dynamism of Bangalore’s Old Madras Road stood an existing stilt-plus-four-floors structure, accessed via a narrow road to the east, with a school directly across and closely built structures on all other sides. The client envisioned transforming this space into a Vastu-compliant home that effortlessly combined luxury, functionality, and spatial flow, while standing out as a striking presence within the dense urban fabric. The project presented a distinct challenge: achieving privacy, natural light, and ventilation within this tightly packed context. With limited exposure on all sides, the design strategically maximized light and airflow from the eastern frontage. One of the primary hurdles was working with the pre-existing framework—marked by irregularly placed columns and varying beam depths. Rather than alter the structure, the design approach focused on extensive interventions that resolved these challenges, reimagining the space into a harmonious composition.

To elevate the street-facing presence, existing slabs were extended to form projecting balconies that not only provide shade and visual rhythm but also serve as transitional buffers between the interior spaces and the bustling surroundings. In the northeast corner, a sunken, inclined balcony was carefully integrated, fulfilling Vastu requirements while creating a bold architectural statement. Clad in wood, these projecting elements add a sense of sharpness and precision to the facade—an expression that ultimately inspired the name Timber Edge. The warm tones of the wood soften the concrete structure, striking a balance between bold forms and inviting materiality.

Bangalore,Karnataka,India

Architects : Crest Architects
Area : 7200 sq. ft.
Year of Completion : 2024
Website : https://www.instagram.com/crest.architects/

Formal Living room of Timber Edge by Crest Architects


Dining of Timber Edge by Crest Architects


Dining of Timber Edge by Crest Architects

Inside, the residence unfolds as a series of curated spaces, where design solutions elegantly address structural challenges while ensuring that natural light from the eastern double-height opening flows deep into the interiors. At the heart of the home, a marble and tinted glass partition subtly separates the formal and informal living areas. This feature cleverly conceals a misaligned column, provides privacy to the informal lounge, and doubles as a sleek, minimalist TV unit.

A curved lacquered glass partition gently separates the dining and living areas, seamlessly incorporating a mirror and wash basin. Nearby, a cantilevered breakfast counter set against a marble wall adds a sense of lightness and balance to the space.

Beneath a large skylight, the cantilevered staircase serves as a sculptural centrepiece. Inspired by origami, its angular metal treads inlaid with timber blocks create a striking contrast, offering both visual rhythm and a tactile experience.


Informal living of Timber Edge by Crest Architects


Family lounge of Timber Edge by Crest Architects

The first floor includes a family lounge and activity area, visible from the double-height living room below. Grooved marble and louvered teak panels in the activity area discreetly conceal the master bedroom entrance. Elliptical funnels drop down from the false ceiling, adding visual intrigue and enhancing the sense of height and openness.

Each bedroom is thoughtfully tailored to its occupant, while maintaining a cohesive aesthetic. The master and son’s bedrooms showcase luxury through materials like marble, wood, fabric, and veneer, whereas the daughter’s and guest rooms adopt a minimalist approach, allowing the surrounding greenery from private terraces to take center stage. The master bedroom features a cantilevered dressing unit, while the son’s bedroom has a hanging dressing unit to make the walk-in closet feel spacious.



Lobby to Play area of Timber Edge by Crest Architects


Master Bedroom of Timber Edge by Crest Architects


Son's Bedroom of Timber Edge by Crest Architects


Guest Bedroom of Timber Edge by Crest Architects


Daughter's Bedroom of Timber Edge by Crest Architects


Walk in wardrobe of Timber Edge by Crest Architects


Balcony of Timber Edge by Crest Architects


Balcony of Timber Edge by Crest Architects


Terrace of Timber Edge by Crest Architects

The terrace features a serene yoga deck, sheltered by a pergola made of wood and metal. A minimalist feature wall with a Buddha statue creates a peaceful, contemplative retreat.


Dusk light exterior view of Timber Edge by Crest Architects


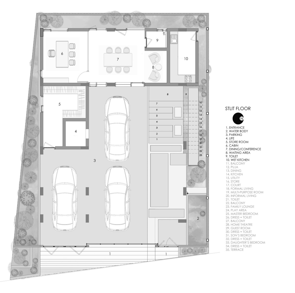
Stilt Floor Plan of Timber Edge by Crest Architects


Ground Floor Plan of Timber Edge by Crest Architects


First Floor Plan of Timber Edge by Crest Architects


Second Floor Plan of Timber Edge by Crest Architects


Third Floor Plan of Timber Edge by Crest Architects




Most Visited Articles




Subscribe

Get our latest article and updates delivered straight to your inbox.