Architecture

05-08-2025

Photographer : Reshma Kamat

The site is located on a service road facing a park, with a very irregular and challenging shape. The primary requirement was to accommodate two separate houses: one for Veena and Ashok’s family, and another for their parents. The clients followed Vaastu principles with great rigidity and extreme attention to detail.

To address the constraints of the site while adhering to Vaastu, a rectangle was carefully marked within the irregular plot to define the main building footprint. The remaining portions of the site were thoughtfully developed as a landscaped envelope, transforming the negative spaces into gardens and open areas that complement the built form.

A grand and inviting stepped pathway leads to the main entrance of Veena and Ashok’s house. The interiors are defined by the strong use of pure white as the primary color palette, creating a sense of calm and clarity. The sacred, triple-height open Puja space forms the spiritual and visual focal point of the home and is visible from most areas within the house.

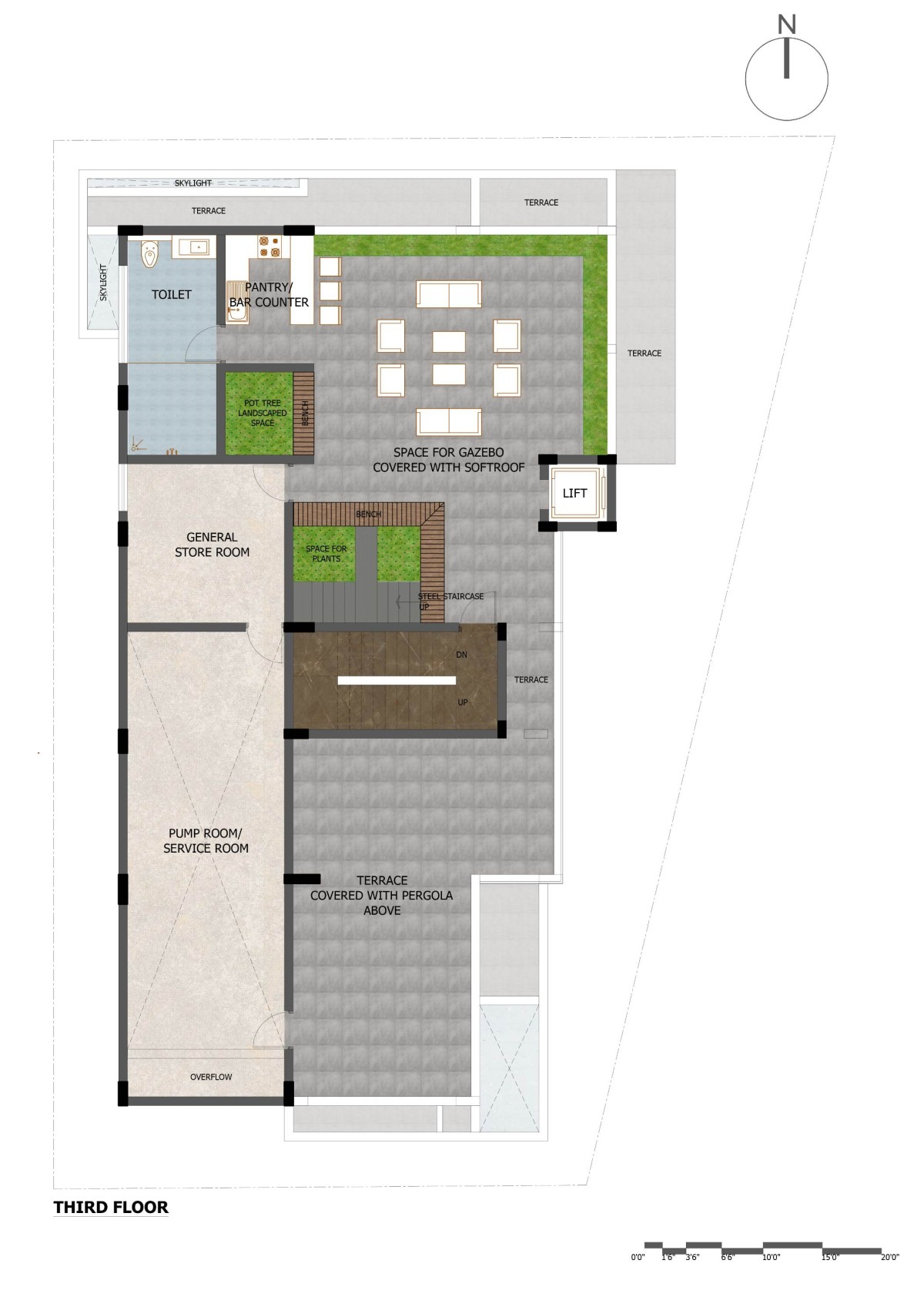
Each bedroom is designed with its own dedicated common and unwinding space, offering privacy as well as shared areas for relaxation. The terrace level features an informal living area with a bar, perfect for gatherings. A metal staircase ascends to the vanishing-edge pool deck, creating a striking and luxurious outdoor experience.

Mysore,Karnataka,India

Architects : Design Plus
Area : 8000 sq. ft.
Year of Completion : 2022
Website : https://www.instagram.com/design_plusblr/

North-East Elevation of Veena & Ashok Residence by Design Plus


Living & Dining of Veena & Ashok Residence by Design Plus


Dining & Kitchen of Veena & Ashok Residence by Design Plus


Kitchen to Pooja area of Veena & Ashok Residence by Design Plus


Pooja area of Veena & Ashok Residence by Design Plus


Second floor view of Veena & Ashok Residence by Design Plus


Daughter's Bedroom of Veena & Ashok Residence by Design Plus


Master Bedroom of Veena & Ashok Residence by Design Plus


Master Living of Veena & Ashok Residence by Design Plus


Master Coffee Corner of Veena & Ashok Residence by Design Plus


Vyshak Bedroom of Veena & Ashok Residence by Design Plus


Reading Nook of Veena & Ashok Residence by Design Plus


Terrace Pool of Veena & Ashok Residence by Design Plus


Staircase to Main door of Veena & Ashok Residence by Design Plus


Basement Floor Plan of Veena & Ashok Residence by Design Plus


Ground Floor Plan of Veena & Ashok Residence by Design Plus


First Floor Plan of Veena & Ashok Residence by Design Plus


Second Floor Plan of Veena & Ashok Residence by Design Plus


Third Floor Plan of Veena & Ashok Residence by Design Plus


Terrace Floor Plan of Veena & Ashok Residence by Design Plus




Most Visited Articles




Subscribe

Get our latest article and updates delivered straight to your inbox.