Architecture

09-02-2025

Photographer : Kuber Shah

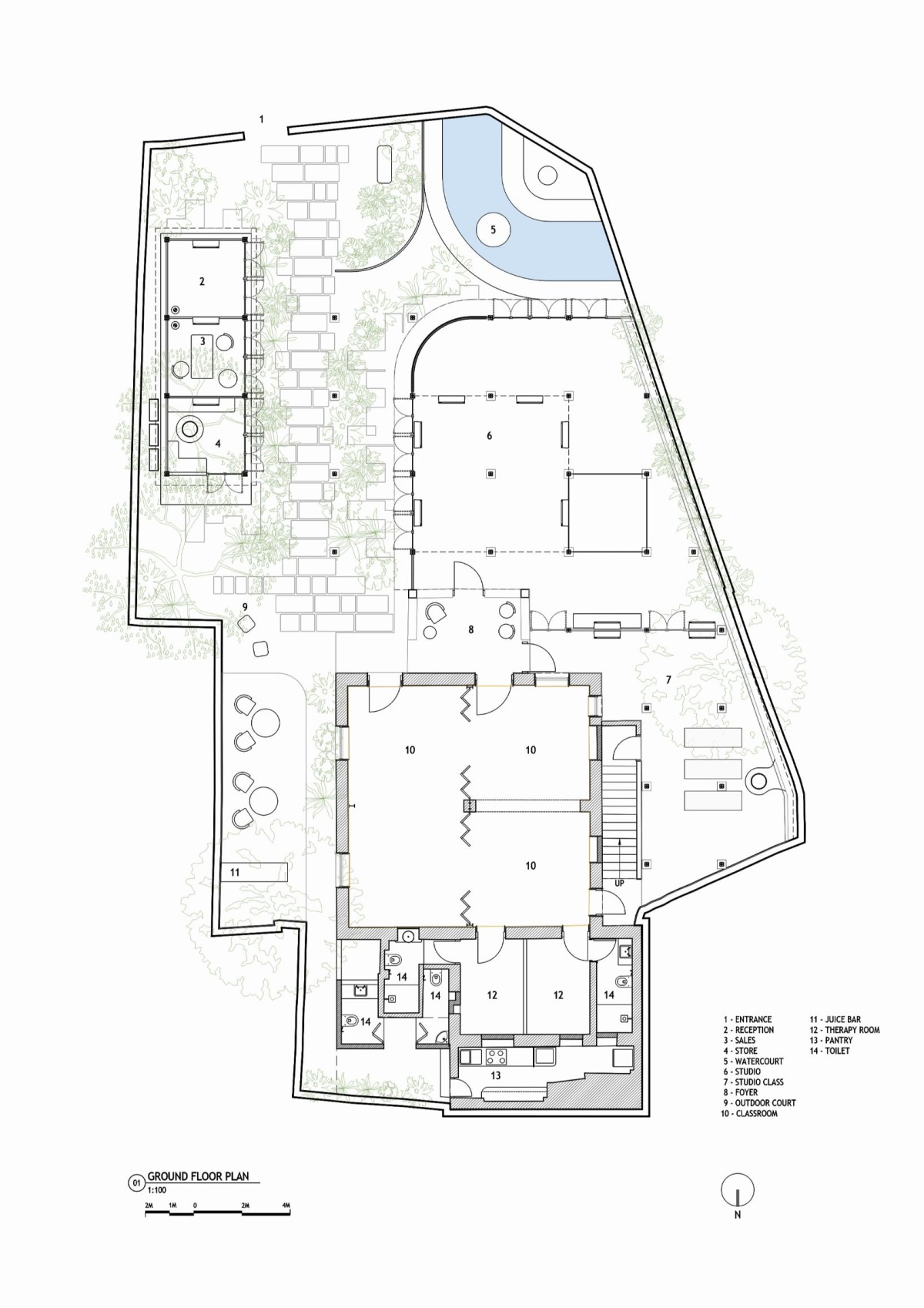
Nestled within a dense neighbourhood, just off Carter Road in Mumbai, an old house situated in a parking lot has been converted into a wellness space through adaptive reuse. It currently stands as a testament to the ever-changing urban landscape that surrounds it. The house has stood still as the city around this plot has transformed through time. 

Over the years, it has grown and adapted, as it welcomed permanent extensions that seamlessly blended with its original structure. A staircase, crafted from the enchanting pink paloda stone, stands as a visual testament to the harmonious juxtaposition of old and new. An attached kitchen and a toilet became part of the narrative as well.

They were introduced to this house when it was chosen as the canvas for a wellness space, a sanctuary in the heart of the city's chaos. The idea of a ‘palimpsest’ was born – a term that aptly encapsulates the layers of history, purpose, and materials that are interwoven, creating a unique experience. They took the opportunity to continue the act of layering by building in and around the house. 

Mumbai,Maharashtra,India

Architects : RAD co + lab
Area : 6500 sq. ft.
Year of Completion : 2023
Website : https://www.instagram.com/rad.co.lab/

Foyer of Wellness Haven by RAD co + lab


Studio of Wellness Haven by RAD co + lab


Studio of Wellness Haven by RAD co + lab


Studio of Wellness Haven by RAD co + lab


Studio of Wellness Haven by RAD co + lab


Studio of Wellness Haven by RAD co + lab


Classroom of Wellness Haven by RAD co + lab

They first reclaimed most of the paved plot area and converted it back to a soft-scape, as it would have been originally. A stepping stone pathway leads you to the old building (core). On either side of the path is a dense plantation, layered in height to attract the fauna around. Anchored within, is a classroom, where they exposed the weathered brick walls of the structure. The classroom is the heart of the space, consisting also of two therapy rooms attached to it. Surrounding the core, they made extensions to this old structure using bamboo. 


Therapy room of Wellness Haven by RAD co + lab


Meeting Zone of Wellness Haven by RAD co + lab

To the right of the stone path, lies the meeting cabins. One enters the cabins to find a low seating and a table for a brief consultation. A seamless blend of different programs unfolds around the core – yoga studios, cabins, private yoga classrooms, a store and even a juice bar to nourish both body and spirit. The yoga studio is surrounded by openable doors that look directly into the dense plantation. 

Natural stones and textures along with the presence of a water body envelop visitors in a sensory embrace while the translucent roof allows light to flood the space. The summer light is insulated by the use of jute mats that scallop under the roof and become blinds for the openable doors, in case of privacy requirements. 


Meeting Zone of Wellness Haven by RAD co + lab


First Floor Cabin of Wellness Haven by RAD co + lab


Outdoor Court of Wellness Haven by RAD co + lab


Ground Floor Plan of Wellness Haven by RAD co + lab


First Floor Plan of Wellness Haven by RAD co + lab


Sections of Wellness Haven by RAD co + lab




Most Visited Articles




Subscribe

Get our latest article and updates delivered straight to your inbox.