Architecture

31-03-2026

Photographer : Manansurti Photography


The client envisioned a contemporary west-facing villa that feels calm, timeless, and deeply connected to nature. The brief focused on clean architectural lines, honest materiality, and a balanced play of light and shadow to counter the harsh western sun. Exposed concrete, muted greys, warm wood accents, and soft pastel interiors were preferred to create a refined yet welcoming aesthetic.

Internally, the spaces were to feel open, functional, and uncluttered, with seamless transitions between living, dining, and kitchen areas. Natural light, cross-ventilation, and indoor greenery were key priorities to enhance everyday living. Bedrooms were designed as serene retreats with layered textures, subtle colour palettes, and minimal décor.

The client sought a home that is modern but not cold—where architecture, interiors, and landscape come together to tell a cohesive story of understated luxury, comfort, and mindful living.

Nanded,Maharashtra,India

Architects : Saurabh Bhutada Architects
Area : 2700 sq. ft.
Year of Completion : 2025
Website : https://www.sbarchitects.co.in/

Elevation of West Villa by Saurabh Bhutada Architects


Exterior view of West Villa by Saurabh Bhutada Architects

West Villa is a contemporary residence designed to respond thoughtfully to its west-facing orientation while embodying a calm, modern lifestyle. The architecture is articulated through bold, linear volumes and deep recesses that mitigate heat gain, create shaded transitions, and enhance thermal comfort. Exposed concrete forms the primary language, complemented by warm wood elements and soft interior finishes to balance solidity with warmth.

The planning follows an open yet structured layout, allowing seamless visual flow between spaces while maintaining functional clarity. Natural light is carefully filtered through controlled openings, screens, and layered textures, transforming light and shadow into defining spatial elements throughout the day.


Balcony of West Villa by Saurabh Bhutada Architects


Parking Porch of West Villa by Saurabh Bhutada Architects


Foyer of West Villa by Saurabh Bhutada Architects


Living room of West Villa by Saurabh Bhutada Architects

The design process began with a detailed site and climate analysis, with particular focus on the west-facing orientation and its impact on heat gain and daylight. This informed the massing strategy, where bold volumes, deep recesses, and shaded balconies were introduced to control sunlight while enhancing spatial depth.

Material exploration followed, prioritising exposed concrete for its thermal performance and timeless character, balanced with warm wood and soft finishes to humanise the spaces. Spatial planning was developed through an open-plan approach, ensuring fluid movement, visual continuity, and functional zoning.


Living room of West Villa by Saurabh Bhutada Architects


Living room of West Villa by Saurabh Bhutada Architects


Dining of West Villa by Saurabh Bhutada Architects

Daylight and ventilation studies guided the placement of openings, screens, and courtyards to achieve filtered light and cross-ventilation throughout the house. Interior design evolved in parallel with architecture, maintaining a cohesive material and colour palette.

The process concluded with fine detailing and landscape integration, ensuring the villa functions as a holistic, climate-responsive home rooted in modern living principles.

Interiors are kept minimal and timeless, using muted palettes, natural materials, and subtle detailing to create serene, livable spaces. West Villa is envisioned as a home where architecture, interiors, and landscape come together to express understated luxury, environmental responsiveness, and a refined narrative of modern living.


Hand wash area of West Villa by Saurabh Bhutada Architects


Kitchen of West Villa by Saurabh Bhutada Architects


Kitchen of West Villa by Saurabh Bhutada Architects


Staircase of West Villa by Saurabh Bhutada Architects


Reading nook of West Villa by Saurabh Bhutada Architects


Bedroom 1 of West Villa by Saurabh Bhutada Architects


Bedroom 1 of West Villa by Saurabh Bhutada Architects


Bedroom 2 of West Villa by Saurabh Bhutada Architects


Bedroom 2 of West Villa by Saurabh Bhutada Architects


Bedroom 3 of West Villa by Saurabh Bhutada Architects


Bedroom 3 of West Villa by Saurabh Bhutada Architects


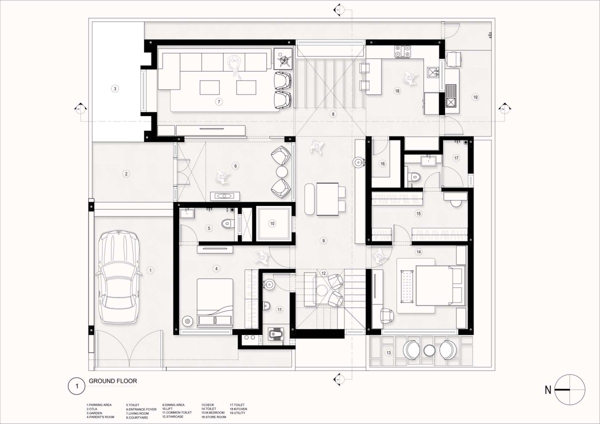
Ground Floor Plan of West Villa by Saurabh Bhutada Architects


First Floor Plan of West Villa by Saurabh Bhutada Architects


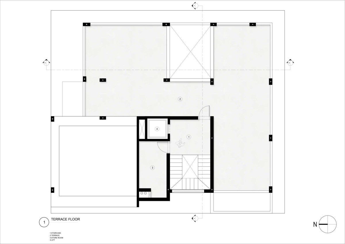
Terrace Plan of West Villa by Saurabh Bhutada Architects


Sectional Elevation 1 of West Villa by Saurabh Bhutada Architects


Sectional Elevation 2 of West Villa by Saurabh Bhutada Architects




Most Visited Articles




Subscribe

Get our latest article and updates delivered straight to your inbox.