Text provided by Architect

This 2300 square foot apartment is located on the 17th floor overlooking the cityscape on one side and a lake on the other. The residents were very clear, right from the start; they wanted a home that reflected their South Indian roots while accommodating and celebrating all their global adventures. Their exquisite carpet collection from across the world set the perfect backdrop for the carefully curated colonial furniture pieces, a lot of which the clients themselves sourced and collected during their visit to Pondicherry.

The foyer has an antique rose wood pillar with brass detailing and a seating niche. A subtle flooring design in a light grey hue using Micro-concrete was done to ensure that the furniture, décor, and lighting took the main stage here. The theme of arches was the starting point to the design language, and this has been used as a guiding principle while designing small and larger design elements, such as niches, art frames, solid wood beading details, and even wardrobe shutters. In order to contrast the bold and colourful carpets and wallpaper patterns, a dusty pink-hued lime wash has been used. This not only soothes the eye but also brings in a sense of warmth and comfort to the space. The living area also houses a beautifully carved antique swing, a plush 3-seater settee in a deep terracotta fabric, and 2 solid wood armchairs with spindle designs.

Bangalore,Karnataka,India

Architects : Aanai Design Studio
Area : 2300 sq. ft.
Year of Completion : 2023
Website : https://www.instagram.com/aanaistudio/

Foyer of Praana Residence by Aanai Design Studio


Living room of Praana Residence by Aanai Design Studio


Living room of Praana Residence by Aanai Design Studio


Living room of Praana Residence by Aanai Design Studio


Dining of Praana Residence by Aanai Design Studio

The dining area is designed with a bold wallpaper feature wall; patterns of which borrow from a neutral colour palette, with a few hints of dusty pink. Low-height console units have been neatly tucked into this feature wall for crockery and other utilities. A storage partition wall, crafted with solid wood spindles, open shelves, hooks to hang small planters and brass rods, seamlessly adds a charm to the common area and helps to zone the dining as almost a separate room. The open floor plan connects the dining area and kitchen, which sports a deep blue hue and is designed to be a functional space, tailored to the client’s requirements. Wood tones seep through, in the form of beading details and wall cabinetry, along with the neutral off-white daddo tiles, adding character to the space.


Dining of Praana Residence by Aanai Design Studio


Dining of Praana Residence by Aanai Design Studio


Kitchen of Praana Residence by Aanai Design Studio


Master Bedroom of Praana Residence by Aanai Design Studio

The master bedroom houses a strikingly beautiful poster bed, customised by the client’s sister for her. The dresser here is a sight for sore eyes! Intricately carved motifs with brass handles, this unit truly makes for a very special and cherished antique. The plush maroon reading chair adds a cozy nook to this space.


Master Bedroom of Praana Residence by Aanai Design Studio


Master Bedroom of Praana Residence by Aanai Design Studio


Master Bedroom of Praana Residence by Aanai Design Studio


Guest Bedroom of Praana Residence by Aanai Design Studio

An old bed from the clients’ previous home was refurbished for the Guest Bedroom at Praana. A new fabric upholstered headboard adds freshness to the space and ties in with the fabric inlay wardrobe shutters. A patterned fabric inlay, let against eggshell white shutter frames, makes the space feel larger and accentuates the abundant natural light that the space receives. The study nook here, with an antique desk and a few open fixed shelves finished in a teak veneer, acts as an extra work desk when required. 


Guest Bedroom of Praana Residence by Aanai Design Studio


Study room of Praana Residence by Aanai Design Studio

The study at Praana features a floor-to-ceiling bookshelf, which effortlessly becomes the highlight of the room. The unit has two clear glass shutters and two semi-open shutters with solid wood spindle details. The filleted shutter frames carry the overarching theme of soft curves in the Study. Soft striped fabric inlay is used for the bottom drawers in the unit, for a more accessible storage option within. The mirror-detailed armoire is another interesting feature in this space. A pull-out sofa, designed by Tusker Katha, creates a cozy reading spot and doubles up as an additional bed when more guests are visiting the home. This nook is also Zeno, their Golden Retriever’s favourite spot!


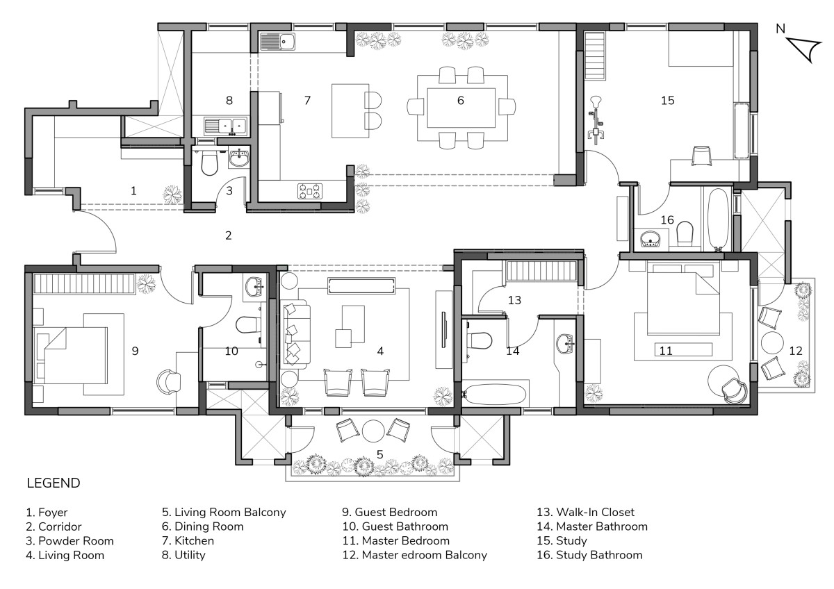
Plan of Praana Residence by Aanai Design Studio




Most Visited Articles




Subscribe

Get our latest article and updates delivered straight to your inbox.