Text provided by Architect

“The question of what transforms a house into a home served as the central inspiration behind this design, which thoughtfully merges traditional elements with modern sensibilities.”

Upon arrival, visitors are greeted by the majestic presence of a Pink Trumpet Tree, standing tall and framing an imposing eight-foot pedestrian gate. This entryway strikes a balance between scale and grandeur, setting the tone for the journey through the property. A covered walkway extends from the gate to the main entrance, offering a serene transition from the outdoors to the interior spaces.

Along this pathway, subtle yet meaningful design elements pay homage to the family’s past. A brass bell, a small elephant mural, and a stepped seating area, each crafted from natural materials evoke memories of their previous home. These features not only add a tactile richness to the design but also reinforce the connection between the old and the new, anchoring the home in a sense of continuity.

Bangalore,Karnataka,India

Architects : Studio UrbanPoetics
Area : 5,500 sq. ft.
Year of Completion : 2024
Website : https://urbanpoetics.in/

Exterior view of The Living Tapestry by Studio UrbanPoetics


Exterior view of The Living Tapestry by Studio UrbanPoetics


Entrance of The Living Tapestry by Studio UrbanPoetics


Entrance Porch of The Living Tapestry by Studio UrbanPoetics


Entrance Porch of The Living Tapestry by Studio UrbanPoetics

The front of the house is multifunctional, thoughtfully designed to balance privacy and openness. While enclosed like a traditional home, it can effortlessly open to welcome neighbors and friends, fostering a warm atmosphere for informal gatherings and evening conversations. A verandah extends toward the street, maintaining a dialogue between the house and its surroundings, with the Pink Trumpet Tree anchoring the front yard and acting as a defining feature of the entryway.


Verandah of The Living Tapestry by Studio UrbanPoetics


Living room of The Living Tapestry by Studio UrbanPoetics

Public spaces within the house are meticulously designed to allow for seamless flow. The living room opens onto a central courtyard, while the dining area enjoys direct visual connection with the kitchen encouraging interaction and a sense of togetherness. These spatial relationships are intentional, reflecting the way much of the family’s daily life unfolds within these communal areas.


Dining to Pooja Mandir view of The Living Tapestry by Studio UrbanPoetics


Courtyard & Pooja Mandir of The Living Tapestry by Studio UrbanPoetics

The vertical zoning of the home was carefully considered to meet the needs of its multigenerational inhabitants. The ground level caters to the elderly, offering spaces for spirituality and leisure, with easy access to the outdoors. In contrast, the upper level is designed for the younger generation, featuring a living area and study that open onto a secure balcony overlooking the lower levels fostering both privacy and connection.

The design centers around three key figures: Ajji, representing the elderly; the children, embodying the next generation; and a nurturing figure whose interactions with space reflect its adaptability and evolution over time.


Skylight of The Living Tapestry by Studio UrbanPoetics


Dining & Kitchen of The Living Tapestry by Studio UrbanPoetics


Staircase of The Living Tapestry by Studio UrbanPoetics


First floor lobby of The Living Tapestry by Studio UrbanPoetics


Library nook of The Living Tapestry by Studio UrbanPoetics


Bedroom of The Living Tapestry by Studio UrbanPoetics


Study Area of The Living Tapestry by Studio UrbanPoetics


Balcony of The Living Tapestry by Studio UrbanPoetics


Night exterior view of The Living Tapestry by Studio UrbanPoetics


Night exterior view of The Living Tapestry by Studio UrbanPoetics


Elevation of The Living Tapestry by Studio UrbanPoetics


Ground Floor Plan of The Living Tapestry by Studio UrbanPoetics


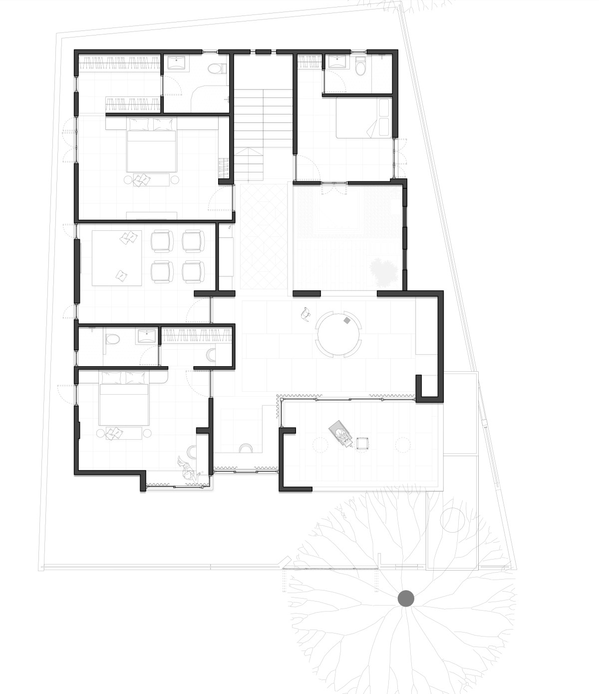
First Floor Plan of The Living Tapestry by Studio UrbanPoetics


Section of The Living Tapestry by Studio UrbanPoetics




Most Visited Articles




Subscribe

Get our latest article and updates delivered straight to your inbox.