Text provided by Architect

The Quiet Quarters is a low-rise multi-family residence for the client Naga Constructions located on a quiet corner in close proximity to a neighborhood school. This contextual condition formed the background for the design intervention, where the building gently opens itself to the corner and the street beyond. The project was envisioned as a subtle presence within the neighborhood, allowing everyday life within the homes to quietly interact with the public realm.

The corner edge became an important moment in the design. The public parts of each residence, such as the living, dining, and family spaces, open toward the street across multiple levels, creating a sense of connection while maintaining privacy. The more private zones, including balconies and utility spaces, act as softer interactive elements, contributing to a quiet visual exchange with the street through light, movement, and daily use.

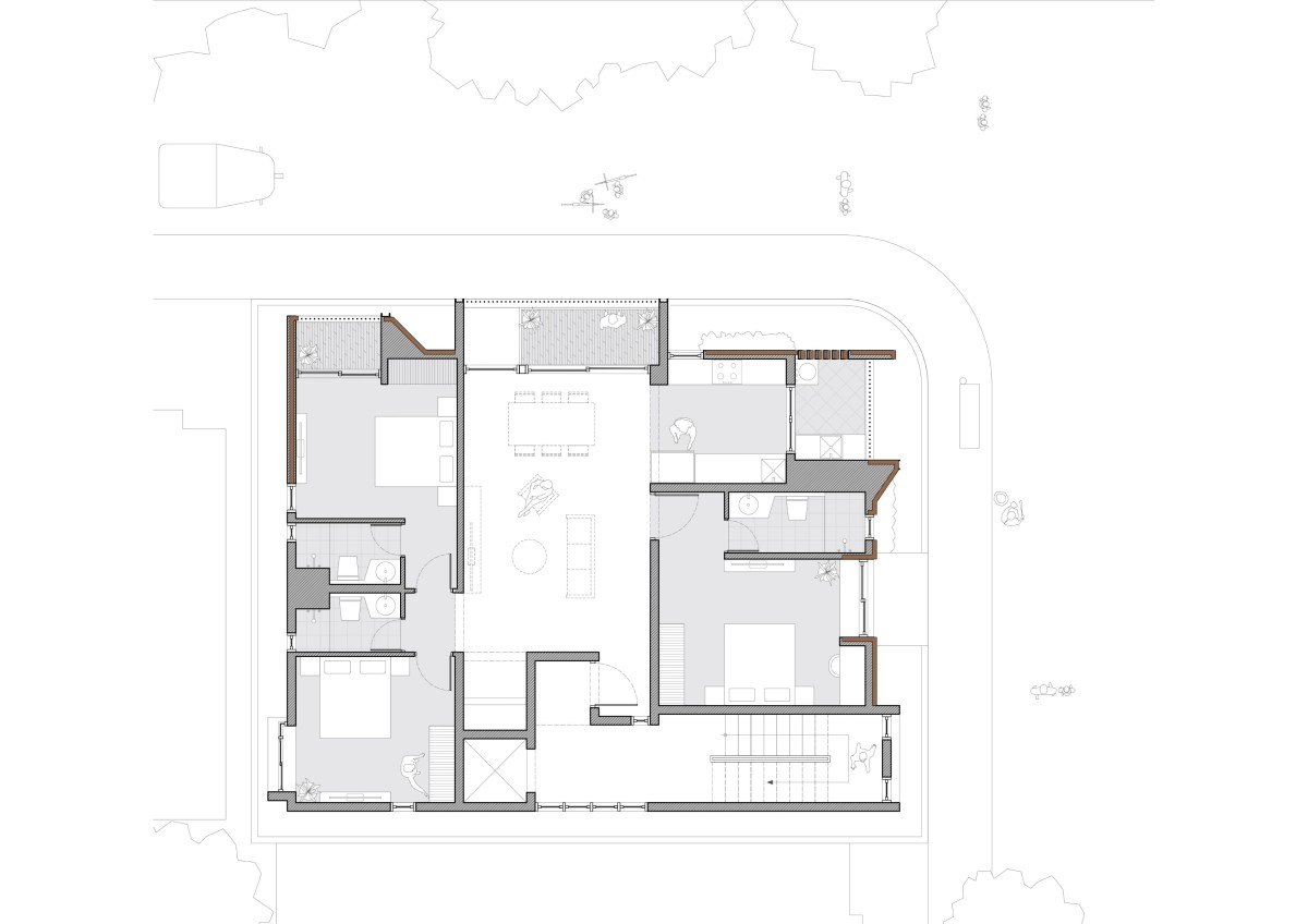
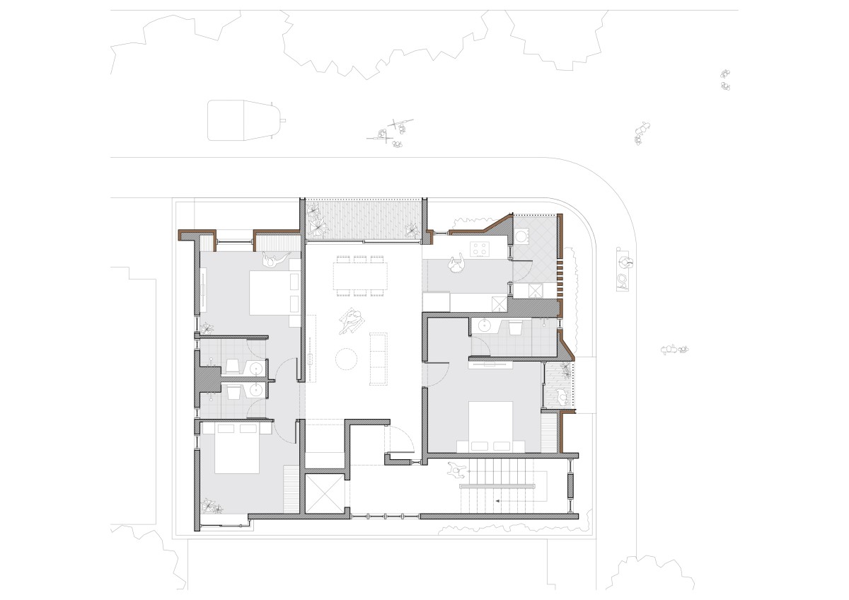
The building is organized as stacked individual residences, with a duplex occupying the upper levels. Internally, the planning is structured around a central alignment with an existing tree, which anchors the public spaces of each home. These areas open out through larger glazing, creating a seamless relationship with the tree and the surrounding context. The bedrooms follow a conventional layout but are enhanced with small bay windows or projecting balconies, allowing controlled interaction with the street while retaining intimacy. The ground floor is largely dedicated to parking, but in an urban context these spaces remain vacant for most of the day. This allows them to function informally as areas for play and activity. A small seating space is retained at the corner of the site, becoming a place for locals and school children to gather and a setting for everyday conversations.

Bangalore,Karnataka,India

Architects : Studio UrbanPoetics
Area : 10,000 sq. ft.
Year of Completion : 2025
Website : https://urbanpoetics.in/

A view captures how the facade serve as a backdrop for the social space of The Quiet Quarters by Studio UrbanPoetics


Isolated view highlighting the exterior corner of The Quiet Quarters by Studio UrbanPoetics

Brick was chosen as the primary material for its warmth, human scale, and familiarity. Its tactile quality allows the building to settle naturally into its residential context rather than stand out. Materiality plays a quiet role in the project, softening the street edge and reinforcing the idea of the building as a backdrop for daily life. Overall, The Quiet Quarters is a restrained intervention within a dense urban fabric. It reflects a calm and connected way of living, demonstrating how thoughtful architectural decisions can shape meaningful spaces even within limited scope.


A glimpse of the building while moving along the street of The Quiet Quarters by Studio UrbanPoetics


Detailed view of the entrance and balconies engaging with the street of The Quiet Quarters by Studio UrbanPoetics


Interlocking spaces unfolding at the corner of The Quiet Quarters by Studio UrbanPoetics


Interconnections between the balconies of The Quiet Quarters by Studio UrbanPoetics


Interior view of the pent floor connecting to the outdoors of The Quiet Quarters by Studio UrbanPoetics


View of the external tree framed from the private balconies of The Quiet Quarters by Studio UrbanPoetics


Play of light and shadow on the brick facade of The Quiet Quarters by Studio UrbanPoetics


The layering of the mass responding to the street of The Quiet Quarters by Studio UrbanPoetics


A view of a balcony peeking into the sky of The Quiet Quarters by Studio UrbanPoetics


Exterior view at dusk of The Quiet Quarters by Studio UrbanPoetics


Plan 01 of The Quiet Quarters by Studio UrbanPoetics


Plan 02 of The Quiet Quarters by Studio UrbanPoetics


Section of The Quiet Quarters by Studio UrbanPoetics


Diagram that captures the evolution of design




Most Visited Articles




Subscribe

Get our latest article and updates delivered straight to your inbox.